Get discounts,
promos, see our
newest plans
and more!
+ 15% off any plan
See terms opt out anytime


No Thanks

Thanks for
signing up!


Use Code:

SIGNUP15

And save 15% off any plan!

Check your email for details.

CLOSE
Search Plans
Customer Reviews
     
20% off ALL House Plans Sitewide
20% off ALL House Plans Sitewide
20% off ALL House Plans Sitewide

Code: SAVE20
Sale ends midnight 3/22/2026 PST

Sq Ft
1,648 FT²

Beds
3

Baths
2

Stories
2.5

Garage
0

Depth
44'

Width
28'
On Sale
$680.80
$851.00
© copyright by designer
 View All 5 Images | Photographs may reflect modified home
Sq Ft
1,648 FT²
Beds
3
Baths
2
Stories
2.5
Garage
0
Depth
44'
Width
28'
 
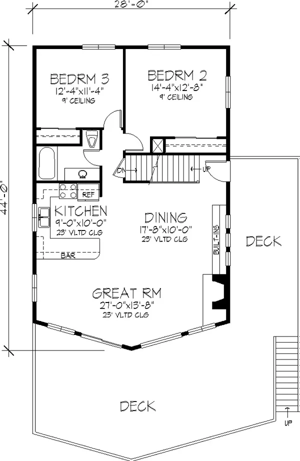
Click to Zoom In on Floor Plan
© copyright by designer
 
 

About This Plan

Enjoy the gorgeous, gabled roof, lap siding, spacious deck and multiple windows on this chalet-style home. The interior contains a spacious vaulted Great Room looking out to the deck and a vaulted dining area. The convenient kitchen has a snack bar and breakfast nook. The vaulted master bedroom upstairs offers a spacious bath and a fabulous view of the lower level. 

See All Plan Options
 

FEATURES & DETAILS

Exterior features
Front Porch
Foundation Options
Daylight Basement
Lot Options
Suited for narrow lot
Garage Options
None
1,648 Ft
2
Total Heated
1,176 Ft
2
1st Floor
472 Ft
2
2nd Floor
1,176 Ft
2
Lower Floor
3
Bedrooms
2
Bathrooms
0
Garage
2.5
Stories
28' 0"
Width
44' 0"
Depth
24' 0"
Height
2x6
Framing
Combination
Roof Framing
12/12
Primary Roof Pitch
Single
Dwelling Number
None
Bonus Access

Unheated Living Space
 

Plan Package Options

 Select Plan Package
  Select Foundation Option
  Add-Ons (Optional)
INCLUDED WITH YOUR PURCHASE

Free Ground shipping in the U.S.

FREE

Home Building & Product Ideas Organizer

Sub Total
$0
Free Shipping
QUESTIONS OR NEED HELP ORDERING? LIVE CHAT OR CALL US AT 866-214-2242
Plan Packages

Each set of construction documents includes detailed, dimensioned floor plans, basic electric layouts, cross sections, roof details, cabinet layouts and elevations, as well as general IRC specifications. They contain virtually all of the information required to construct your home. The typical plan set does not include any plumbing, HVAC drawings, or engineering stamps due to the wide variety of specific needs, local codes, and climatic conditions. These details and specifications are easily obtained from your builder, contractors, and/or local engineers.

BEST PRICE GUARANTEE

Find the same house plan (modifications included!) and package for less on another site, show us the URL and we'll give you the difference plus an additional 10% back.

100% SATISFACTION GUARANTEE

We offer a one-time, 30-day exchange policy for unused, printed plan packages in the event you aren't satisfied with your first selection.

 
 

Plan 1296  Back to plan page

Loading...