Get discounts,
promos, see our
newest plans
and more!
+ 15% off any plan
See terms opt out anytime


No Thanks

Thanks for
signing up!


Use Code:

SIGNUP15

And save 15% off any plan!

Check your email for details.

CLOSE
Search Plans
     
15% Off House Plans Sitewide Ends Sunday
15% Off House Plans Sitewide Ends Sunday
15% Off House Plans Sitewide Ends Sunday

Code: SAVE15
Sale ends midnight 11/16/2025 PST

Sq Ft
2,972 FT²

Beds
4

Baths
3.5

Stories
2

Garage
3

Depth
49' 2"

Width
55' 8"
On Sale
$1,270.75
$1,495.00
© copyright by designer
 View All 6 Images | Photographs may reflect modified home
Sq Ft
2,972 FT²
Beds
4
Baths
3.5
Stories
2
Garage
3
Depth
49' 2"
Width
55' 8"
 
Click to Zoom In on Floor Plan
© copyright by designer
 
 

About This Plan

This luxurious, yet quaint and inviting country porch home offers sumptuous accommodations. From its two-story entry with angled staircase to the relaxing screened porch, this home is a masterful blend of elegance and livability.

The lower level is an open design with very little wasted space. Flanking the two-story entry are the living and dining rooms, each measuring nearly 15'x 12'. Beyond the "bridge" above the entry is a 19'x17' two story family room with a fireplace. The spacious kitchen is open to the family room and features a breakfast bar and a built-in table in the cook top island. The laundry room includes a laundry tub. The master suite includes a "bayed" 14'-9" x 18'-5" bedroom and a beautiful corner his & hers bath/closet arrangement. Except for the two-story foyer and family room, ceiling heights on the main level are 9'.

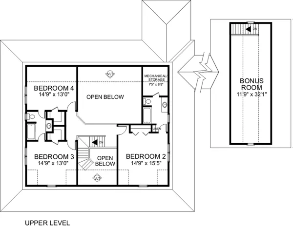
The upper level features three spacious bedrooms. Bedroom 2 has a private bath, while bedrooms 3 & 4 each have direct access to a shared bath. Ceiling heights upstairs are 8'. This design includes a full basement foundation with rear daylight.
 

See All Plan Options
 

FEATURES & DETAILS

Exterior features
Front Porch
Foundation Options
Basement
Crawlspace
Slab
Garage Location
Side
Garage Options
Detached
2,972 Ft
2
Total Heated
1,986 Ft
2
1st Floor
986 Ft
2
2nd Floor
4
Bedrooms
3.5
Bathrooms
3
Garage
2
Stories
55' 8"
Width
49' 2"
Depth
28' 0"
Height
9' 0"
Main Floor Ceiling
8' 0"
Upper Floor Ceiling
2x4
Framing
Stick
Roof Framing
9/12
Primary Roof Pitch
6/12
Porch Roof Pitch
Single
Dwelling Number
2nd Floor
Bonus Access

Unheated Living Space
396 Ft
2
Bonus Room
 

Plan Package Options

 Select Plan Package
Sale: $846
PDF Bid Set
$995

PDFs NOW!™

Home plans stamped "NOT FOR CONSTRUCTION" for cost estimating and bidding purposes only; a minimum 5 set plan package must be purchased within 90 days for a license to build plan set; a credit will be applied towards your house plan upgrade

Sale: $846
Sale: $1,271
PDF Single Build
$1,495

PDFs NOW!™

Digital plans emailed to you in PDF format that allows for printing copies and sharing electronically with contractors, subs, decorators, and more. This package includes a license to build the home one time.

Sale: $1,271
Sale: $1,313
5 Printed Sets
$1,545

Five Printed Sets of Residential Construction Drawings are typically 24” x 36” documents and come with a license to construct a single residence shipped to a physical address. Keep in mind PDF Plan Packages are our most popular choice which allows you to print as many copies as you need and to electronically send files to your builder, subcontractors, etc.

Sale: $1,313
Sale: $1,356
8 Printed Sets
$1,595

Eight Printed Sets of Construction Drawings, typically 24” x 36” documents, with a license to construct a single residence shipped to your physical address. PDF Plan Packages are our most popular choice which allows you to print as many copies as you need and to electronically send files to your builder, subcontractors, bank/mortgage reps, material stores, decorators and more.

Sale: $1,356
Sale: $1,696
CAD + PDF Single Build
$1,995

CAD files are a complete set of construction drawings delivered electronically. They can be used for any type of modification—including major design changes and engineering—and include a release granting permission to modify the plan. Most CAD plan orders are emailed the same or next business day.
 
This package also comes with a PDF set of plans and a copyright release for making modifications and printing unlimited copies.
 
CAD files are provided in .dwg format. For details on the specific CAD program used, please refer to the PLAN DETAILS section located above the floor plan on each plan’s page.

Sale: $1,696
 Need To Reverse Plan? (Optional)
$295
Readable Reverse

Reverse house plans with readable text and dimensions 

$295
  Select Foundation Option
  Add-Ons (Optional)
INCLUDED WITH YOUR PURCHASE

Free Ground shipping in the Continental U.S.

FREE

Design consultation with the architect or designer to discuss your plan

Home Building & Product Ideas Organizer

Sub Total
$0
Free Shipping
QUESTIONS OR NEED HELP ORDERING? LIVE CHAT OR CALL US AT 866-214-2242
Plan Packages

Each set of construction documents includes detailed, dimensioned floor plans, basic electric layouts, cross sections, roof details, cabinet layouts and elevations, as well as general IRC specifications. They contain virtually all of the information required to construct your home. The typical plan set does not include any plumbing, HVAC drawings, or engineering stamps due to the wide variety of specific needs, local codes, and climatic conditions. These details and specifications are easily obtained from your builder, contractors, and/or local engineers.

BEST PRICE GUARANTEE

find the same house plan (modifications included!) and package for less on another site, show us the URL and we'll give you the difference plus an additional 5% back.

100% SATISFACTION GUARANTEE

We offer a one-time, 30-day exchange policy for unused, non-electronic plan packages in the event you aren't satisfied with your first selection.

 
 

Plan 6256  Back to plan page

Loading...