Get discounts,
promos, see our
newest plans
and more!
+ 15% off any plan
See terms opt out anytime


No Thanks

Thanks for
signing up!


Use Code:

SIGNUP15

And save 15% off any plan!

Check your email for details.

CLOSE
Search Plans
Customer Reviews
     
15% off ALL House Plans Sitewide
15% off ALL House Plans Sitewide
15% off ALL House Plans Sitewide

Code: HONOR
Sale ends midnight 5/31/2026 PST

The Kensington | 4 Bedroom Traditional Style House, Plan 1025

 
 

Sq Ft
2,272 FT²

Beds
4

Baths
2.5

Stories
1

Garage
2

Depth
57'

Width
75'
On Sale
$1,190.00
$1,400.00
© copyright by designer
 View All 4 Images | Photographs may reflect modified home
Sq Ft
2,272 FT²
Beds
4
Baths
2.5
Stories
1
Garage
2
Depth
57'
Width
75'
 
Click to Zoom In on Floor Plan
© copyright by designer
 
 

About This Plan

The Kensington blends classic country charm with elegant design features to create a warm and flexible home for modern living. Covered porches at the front and rear extend your living space outdoors, perfect for relaxing or entertaining. Inside, the great room showcases a trayed ceiling, built-in cabinetry, and a cozy gas fireplace. The spacious kitchen includes a central island with an eating bar, ideal for casual dining and gathering. A thoughtfully designed hall bath with dual vanities adds everyday convenience. The private primary suite also features a trayed ceiling and connects to a well-appointed bath with double vanities, a corner soaking tub, and a generous walk-in closet. Upstairs, a future bonus room offers the potential for a playroom, guest suite, or additional storage. With a versatile layout and refined finishes throughout, The Kensington offers comfort, style, and room to grow. 

See All Plan Options
 

FEATURES & DETAILS

Kitchen features
Country Kitchen
Kitchen Island
Nook / Breakfast Area
Peninsula / Eating Bar
Bedroom features
Double Vanity Sink
His and Hers Primary Closets
Primary Bdrm Main Floor
Separate Tub and Shower
Split Bedrooms
Walk-in Closet
Exterior features
Covered Front Porch
Covered Rear Porch
Front Porch
Rear Porch
Foundation Options
Crawlspace
Slab
Lot Options
Suited for corner lot
Suited for sloping lot
Suited for view lot
Additional features
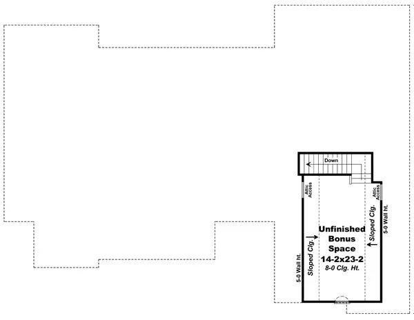
Bonus Room
Dining Room
Exercise Room
Fireplace
Foyer
Great Room
Home Office
Laundry 1st Fl
Open Floor Plan
Storage Space
Unfinished Space
Workshop
Garage Location
Side
Garage Options
Attached
Oversized
2,272 Ft
2
Total Heated
2,272 Ft
2
1st Floor
4
Bedrooms
2.5
Bathrooms
2
Garage
1
Stories
75' 0"
Width
57' 0"
Depth
21' 10"
Height
9' 0"
Main Floor Ceiling
2x4
Framing
Stick
Roof Framing
8/12
Primary Roof Pitch
10:12
Secondary Roof Pitch
Single
Dwelling Number
2nd Floor
Bonus Access

Unheated Living Space
689 Ft
2
Garage
371 Ft
2
Storage
347 Ft
2
Bonus Room
 

Plan Package Options

 Select Plan Package
 Need To Reverse Plan? (Optional)
  Select Foundation Option
  Add-Ons (Optional)
INCLUDED WITH YOUR PURCHASE

Free Ground shipping in the U.S.

FREE

Home Building & Product Ideas Organizer

Sub Total
$0
Free Shipping
QUESTIONS OR NEED HELP ORDERING? LIVE CHAT OR CALL US AT 866-214-2242
Plan Packages

Each set of construction documents typically includes detailed, dimensioned floor plans, basic electric layouts, cross sections, roof details, cabinet layouts, and elevations, as well as general IRC specifications. Please refer to the ARCHITECT or DESIGNER’S PLAN DETAILS link above the floor plan on any plan page to determine the specific details for each plan. Our house plans contain virtually all of the information required to construct your home. The typical plan set does not include plumbing, HVAC drawings, or engineering stamps due to the wide variety of specific needs, local codes, and climatic conditions. These details and specifications are easily obtained from your builder, contractors, and/or local engineers.

BEST PRICE GUARANTEE

Find the same house plan (modifications included!) and package for less on another site, show us the URL and we'll give you the difference plus an additional 10% back.

100% SATISFACTION GUARANTEE

We offer a one-time, 30-day exchange policy for unused, printed plan packages in the event you aren't satisfied with your first selection.

 
 

Plan 1025  Back to plan page

Loading...