Get discounts,
promos, see our
newest plans
and more!
+ 15% off any plan
See terms opt out anytime


No Thanks

Thanks for
signing up!


Use Code:

SIGNUP15

And save 15% off any plan!

Check your email for details.

CLOSE
Search Plans
Customer Reviews
     

The House Mate Traditional Country Style House, Plan 1217

 
 

Sq Ft
1,027 FT²

Beds
0

Baths
0

Stories
1.5

Garage
3

Depth
24'

Width
34'
From
$775.00
© copyright by designer
 View All 4 Images | Photographs may reflect modified home
Sq Ft
1,027 FT²
Beds
0
Baths
0
Stories
1.5
Garage
3
Depth
24'
Width
34'
 
Click to Zoom In on Floor Plan
© copyright by designer
 
 

About This Plan

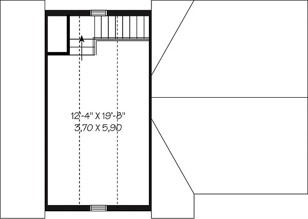
A great option for added storage and parking alike, this 2 story garage enhances any home thanks to its 1,027 square feet and traditional country design. Separated spaces of a double car garage and a single car garage make this space great for adding a workshop or hobby area. A second level provides 251 square feet of storage that can alleviate and clear up space in your house. If extra storage isn’t needed, consider making this space an art studio or other fun area. Regardless of if your house plan doesn’t come with a garage or you simply need more space, consider adding this garage plan for an affordable enhancement that will add value to your home.

  

See All Plan Options
 

FEATURES & DETAILS

Exterior features
No Porch
Foundation Options
Slab
Garage Location
Front
Garage Options
Detached
Front-entry
1,027 Ft
2
Total Heated
776 Ft
2
1st Floor
251 Ft
2
2nd Floor
3
Garage
1.5
Stories
34' 0"
Width
24' 0"
Depth
22' 6"
Height
9'-6"' 0"
Main Floor Ceiling
8'-0"' 0"
Upper Floor Ceiling
2x6
Framing
Truss
Roof Framing
12
Primary Roof Pitch
12
Secondary Roof Pitch
Garage
Dwelling Number
1st Floor
Bonus Access

Unheated Living Space
776 Ft
2
Garage
Collections
 

Plan Package Options

 Select Plan Package
 Need To Reverse Plan? (Optional)
  Select Foundation Option
  Add-Ons (Optional)
INCLUDED WITH YOUR PURCHASE

Free Ground shipping in the U.S.

FREE

Home Building & Product Ideas Organizer

Sub Total
$0
Free Shipping
Please allow 3-5 business days for delivery of this plan Please check our PDFs NOW collection for plans that can be downloaded and received immediately or live chat us to help you find a similar plan available now.
QUESTIONS OR NEED HELP ORDERING? LIVE CHAT OR CALL US AT 866-214-2242
Plan Packages

Each set of construction documents includes detailed, dimensioned floor plans, basic electric layouts, cross sections, roof details, cabinet layouts and elevations, as well as general IRC specifications. They contain virtually all of the information required to construct your home. The typical plan set does not include any plumbing, HVAC drawings, or engineering stamps due to the wide variety of specific needs, local codes, and climatic conditions. These details and specifications are easily obtained from your builder, contractors, and/or local engineers.

BEST PRICE GUARANTEE

Find the same house plan (modifications included!) and package for less on another site, show us the URL and we'll give you the difference plus an additional 10% back.

100% SATISFACTION GUARANTEE

We offer a one-time, 30-day exchange policy for unused, printed plan packages in the event you aren't satisfied with your first selection.

 
 

Plan 1217  Back to plan page

Loading...