Get discounts,
promos, see our
newest plans
and more!
+ 15% off any plan
See terms opt out anytime


No Thanks

Thanks for
signing up!


Use Code:

SIGNUP15

And save 15% off any plan!

Check your email for details.

CLOSE
Search Plans
Customer Reviews
     
15% off ALL House Plans Sitewide
15% off ALL House Plans Sitewide
15% off ALL House Plans Sitewide

Code: SAVE15
Sale ends midnight 4/12/2026 PST

Sq Ft
2,745 FT²

Beds
3

Baths
2.5

Stories
2

Garage
2

Depth
59'

Width
50'
On Sale
$1,185.75
$1,395.00
© copyright by designer
 View All 4 Images | Photographs may reflect modified home
Sq Ft
2,745 FT²
Beds
3
Baths
2.5
Stories
2
Garage
2
Depth
59'
Width
50'
 
Click to Zoom In on Floor Plan
© copyright by designer
 
 

About This Plan

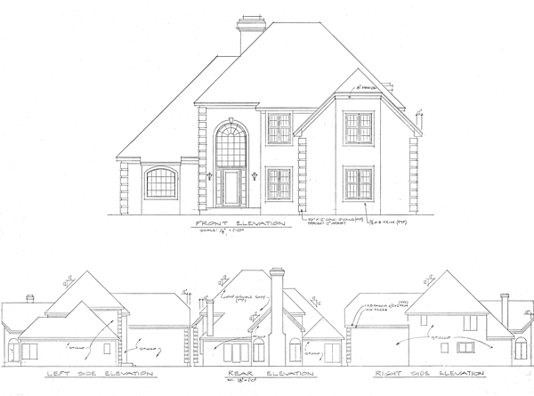
This stately European style home with it's stucco exterior is filled with custom features. The luxurious master suite is located on the lower level and has a tray ceiling and corner windows with a door accessing the deck. His-and-hers walk-in closets provide an abundance of closet space. The master bath has a separate tub and shower, a commode closet, his-and-hers vanities and a linen closet. The 18'x20' living room is open to the upper level. The dramatic fireplace is centered within a full-width bay. A corner fireplace is the focal point of the 17'x11' breakfast room. The kitchen features a center work island. The 13'x15' dining room is perfect for entertaining. Completing the lower level is a powder room, large laundry room and a coat closet.

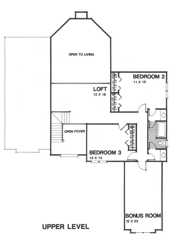
The upper level of this home features two spacious bedrooms which share a common bath. The 12'x18' loft overlooks the living room. An optional 266 sq. ft. bonus room (measuring 12'x22') is available.
 

See All Plan Options
 

FEATURES & DETAILS

Exterior features
No Porch
Foundation Options
Basement
Crawlspace
Slab
Garage Location
Side
Garage Options
Attached
2,745 Ft
2
Total Heated
1,808 Ft
2
1st Floor
937 Ft
2
2nd Floor
3
Bedrooms
2.5
Bathrooms
2
Garage
2
Stories
50' 0"
Width
59' 0"
Depth
24' 0"
Height
9' 0"
Main Floor Ceiling
8' 0"
Upper Floor Ceiling
2x4
Framing
Stick
Roof Framing
12/12
Primary Roof Pitch
Single
Dwelling Number
2nd Floor
Bonus Access

Unheated Living Space
266 Ft
2
Bonus Room
Exterior Styles
 

Plan Package Options

 Select Plan Package
 Need To Reverse Plan? (Optional)
  Select Foundation Option
  Add-Ons (Optional)
INCLUDED WITH YOUR PURCHASE

Free Ground shipping in the U.S.

FREE

Home Building & Product Ideas Organizer

Sub Total
$0
Free Shipping
QUESTIONS OR NEED HELP ORDERING? LIVE CHAT OR CALL US AT 866-214-2242
Plan Packages

Each set of construction documents includes detailed, dimensioned floor plans, basic electric layouts, cross sections, roof details, cabinet layouts and elevations, as well as general IRC specifications. They contain virtually all of the information required to construct your home. The typical plan set does not include any plumbing, HVAC drawings, or engineering stamps due to the wide variety of specific needs, local codes, and climatic conditions. These details and specifications are easily obtained from your builder, contractors, and/or local engineers.

BEST PRICE GUARANTEE

Find the same house plan (modifications included!) and package for less on another site, show us the URL and we'll give you the difference plus an additional 10% back.

100% SATISFACTION GUARANTEE

We offer a one-time, 30-day exchange policy for unused, printed plan packages in the event you aren't satisfied with your first selection.

 
 

Plan 7622  Back to plan page

Loading...