Get discounts,
promos, see our
newest plans
and more!
+ 15% off any plan
See terms opt out anytime


No Thanks

Thanks for
signing up!


Use Code:

SIGNUP15

And save 15% off any plan!

Check your email for details.

CLOSE
Search Plans
Customer Reviews
     
20% off ALL House Plans Sitewide
20% off ALL House Plans Sitewide
20% off ALL House Plans Sitewide

Code: SAVE20
Sale ends midnight 5/13/2026 PST

The Emerald Coast Collection, THD-8941

 
 

Sq Ft
2,257 FT²

Beds
4

Baths
3

Stories
1

Garage
2

Depth
65'

Width
60'
On Sale
$840.00
$1,050.00
© copyright by designer
 View All 4 Images | Photographs may reflect modified home
Sq Ft
2,257 FT²
Beds
4
Baths
3
Stories
1
Garage
2
Depth
65'
Width
60'
 
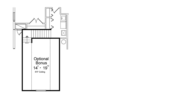
Click to Zoom In on Floor Plan
© copyright by designer
 
 

About This Plan

This plan is perfect for those homebuyers who enjoy a more contemporary aspect to their lifestyle. While maintaining the formal Living and Dining spaces this plan opens them up to one another creating a versatile space customers can utilize as they see fit. A large Kitchen overlooking the Family Room will appeal to clients at any stage in life, while bedroom two has access to a full bath and even a private entrance through the Mud Room, making this plan adaptable to any family. This unique design is sure to have clients coming back again and again. Secondary bedrooms are relegated to the Right wing and close to the family room for a cozy intimate feel. The Master Suite takes up the left wing with a grand Master Bath that is sure to attract the eye of any client. 

See All Plan Options
 

FEATURES & DETAILS

Exterior features
Rear Porch
Foundation Options
Basement
Crawlspace
Slab
Garage Location
Front
Garage Options
Attached
Front-entry
2,257 Ft
2
Total Heated
2,257 Ft
2
1st Floor
4
Bedrooms
3
Bathrooms
2
Garage
1
Stories
60' 0"
Width
65' 0"
Depth
19' 1"
Height
9'-4"' 0"
Main Floor Ceiling
8" Block
Framing
Truss
Roof Framing
6/12
Primary Roof Pitch
Single
Dwelling Number
None
Bonus Access

Unheated Living Space
435 Ft
2
Garage
226 Ft
2
Patio
 

Plan Package Options

 Select Plan Package
  Select Foundation Option
  Add-Ons (Optional)
INCLUDED WITH YOUR PURCHASE

Free Ground shipping in the U.S.

FREE

Home Building & Product Ideas Organizer

Sub Total
$0
Free Shipping
QUESTIONS OR NEED HELP ORDERING? LIVE CHAT OR CALL US AT 866-214-2242
Plan Packages

Each set of construction documents typically includes detailed, dimensioned floor plans, basic electric layouts, cross sections, roof details, cabinet layouts, and elevations, as well as general IRC specifications. Please refer to the ARCHITECT or DESIGNER’S PLAN DETAILS link above the floor plan on any plan page to determine the specific details for each plan. Our house plans contain virtually all of the information required to construct your home. The typical plan set does not include plumbing, HVAC drawings, or engineering stamps due to the wide variety of specific needs, local codes, and climatic conditions. These details and specifications are easily obtained from your builder, contractors, and/or local engineers.

BEST PRICE GUARANTEE

Find the same house plan (modifications included!) and package for less on another site, show us the URL and we'll give you the difference plus an additional 10% back.

100% SATISFACTION GUARANTEE

We offer a one-time, 30-day exchange policy for unused, printed plan packages in the event you aren't satisfied with your first selection.

 
 

Plan 8941  Back to plan page

Loading...