Get discounts,
promos, see our
newest plans
and more!
+ 15% off any plan
See terms opt out anytime


No Thanks

Thanks for
signing up!


Use Code:

SIGNUP15

And save 15% off any plan!

Check your email for details.

CLOSE
Search Plans
Customer Reviews
     

Sq Ft
2,338 FT²

Beds
4

Baths
2.5

Stories
2

Garage
2

Depth
34'

Width
62'
From
$1,395.00
© copyright by designer
 View All 4 Images | Photographs may reflect modified home
Sq Ft
2,338 FT²
Beds
4
Baths
2.5
Stories
2
Garage
2
Depth
34'
Width
62'
 
Click to Zoom In on Floor Plan
© copyright by designer
 
 

About This Plan

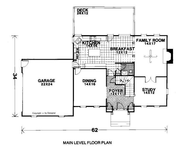
This variation of a traditional "five-four-and-a-door" plan features 2,693 sq. ft. of living space. The lower level has both a 14'x17' family room, with a fireplace, and a 14'x12' study. Space abounds in the 14'x14' gourmet kitchen. The 12'x12' breakfast room has a door leading onto an oversized deck. A formal dining room, measuring 14'x16', is perfect for entertaining. Completing the lower level is a powder room.
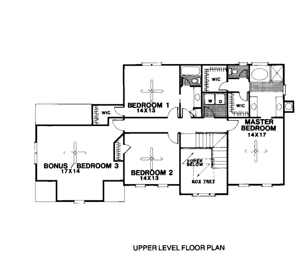
The upper level features a roomy master suite with a master bath. This bath has separate garden tub and shower as well as twin vanities in the dressing area. His-and-hers walk-in closets are a much-requested feature! The washer/dryer are conveniently located in an upper level laundry room. Three bedrooms and a hall bath complete this design.
 

See All Plan Options
 

FEATURES & DETAILS

Exterior features
No Porch
Foundation Options
Basement
Daylight Basement
Garage Location
Side
Garage Options
Attached
2,338 Ft
2
Total Heated
1,226 Ft
2
1st Floor
1,112 Ft
2
2nd Floor
4
Bedrooms
2.5
Bathrooms
2
Garage
2
Stories
62' 0"
Width
34' 0"
Depth
34' 0"
Height
9' 0"
Main Floor Ceiling
9' 0"
Upper Floor Ceiling
2x4
Framing
Truss
Roof Framing
10/12
Primary Roof Pitch
Single
Dwelling Number
2nd Floor
Bonus Access

Unheated Living Space
355 Ft
2
Bonus Room
 

Plan Package Options

 Select Plan Package
$1,445
5 Printed Sets

Five Printed Sets of Residential Construction Drawings are typically 24” x 36” documents and come with a license to construct a single residence shipped to a physical address. Keep in mind PDF Plan Packages are our most popular choice which allows you to print as many copies as you need and to electronically send files to your builder, subcontractors, etc.

$1,445
$1,495
8 Printed Sets

Eight Printed Sets of Construction Drawings, typically 24” x 36” documents, with a license to construct a single residence shipped to your physical address. PDF Plan Packages are our most popular choice which allows you to print as many copies as you need and to electronically send files to your builder, subcontractors, bank/mortgage reps, material stores, decorators and more.

$1,495
$895
PDF Bid Set

Home plans stamped "NOT FOR CONSTRUCTION" for cost estimating and bidding purposes only; a minimum 5 set plan package must be purchased within 90 days for a license to build plan set; a credit will be applied towards your house plan upgrade

$895
$1,395
PDF Single Build

Digital plans emailed to you in PDF format that allows for printing copies and sharing electronically with contractors, subs, decorators, and more. This package includes a license to build the home one time.

$1,395
$1,895
CAD + PDF Single Build

This plan package is created in AutoCAD and delivered in .DWG format. CAD files are intended for use by design professionals, structural engineers, and builders to update plans for local building codes or to make revisions based on specific needs, lot requirements, and budget considerations. A complimentary PDF copy is included with this package for reference. CAD packages are delivered within 1 to 2 business days.
 
This package also comes with a copyright release for making revisions and printing unlimited copies.

For details on the specific CAD program used, please refer to the PLAN DETAILS section located above the floor plan on each plan page.

$1,895
  Select Foundation Option
  Add-Ons (Optional)
INCLUDED WITH YOUR PURCHASE

Free Ground shipping in the Continental U.S.

FREE

Home Building & Product Ideas Organizer

Sub Total
$0
Free Shipping
QUESTIONS OR NEED HELP ORDERING? LIVE CHAT OR CALL US AT 866-214-2242
Plan Packages

Each set of construction documents includes detailed, dimensioned floor plans, basic electric layouts, cross sections, roof details, cabinet layouts and elevations, as well as general IRC specifications. They contain virtually all of the information required to construct your home. The typical plan set does not include any plumbing, HVAC drawings, or engineering stamps due to the wide variety of specific needs, local codes, and climatic conditions. These details and specifications are easily obtained from your builder, contractors, and/or local engineers.

BEST PRICE GUARANTEE

Find the same house plan (modifications included!) and package for less on another site, show us the URL and we'll give you the difference plus an additional 5% back.

100% SATISFACTION GUARANTEE

We offer a one-time, 30-day exchange policy for unused, printed plan packages in the event you aren't satisfied with your first selection. Exchanges are subject to a 20% restocking fee.

 
 

Plan 7611  Back to plan page

Loading...