Get discounts,
promos, see our
newest plans
and more!
+ 15% off any plan
See terms opt out anytime


No Thanks

Thanks for
signing up!


Use Code:

SIGNUP15

And save 15% off any plan!

Check your email for details.

CLOSE
Search Plans
     

Sq Ft
1,495 FT²

Beds
4

Baths
3

Stories
1

Garage
2

Depth
39' 6"

Width
65' 8"
From
$950.00
EXCLUSIVE PLAN
© copyright by designer
 View All 3 Images | Photographs may reflect modified home
Sq Ft
1,495 FT²
Beds
4
Baths
3
Stories
1
Garage
2
Depth
39' 6"
Width
65' 8"
 
Click to Zoom In on Floor Plan
© copyright by designer
 
 

About This Plan

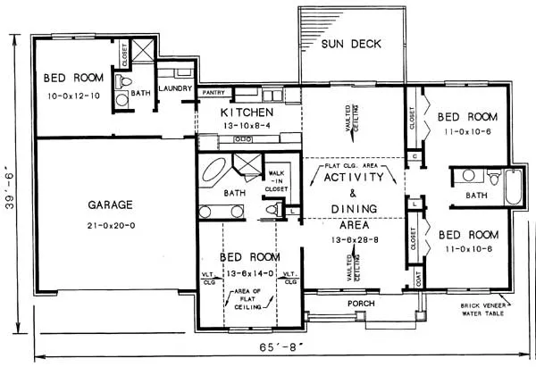
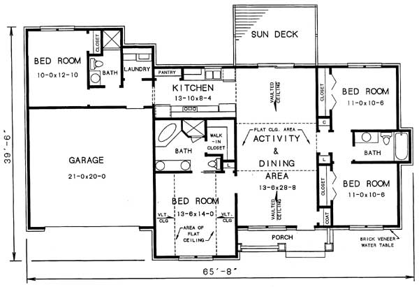
Well-placed rooms keep halls to a minimum and allow the most practical use of interior space. The casual atmosphere of a sheltering front porch allows entry into the central element of the home, the gathering room, which is both activity room and dining area. A vaulted ceiling adds just the right touch and sliding glass doors lead to a rear sun deck, offering a view of nature. Two bedrooms comprise one wing of the home, each sized for comfort and conveniently placed central to a full hall bath. A brilliant window treatment captures the sun's rays into the tall vaulted ceiling of the master bedroom. Dramatic impressions are created in the elegantly appointed garden bath, with corner tub, double vanity and separate shower. A large walk-in closet is indicated. The activity room easily accesses the corridor style kitchen. A huge pantry is placed for convenience. Nearby is the laundry room and access to a double garage. A multi-purpose "extra" bedroom is behind the garage, creating luxurious privacy. This room could be an in-law suite, home office or guest bedroom. The possibilities are limitless. Simple multiple gable rooflines and a combination of horizontal siding and brick enhance the exterior of the home.
 

See All Plan Options
 

FEATURES & DETAILS

Bedroom features
Double Vanity Sink
Guest Suite
Primary Bdrm Main Floor
Separate Tub and Shower
Split Bedrooms
Walk-in Closet
Exterior features
Covered Front Porch
Deck
Front Porch
Foundation Options
Crawlspace
Slab
Additional features
Great Room
Home Office
In-law Suite
Laundry 1st Fl
Vaulted Ceilings
Garage Location
Front
Garage Options
Attached
Front-entry
1,971 Ft
2
Total Structure
1,495 Ft
2
Total Heated
4
Bedrooms
3
Bathrooms
2
Garage
1
Stories
65' 8"
Width
39' 6"
Depth
23' 0"
Height
9' 0"
Main Floor Ceiling
2x4
Framing
Stick
Roof Framing
10/12
Primary Roof Pitch
Single
Dwelling Number

Unheated Living Space
 

Plan Package Options

 Select Plan Package
$950
PDF Single Build

Digital plans emailed to you in PDF format that allows for printing copies and sharing electronically with contractors, subs, decorators, and more. This package includes a license to build the home one time.

$950
 Need To Reverse Plan? (Optional)
$175
Readable Reverse

Reverse house plans with readable text and dimensions 

$175
  Select Foundation Option
  Add-Ons (Optional)
INCLUDED WITH YOUR PURCHASE

Free Ground shipping in the Continental U.S.

FREE

Design consultation with the architect or designer to discuss your plan

Home Building & Product Ideas Organizer

Sub Total
$0
Free Shipping
QUESTIONS OR NEED HELP ORDERING? LIVE CHAT OR CALL US AT 866-214-2242
Plan Packages

Each set of construction documents includes detailed, dimensioned floor plans, basic electric layouts, cross sections, roof details, cabinet layouts and elevations, as well as general IRC specifications. They contain virtually all of the information required to construct your home. The typical plan set does not include any plumbing, HVAC drawings, or engineering stamps due to the wide variety of specific needs, local codes, and climatic conditions. These details and specifications are easily obtained from your builder, contractors, and/or local engineers.

BEST PRICE GUARANTEE

find the same house plan (modifications included!) and package for less on another site, show us the URL and we'll give you the difference plus an additional 5% back.

100% SATISFACTION GUARANTEE

We offer a one-time, 30-day exchange policy for unused, non-electronic plan packages in the event you aren't satisfied with your first selection.

 
 

Plan 3291  Back to plan page

Loading...