Get discounts,
promos, see our
newest plans
and more!
+ 15% off any plan
See terms opt out anytime


No Thanks

Thanks for
signing up!


Use Code:

SIGNUP15

And save 15% off any plan!

Check your email for details.

CLOSE
Search Plans
Customer Reviews
     
20% off ALL House Plans Sitewide
20% off ALL House Plans Sitewide
20% off ALL House Plans Sitewide

Code: SAVE20
Sale ends midnight 5/13/2026 PST

Sq Ft
1,230 FT²

Beds
0

Baths
0

Stories
2

Garage
2

Depth
28'

Width
28'
On Sale
$556.00
$695.00
© copyright by designer
 View All 9 Images | Photographs may reflect modified home
Sq Ft
1,230 FT²
Beds
0
Baths
0
Stories
2
Garage
2
Depth
28'
Width
28'
 
Click to Zoom In on Floor Plan
© copyright by designer
 
 

About This Plan

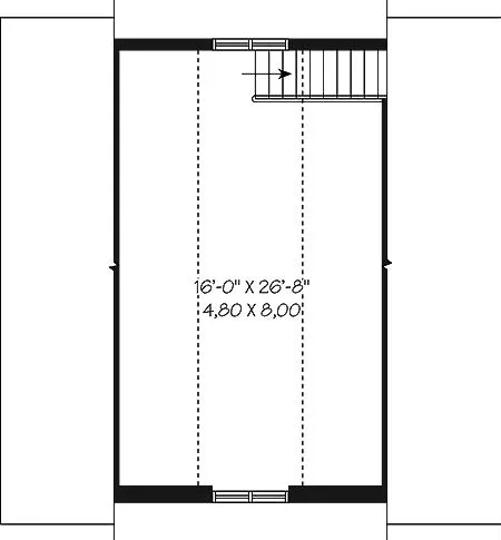
You'll appreciate this beautiful garage's balance of two 10 ft. doors and windows above. A generous 28 ft. x 28 ft. footprint allows ample parking and storage within. Bonus storage space above benefits from daylight via gable windows on both ends. 

See All Plan Options
 

FEATURES & DETAILS

Foundation Options
Basement
Slab
Lot Options
Suited for corner lot
Suited for narrow lot
Additional features
Bonus Room
Open Floor Plan
Storage Space
Unfinished Space
Workshop
Garage Location
Side
Garage Options
Detached
1,230 Ft
2
Total Heated
784 Ft
2
1st Floor
446 Ft
2
2nd Floor
2
Garage
2
Stories
28' 0"
Width
28' 0"
Depth
23' 1"
Height
9.10' 0"
Main Floor Ceiling
8' 0"
Upper Floor Ceiling
2x6
Framing
Truss
Roof Framing
10/12
Primary Roof Pitch
Garage
Dwelling Number
2nd Floor
Bonus Access

Unheated Living Space
 

Plan Package Options

 Select Plan Package
 Need To Reverse Plan? (Optional)
  Select Foundation Option
  Add-Ons (Optional)
INCLUDED WITH YOUR PURCHASE

Free Ground shipping in the U.S.

FREE

Home Building & Product Ideas Organizer

Sub Total
$0
Free Shipping
Please allow 3-5 business days for delivery of this plan Please check our PDFs NOW collection for plans that can be downloaded and received immediately or live chat us to help you find a similar plan available now.
QUESTIONS OR NEED HELP ORDERING? LIVE CHAT OR CALL US AT 866-214-2242
Plan Packages

Each set of construction documents typically includes detailed, dimensioned floor plans, basic electric layouts, cross sections, roof details, cabinet layouts, and elevations, as well as general IRC specifications. Please refer to the ARCHITECT or DESIGNER’S PLAN DETAILS link above the floor plan on any plan page to determine the specific details for each plan. Our house plans contain virtually all of the information required to construct your home. The typical plan set does not include plumbing, HVAC drawings, or engineering stamps due to the wide variety of specific needs, local codes, and climatic conditions. These details and specifications are easily obtained from your builder, contractors, and/or local engineers.

BEST PRICE GUARANTEE

Find the same house plan (modifications included!) and package for less on another site, show us the URL and we'll give you the difference plus an additional 10% back.

100% SATISFACTION GUARANTEE

We offer a one-time, 30-day exchange policy for unused, printed plan packages in the event you aren't satisfied with your first selection.

 
 

Plan 4561  Back to plan page

Loading...