Get discounts,
promos, see our
newest plans
and more!
+ 15% off any plan
See terms opt out anytime


No Thanks

Thanks for
signing up!


Use Code:

SIGNUP15

And save 15% off any plan!

Check your email for details.

CLOSE
Search Plans
     

Sq Ft
1,799 FT²

Beds
3

Baths
2.5

Stories
1.5

Garage
2

Depth
46'

Width
78'
From
$1,300.00
© copyright by designer
 View All 6 Images | Photographs may reflect modified home | Video Tour
Sq Ft
1,799 FT²
Beds
3
Baths
2.5
Stories
1.5
Garage
2
Depth
46'
Width
78'
 

 
Click to Zoom In on Floor Plan
© copyright by designer
 
 

About This Plan

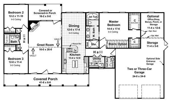
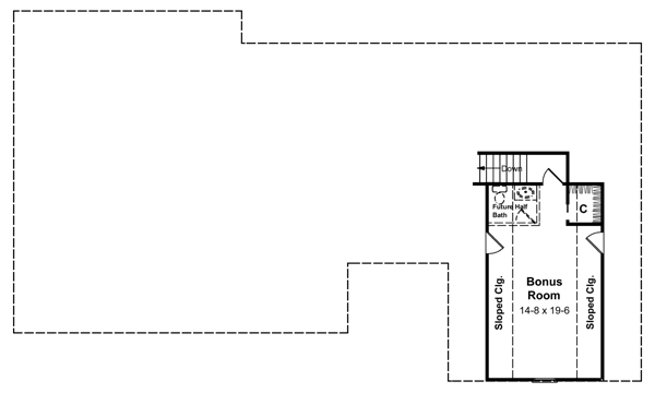
This home features a beautiful traditional styling and the most-popular split-bedroom floorplan layout. The expansive and well-appointed master suite includes large his and her walk-in closets, an oversized jet tub, separate shower, compartmentalized toilet and dual vanities. The optional bonus room, over the garage, serves well as a fourth bedroom, game room, or much-needed home office. Enjoy the convenience of the optional office/lounge/bonus room located off the master suite. The well-appointed kitchen includes the very popular oversized island and features a raised bar conversations with close friends and family. Enjoy the view from your great room as your gas log fireplace keeps you and your family warm on those cold winter nights. This home includes the features that your family wants! 

See All Plan Options
 

FEATURES & DETAILS

Kitchen features
Country Kitchen
Kitchen Island
Bedroom features
Double Vanity Sink
His and Hers Primary Closets
Primary Bdrm Main Floor
Separate Tub and Shower
Split Bedrooms
Walk-in Closet
Exterior features
Covered Front Porch
Covered Rear Porch
Front Porch
Rear Porch
Screened Porch/Sunroom
Foundation Options
Crawlspace
Slab
Lot Options
Suited for corner lot
Suited for sloping lot
Suited for view lot
Additional features
Bonus Room
Dining Room
Exercise Room
Fireplace
Great Room
Home Office
Laundry 1st Fl
Open Floor Plan
Storage Space
Workshop
Garage Location
Front
Garage Options
Attached
Front-entry
Oversized
1,799 Ft
2
Total Heated
1,799 Ft
2
1st Floor
3
Bedrooms
2.5
Bathrooms
2
Garage
1.5
Stories
78' 0"
Width
46' 0"
Depth
25' 7"
Height
9' 0"
Main Floor Ceiling
8' 0"
Upper Floor Ceiling
2x4
Framing
Stick
Roof Framing
10/12
Primary Roof Pitch
12 in 12
Secondary Roof Pitch
Single
Dwelling Number
2nd Floor
Bonus Access

Unheated Living Space
581 Ft
2
Garage
200 Ft
2
Storage
377 Ft
2
Porch
194 Ft
2
Bonus Room
 

Plan Package Options

 Select Plan Package
$1,150
Study Set - Printed
One printed set of house plans stamped NOT FOR CONSTRUCTION". This set is intended for review purposes and are mailed to you. To build from the plans, you need to upgrade to a licensed set.
$1,150
$1,300
PDF Single Build

Digital plans emailed to you in PDF format that allows for printing copies and sharing electronically with contractors, subs, decorators, and more. This package includes a license to build the home one time.

$1,300
$1,400
5 Printed Sets

Five Printed Sets of Residential Construction Drawings are typically 24” x 36” documents and come with a license to construct a single residence shipped to a physical address. Keep in mind PDF Plan Packages are our most popular choice which allows you to print as many copies as you need and to electronically send files to your builder, subcontractors, etc.

$1,400
$1,600
5 Printed Sets + PDF

Digital plan emailed to you in PDF format that allows for printing copies on a home printer or local print shop and sharing with contractors, subs, decorators, and more. PLUS five printed sets shipped and delivered 3-5 business days.

$1,600
$1,950
CAD + PDF Single Build

CAD files are a complete set of construction drawings delivered electronically. They can be used for any type of modification—including major design changes and engineering—and include a release granting permission to modify the plan. Most CAD plan orders are emailed the same or next business day.
 
This package also comes with a PDF set of plans and a copyright release for making modifications and printing unlimited copies.
 
CAD files are provided in .dwg format. For details on the specific CAD program used, please refer to the PLAN DETAILS section located above the floor plan on each plan’s page.

$1,950
 Need To Reverse Plan? (Optional)
$150
Readable Reverse

Reverse house plans with readable text and dimensions 

$150
  Select Foundation Option
  Add-Ons (Optional)
INCLUDED WITH YOUR PURCHASE

Free Ground shipping in the Continental U.S.

FREE

Design consultation with the architect or designer to discuss your plan

Home Building & Product Ideas Organizer

Sub Total
$0
Free Shipping
QUESTIONS OR NEED HELP ORDERING? LIVE CHAT OR CALL US AT 866-214-2242
Plan Packages

Each set of construction documents includes detailed, dimensioned floor plans, basic electric layouts, cross sections, roof details, cabinet layouts and elevations, as well as general IRC specifications. They contain virtually all of the information required to construct your home. The typical plan set does not include any plumbing, HVAC drawings, or engineering stamps due to the wide variety of specific needs, local codes, and climatic conditions. These details and specifications are easily obtained from your builder, contractors, and/or local engineers.

BEST PRICE GUARANTEE

find the same house plan (modifications included!) and package for less on another site, show us the URL and we'll give you the difference plus an additional 5% back.

100% SATISFACTION GUARANTEE

We offer a one-time, 30-day exchange policy for unused, non-electronic plan packages in the event you aren't satisfied with your first selection.

 
 

Plan 7081  Back to plan page

Loading...