Get discounts,
promos, see our
newest plans
and more!
+ 15% off any plan
See terms opt out anytime


No Thanks

Thanks for
signing up!


Use Code:

SIGNUP15

And save 15% off any plan!

Check your email for details.

CLOSE
Search Plans
Customer Reviews
     
America’s Top Home Plans
Trusted House Plans From America's Leading Architects & Designers

Sq Ft
1,572 FT²

Beds
3

Baths
2.5

Stories
2

Garage
2

Depth
32' 4"

Width
51' 2"
From
$1,100.00
EXCLUSIVE PLAN
© copyright by designer
 View All 4 Images | Photographs may reflect modified home
Sq Ft
1,572 FT²
Beds
3
Baths
2.5
Stories
2
Garage
2
Depth
32' 4"
Width
51' 2"
 
Click to Zoom In on Floor Plan
© copyright by designer
 
 

About This Plan

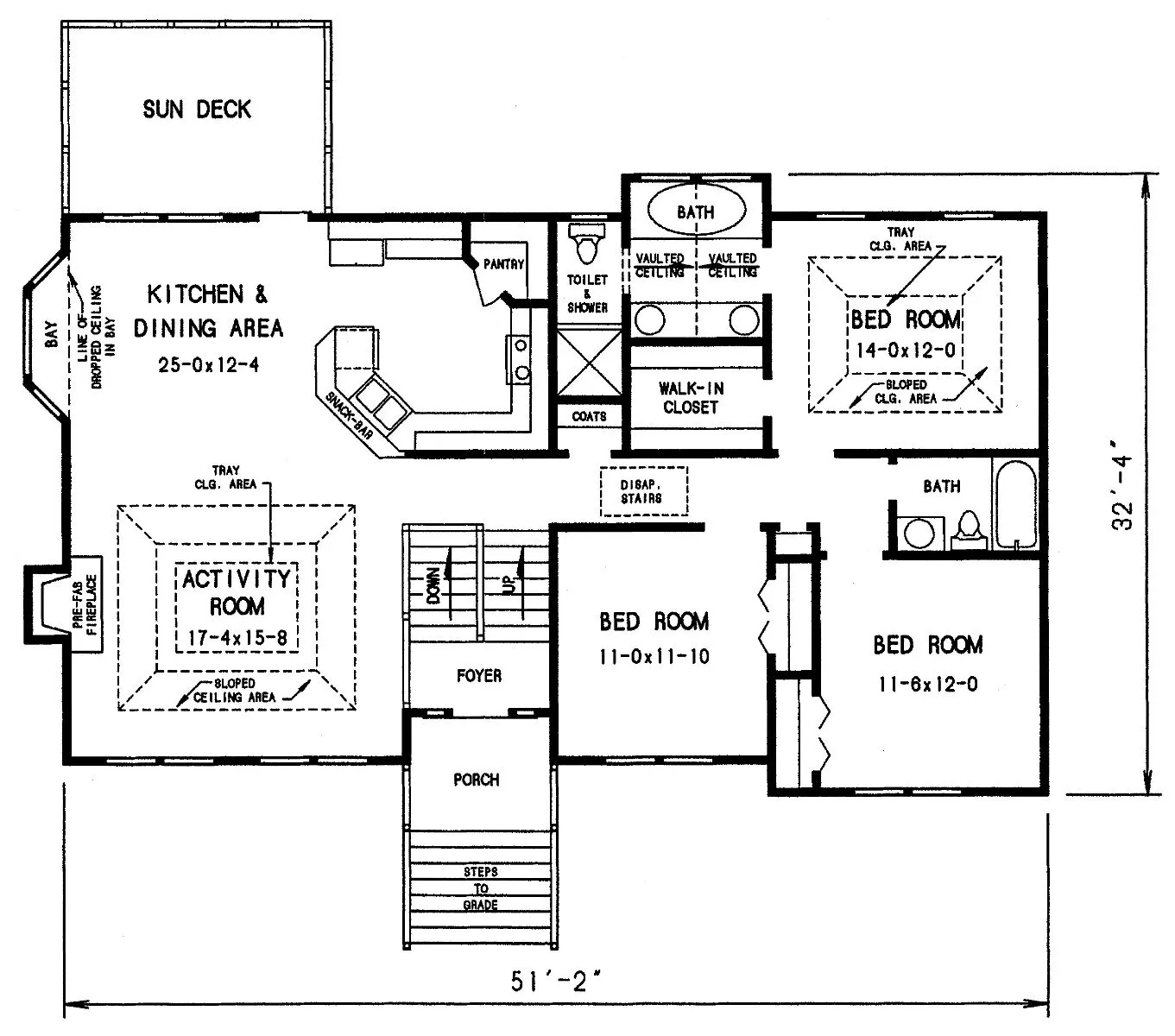
This split foyer plan is economical to build and includes room to expand. Entry is into an open foyer with steps either up to the living areas or down to the double garage and expandable basement areas. Volume ceilings add visual space to the great room and master bedroom. The main living areas of the home are all open and flooded with light from windows on three sides. A fireplace adorns the great room, while a bay window adds space to the dining area of the kitchen. A wrap around snack bar is perfectly situated for meals on the go. Included in the corner is a roomy walk-in pantry. The rear sun deck is easily accessible from the kitchen dining area.
The bedrooms are all included in a quiet zone, and each is generously sized. The family bedrooms include ample closet space and utilize a central full bath. The master suite provides a retreat for the homeowner. A vaulted garden bath adds to the luxury. Having the garage in the lower level helps to keep construction costs to a minimum, and better fits on today's smaller lots. The lower level also contains the laundry room and a future bath. There is ample storage behind the garage for gardening equipment and the kid's bikes. Basement space is available for storage or finishing off at a later date. A dramatic arch top entry and lots of windows highlight the exterior. A combination of brick and horizontal siding along with multiple gable roof lines complete the look of distinction.
 

See All Plan Options
 

FEATURES & DETAILS

Kitchen features
Country Kitchen
Nook / Breakfast Area
Peninsula / Eating Bar
Walk-in Pantry
Bedroom features
Double Vanity Sink
Separate Tub and Shower
Walk-in Closet
Exterior features
Deck
Foundation Options
Basement
Walkout Basement
Lot Options
Suited for narrow lot
Suited for sloping lot
Additional features
Fireplace
Foyer
Great Room
Open Floor Plan
Storage Space
Vaulted Ceilings
Garage Location
Under
Garage Options
Attached
Drive-under
2,814 Ft
2
Total Structure
1,572 Ft
2
Total Heated
635 Ft
2
1st Floor
1,504 Ft
2
2nd Floor
3
Bedrooms
2.5
Bathrooms
2
Garage
2
Stories
51' 2"
Width
32' 4"
Depth
30' 6"
Height
9' 0"
Upper Floor Ceiling
2x4
Framing
Stick
Roof Framing
9/12
Primary Roof Pitch
Single
Dwelling Number
None
Bonus Access

Unheated Living Space
535 Ft
2
Garage
140 Ft
2
Storage
140 Ft
2
Deck
 

Plan Package Options

 Select Plan Package
 Need To Reverse Plan? (Optional)
  Select Foundation Option
  Add-Ons (Optional)
INCLUDED WITH YOUR PURCHASE

Free Ground shipping in the U.S.

FREE

Home Building & Product Ideas Organizer

Sub Total
$0
Free Shipping
QUESTIONS OR NEED HELP ORDERING? LIVE CHAT OR CALL US AT 866-214-2242
Plan Packages

Each set of construction documents typically includes detailed, dimensioned floor plans, basic electric layouts, cross sections, roof details, cabinet layouts, and elevations, as well as general IRC specifications. Please refer to the ARCHITECT or DESIGNER’S PLAN DETAILS link above the floor plan on any plan page to determine the specific details for each plan. Our house plans contain virtually all of the information required to construct your home. The typical plan set does not include plumbing, HVAC drawings, or engineering stamps due to the wide variety of specific needs, local codes, and climatic conditions. These details and specifications are easily obtained from your builder, contractors, and/or local engineers.

BEST PRICE GUARANTEE

Find the same house plan (modifications included!) and package for less on another site, show us the URL and we'll give you the difference plus an additional 10% back.

100% SATISFACTION GUARANTEE

We offer a one-time, 30-day exchange policy for unused, printed plan packages in the event you aren't satisfied with your first selection.

 
 

Plan 3303  Back to plan page

Loading...