Get discounts,
promos, see our
newest plans
and more!
+ 15% off any plan
See terms opt out anytime


No Thanks

Thanks for
signing up!


Use Code:

SIGNUP15

And save 15% off any plan!

Check your email for details.

CLOSE
Search Plans
     

Sq Ft
1,400 FT²

Beds
3

Baths
2

Stories
1

Garage
2

Depth
47'

Width
54'
From
$1,200.00
© copyright by designer
 View All 5 Images | Photographs may reflect modified home | Video Tour
Sq Ft
1,400 FT²
Beds
3
Baths
2
Stories
1
Garage
2
Depth
47'
Width
54'
 

 
Click to Zoom In on Floor Plan
© copyright by designer
 
 

About This Plan

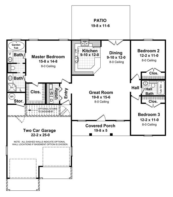
Split bedroom plan. Large master suite with a bath (jet tub for her), and a half (shower for him). Large master closet. Raised bar. A great value in use of space.
 

See All Plan Options
 

FEATURES & DETAILS

Kitchen features
Kitchen Island
Nook / Breakfast Area
Peninsula / Eating Bar
Bedroom features
Double Vanity Sink
Primary Bdrm Main Floor
Separate Tub and Shower
Split Bedrooms
Walk-in Closet
Exterior features
Covered Front Porch
Front Porch
Rear Porch
Foundation Options
Basement
Crawlspace
Slab
Lot Options
Suited for corner lot
Suited for narrow lot
Suited for sloping lot
Suited for view lot
Additional features
Dining Room
Exercise Room
Great Room
Home Office
Laundry 1st Fl
Open Floor Plan
Storage Space
Unfinished Space
Garage Location
Front
Garage Options
Attached
Front-entry
Oversized
1,400 Ft
2
Total Heated
3
Bedrooms
2
Bathrooms
2
Garage
1
Stories
54' 0"
Width
47' 0"
Depth
19' 10"
Height
8' 0"
Main Floor Ceiling
2x4
Framing
Stick
Roof Framing
8/12
Primary Roof Pitch
Single
Dwelling Number
None
Bonus Access

Unheated Living Space
509 Ft
2
Garage
25 Ft
2
Storage
98 Ft
2
Porch
 

Plan Package Options

 Select Plan Package
$1,050
Study Set - Printed
One printed set of house plans stamped NOT FOR CONSTRUCTION". This set is intended for review purposes and are mailed to you. To build from the plans, you need to upgrade to a licensed set.
$1,050
$1,200
PDF Single Build

Digital plans emailed to you in PDF format that allows for printing copies and sharing electronically with contractors, subs, decorators, and more. This package includes a license to build the home one time.

$1,200
$1,300
5 Printed Sets

Five Printed Sets of Residential Construction Drawings are typically 24” x 36” documents and come with a license to construct a single residence shipped to a physical address. Keep in mind PDF Plan Packages are our most popular choice which allows you to print as many copies as you need and to electronically send files to your builder, subcontractors, etc.

$1,300
$1,500
5 Printed Sets + PDF

Digital plan emailed to you in PDF format that allows for printing copies on a home printer or local print shop and sharing with contractors, subs, decorators, and more. PLUS five printed sets shipped and delivered 3-5 business days.

$1,500
$1,850
CAD + PDF Single Build

CAD files are a complete set of construction drawings delivered electronically. They can be used for any type of modification—including major design changes and engineering—and include a release granting permission to modify the plan. Most CAD plan orders are emailed the same or next business day.
 
This package also comes with a PDF set of plans and a copyright release for making modifications and printing unlimited copies.
 
CAD files are provided in .dwg format. For details on the specific CAD program used, please refer to the PLAN DETAILS section located above the floor plan on each plan’s page.

$1,850
 Need To Reverse Plan? (Optional)
$150
Readable Reverse

Reverse house plans with readable text and dimensions 

$150
  Select Foundation Option
  Add-Ons (Optional)
INCLUDED WITH YOUR PURCHASE

Free Ground shipping in the Continental U.S.

FREE

Design consultation with the architect or designer to discuss your plan

Home Building & Product Ideas Organizer

Sub Total
$0
Free Shipping
QUESTIONS OR NEED HELP ORDERING? LIVE CHAT OR CALL US AT 866-214-2242
Plan Packages

Each set of construction documents includes detailed, dimensioned floor plans, basic electric layouts, cross sections, roof details, cabinet layouts and elevations, as well as general IRC specifications. They contain virtually all of the information required to construct your home. The typical plan set does not include any plumbing, HVAC drawings, or engineering stamps due to the wide variety of specific needs, local codes, and climatic conditions. These details and specifications are easily obtained from your builder, contractors, and/or local engineers.

BEST PRICE GUARANTEE

find the same house plan (modifications included!) and package for less on another site, show us the URL and we'll give you the difference plus an additional 5% back.

100% SATISFACTION GUARANTEE

We offer a one-time, 30-day exchange policy for unused, non-electronic plan packages in the event you aren't satisfied with your first selection.

Customer Reviews of House Plan 5694
5/18/2020
Nicole of Scott City, KS
Customer Review:
The House Designers made this such an easy experience! First, The House Designers website has a multitude of plans to choose from. If you can't find what you are looking for (or close to it) then it can't be found. From day one, Christine guided us through every step of the way. The communication was prompt and helpful. We also chose to make modifications to the plan and worked with an architect to so do (vaulted ceilings, larger doors, etc.). He was great to work with as well. Once again, great response time and they gave helpful suggestions on the design changes, including ones that would save us some money on the build and make a more open concept design in the basement. I am THRILLED with our new house plans. My builder looked them over and was thoroughly impressed with the detail that was provided in the plans. This has been a great experience and I would recommend them to anyone who is looking to buy a set of house plans.

SEE All Reviews
 
 

Plan 5694  Back to plan page

Loading...