Get discounts,
promos, see our
newest plans
and more!
+ 15% off any plan
See terms opt out anytime


No Thanks

Thanks for
signing up!


Use Code:

SIGNUP15

And save 15% off any plan!

Check your email for details.

CLOSE
Search Plans
Customer Reviews
     
20% off ALL House Plans Sitewide
20% off ALL House Plans Sitewide
20% off ALL House Plans Sitewide

Code: LOVE20
Sale ends midnight 2/15/2026 PST

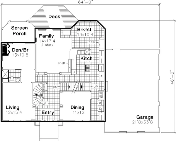
Sq Ft
2,912 FT²

Beds
5

Baths
2

Stories
2

Garage
2

Depth
46'

Width
64'
On Sale
$777.60
$972.00
© copyright by designer
 View All 3 Images | Photographs may reflect modified home
Sq Ft
2,912 FT²
Beds
5
Baths
2
Stories
2
Garage
2
Depth
46'
Width
64'
 
Click to Zoom In on Floor Plan
© copyright by designer
 
 

About This Plan

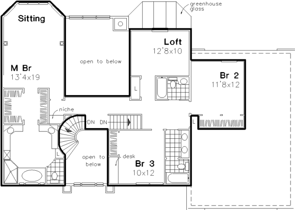
Guests will be impressed by the two-story entry with its classic curved staircase and bridge above, views to the formal living and dining rooms to the left and right, and exciting family room straight ahead. The family room offers a two-story ceiling, rear-oriented window wall, 3-sided fireplace, and access to a screened porch and deck. The island kitchen overlooks the family room and bay windowed breakfast room with built-in desk. The kitchen is easily accessible from the four upstairs bedrooms by a second hidden stair. There is also a main floor den with private 3/4 bath access, perfect for entertaining overnight guests or in-laws. The upstairs master suite includes a sitting bay, dual closets and a classic bath with separate glass shower and spa tub under round-top windows. 

See All Plan Options
 

FEATURES & DETAILS

Foundation Options
Basement
Lot Options
Suited for view lot
Garage Location
Side
Garage Options
Attached
Side-entry
2,912 Ft
2
Total Heated
1,561 Ft
2
1st Floor
1,351 Ft
2
2nd Floor
5
Bedrooms
2
Bathrooms
2
Garage
2
Stories
64' 0"
Width
46' 0"
Depth
30' 0"
Height
2x6
Framing
Combination
Roof Framing
Single
Dwelling Number

Unheated Living Space
 

Plan Package Options

 Select Plan Package
  Select Foundation Option
  Add-Ons (Optional)
INCLUDED WITH YOUR PURCHASE

Free Ground shipping in the U.S.

FREE

Home Building & Product Ideas Organizer

Sub Total
$0
Free Shipping
QUESTIONS OR NEED HELP ORDERING? LIVE CHAT OR CALL US AT 866-214-2242
Plan Packages

Each set of construction documents includes detailed, dimensioned floor plans, basic electric layouts, cross sections, roof details, cabinet layouts and elevations, as well as general IRC specifications. They contain virtually all of the information required to construct your home. The typical plan set does not include any plumbing, HVAC drawings, or engineering stamps due to the wide variety of specific needs, local codes, and climatic conditions. These details and specifications are easily obtained from your builder, contractors, and/or local engineers.

BEST PRICE GUARANTEE

Find the same house plan (modifications included!) and package for less on another site, show us the URL and we'll give you the difference plus an additional 10% back.

100% SATISFACTION GUARANTEE

We offer a one-time, 30-day exchange policy for unused, printed plan packages in the event you aren't satisfied with your first selection.

 
 

Plan 1233  Back to plan page

Loading...