Get discounts,
promos, see our
newest plans
and more!
+ 15% off any plan
See terms opt out anytime


No Thanks

Thanks for
signing up!


Use Code:

SIGNUP15

And save 15% off any plan!

Check your email for details.

CLOSE
Search Plans
Customer Reviews
     
20% off ALL House Plans Sitewide
20% off ALL House Plans Sitewide
20% off ALL House Plans Sitewide

Code: HONOR20
Sale ends midnight 5/25/2026 PST

Sq Ft
2,391 FT²

Beds
4

Baths
3

Stories
1.5

Garage
2

Depth
47'

Width
60'
On Sale
$703.20
$879.00
© copyright by designer
 View All 4 Images | Photographs may reflect modified home
Sq Ft
2,391 FT²
Beds
4
Baths
3
Stories
1.5
Garage
2
Depth
47'
Width
60'
 
Click to Zoom In on Floor Plan
© copyright by designer
 
 

About This Plan

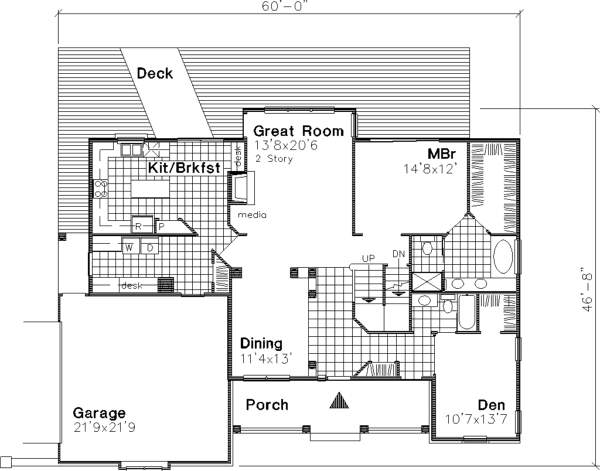
Stucco, stone, steeply pitched gables, window shutters and a metal-roofed bay window all blend together to create an Old-World charm. Once inside the covered front porch, guests open into a dramatic two-story foyer with bridge walkway above. Stately columns identify the formal dining space without enclosing walls. The Great Room features a two-story ceiling, fireplace with built-ins for media topped by plant shelves and a windowwall overlooking the rear yard. The island kitchen opens to a breakfast eating area with sliders to the deck. A front-facing den offers a walk-in closet and private access to a full bath, perfect for overnight guests or in-laws. The main-floor master suite offers sliding door access to the rear deck, a spacious walk-in closet and private bath. There are two additional bedrooms upstairs, one with private bath access for a teenager. 

See All Plan Options
 

FEATURES & DETAILS

Foundation Options
Basement
Lot Options
Suited for sloping lot
Suited for view lot
Garage Location
Front
Garage Options
Attached
Side-entry
2,391 Ft
2
Total Heated
1,725 Ft
2
1st Floor
666 Ft
2
2nd Floor
4
Bedrooms
3
Bathrooms
2
Garage
1.5
Stories
60' 0"
Width
47' 0"
Depth
28' 0"
Height
2x4 or 2x6
Framing
Combination
Roof Framing
Single
Dwelling Number
2nd Floor
Bonus Access

Unheated Living Space
 

Plan Package Options

 Select Plan Package
  Select Foundation Option
  Add-Ons (Optional)
INCLUDED WITH YOUR PURCHASE

Free Ground shipping in the U.S.

FREE

Home Building & Product Ideas Organizer

Sub Total
$0
Free Shipping
QUESTIONS OR NEED HELP ORDERING? LIVE CHAT OR CALL US AT 866-214-2242
Plan Packages

Each set of construction documents typically includes detailed, dimensioned floor plans, basic electric layouts, cross sections, roof details, cabinet layouts, and elevations, as well as general IRC specifications. Please refer to the ARCHITECT or DESIGNER’S PLAN DETAILS link above the floor plan on any plan page to determine the specific details for each plan. Our house plans contain virtually all of the information required to construct your home. The typical plan set does not include plumbing, HVAC drawings, or engineering stamps due to the wide variety of specific needs, local codes, and climatic conditions. These details and specifications are easily obtained from your builder, contractors, and/or local engineers.

BEST PRICE GUARANTEE

Find the same house plan (modifications included!) and package for less on another site, show us the URL and we'll give you the difference plus an additional 10% back.

100% SATISFACTION GUARANTEE

We offer a one-time, 30-day exchange policy for unused, printed plan packages in the event you aren't satisfied with your first selection.

 
 

Plan 1565  Back to plan page

Loading...