Get discounts,
promos, see our
newest plans
and more!
+ 15% off any plan
See terms opt out anytime


No Thanks

Thanks for
signing up!


Use Code:

SIGNUP15

And save 15% off any plan!

Check your email for details.

CLOSE
Search Plans
Customer Reviews
     
15% Off House Plans Sitewide Ends Sunday

Code: SAVE15
Sale ends midnight 1/11/2026 PST

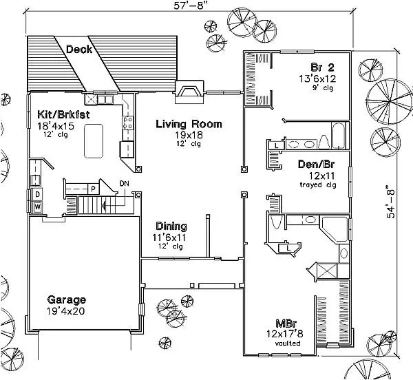
Sq Ft
2,025 FT²

Beds
3

Baths
2

Stories
1

Garage
2

Depth
55'

Width
58'
From
$879.00
© copyright by designer
 View All 3 Images | Photographs may reflect modified home
Sq Ft
2,025 FT²
Beds
3
Baths
2
Stories
1
Garage
2
Depth
55'
Width
58'
 
Click to Zoom In on Floor Plan
© copyright by designer
 
 

About This Plan

Decorative dormers, a railed porch and a generous country-style kitchen give this modern home a traditional feel. Soaring 12-ft.-high ceilings add volume to the expansive combined area of the foyer, living room and dining area. The living room fireplace is flanked by French doors and high transom windows, creating a virtual wall of glass. Elegant columns adorn the entrances to the bedroom hallway and to the exciting kitchen and nook. The roomy island kitchen features a breakfast nook nestled in a panoramic corner of windows that nearly stretch from the floor to the 12-ft.-high ceiling. Large walk-in closets add a touch of luxury to the bedrooms. The master suite is enhanced by an 11-ft. vaulted ceiling and a private bath that features a separate shower and platform tub. 

See All Plan Options
 

FEATURES & DETAILS

Foundation Options
Basement
Lot Options
Suited for sloping lot
Suited for view lot
Garage Location
Front
Garage Options
Attached
Front-entry
2,025 Ft
2
Total Heated
3
Bedrooms
2
Bathrooms
2
Garage
1
Stories
58' 0"
Width
55' 0"
Depth
16' 0"
Height
2x4
Framing
Combination
Roof Framing
Single
Dwelling Number
None
Bonus Access

Unheated Living Space
 

Plan Package Options

 Select Plan Package
$583
PDF Bid Set
PDFs NOW!™

Home plans stamped "NOT FOR CONSTRUCTION" for cost estimating and bidding purposes only; a minimum 5 set plan package must be purchased within 90 days for a license to build plan set; a credit will be applied towards your house plan upgrade

$583
$879
PDF Single Build
PDFs NOW!™

Digital plans emailed to you in PDF format that allows for printing copies and sharing electronically with contractors, subs, decorators, and more. This package includes a license to build the home one time.

$879
  Select Foundation Option
  Add-Ons (Optional)
INCLUDED WITH YOUR PURCHASE

Free Ground shipping in the Continental U.S.

FREE

Home Building & Product Ideas Organizer

Sub Total
$0
Free Shipping
QUESTIONS OR NEED HELP ORDERING? LIVE CHAT OR CALL US AT 866-214-2242
Plan Packages

Each set of construction documents includes detailed, dimensioned floor plans, basic electric layouts, cross sections, roof details, cabinet layouts and elevations, as well as general IRC specifications. They contain virtually all of the information required to construct your home. The typical plan set does not include any plumbing, HVAC drawings, or engineering stamps due to the wide variety of specific needs, local codes, and climatic conditions. These details and specifications are easily obtained from your builder, contractors, and/or local engineers.

BEST PRICE GUARANTEE

Find the same house plan (modifications included!) and package for less on another site, show us the URL and we'll give you the difference plus an additional 5% back.

100% SATISFACTION GUARANTEE

We offer a one-time, 30-day exchange policy for unused, printed plan packages in the event you aren't satisfied with your first selection. Exchanges are subject to a 20% restocking fee.

 
 

Plan 1542  Back to plan page

Loading...