Get discounts,
promos, see our
newest plans
and more!
+ 15% off any plan
See terms opt out anytime


No Thanks

Thanks for
signing up!


Use Code:

SIGNUP15

And save 15% off any plan!

Check your email for details.

CLOSE
Search Plans
Customer Reviews
     
15% off ALL House Plans Sitewide
15% off ALL House Plans Sitewide
15% off ALL House Plans Sitewide

Code: SAVE15
Sale ends midnight 4/19/2026 PST

Sq Ft
2,202 FT²

Beds
4

Baths
2.5

Stories
1.5

Garage
2

Depth
61'

Width
65' 2"
On Sale
$1,190.00
$1,400.00
© copyright by designer
 View All 5 Images | Photographs may reflect modified home
Sq Ft
2,202 FT²
Beds
4
Baths
2.5
Stories
1.5
Garage
2
Depth
61'
Width
65' 2"
 
Click to Zoom In on Floor Plan
© copyright by designer
 
 

About This Plan

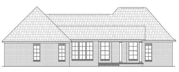
This home features a spacious and flexible floorplan with the popular traditional European country styling. The design includes many of the "most-requested" features that your family is looking for in your next home, including 4 spacious bedrooms, 2 1/2 large baths, the popular split-bedroom layout, optional bonus room, and many other unique features. The isolated master suite includes a raised ceiling, oversized jet tub, separate shower, large his and her walk-in closets, and dual lavatories. Enjoy the large kitchen, raised eating bar, and spacious breakfast area....perfect for entertaining or for those daily family meals. The expansive great room features the very popular gas log fireplace and trayed ceiling. The large utility/laundry includes plenty of space for folding and storing clothing and other goods. Oversized garage features both open and closed storage. Covered front and rear porches provide a quiet location for family bar-b-ques and casual conversation. A great value in space planning! 

See All Plan Options
 

FEATURES & DETAILS

Kitchen features
Country Kitchen
Nook / Breakfast Area
Peninsula / Eating Bar
Bedroom features
Double Vanity Sink
His and Hers Primary Closets
Primary Bdrm Main Floor
Separate Tub and Shower
Split Bedrooms
Walk-in Closet
Exterior features
Covered Front Porch
Covered Rear Porch
Front Porch
Foundation Options
Crawlspace
Slab
Lot Options
Suited for corner lot
Suited for sloping lot
Suited for view lot
Additional features
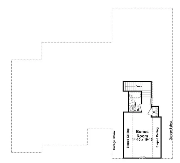
Bonus Room
Dining Room
Exercise Room
Fireplace
Foyer
Great Room
Home Office
Laundry 1st Fl
Open Floor Plan
Storage Space
Workshop
Garage Location
Side
Garage Options
Attached
Oversized
2,202 Ft
2
Total Heated
2,202 Ft
2
1st Floor
4
Bedrooms
2.5
Bathrooms
2
Garage
1.5
Stories
65' 2"
Width
61' 0"
Depth
21' 9"
Height
9' 0"
Main Floor Ceiling
8' 0"
Upper Floor Ceiling
2x4
Framing
Stick
Roof Framing
8/12
Primary Roof Pitch
14/12
Secondary Roof Pitch
Single
Dwelling Number
2nd Floor
Bonus Access

Unheated Living Space
650 Ft
2
Garage
164 Ft
2
Porch
426 Ft
2
Bonus Room
 

Plan Package Options

 Select Plan Package
 Need To Reverse Plan? (Optional)
  Select Foundation Option
  Add-Ons (Optional)
INCLUDED WITH YOUR PURCHASE

Free Ground shipping in the U.S.

FREE

Home Building & Product Ideas Organizer

Sub Total
$0
Free Shipping
QUESTIONS OR NEED HELP ORDERING? LIVE CHAT OR CALL US AT 866-214-2242
Plan Packages

Each set of construction documents typically includes detailed, dimensioned floor plans, basic electric layouts, cross sections, roof details, cabinet layouts, and elevations, as well as general IRC specifications. Please refer to the ARCHITECT or DESIGNER’S PLAN DETAILS link above the floor plan on any plan page to determine the specific details for each plan. Our house plans contain virtually all of the information required to construct your home. The typical plan set does not include plumbing, HVAC drawings, or engineering stamps due to the wide variety of specific needs, local codes, and climatic conditions. These details and specifications are easily obtained from your builder, contractors, and/or local engineers.

BEST PRICE GUARANTEE

Find the same house plan (modifications included!) and package for less on another site, show us the URL and we'll give you the difference plus an additional 10% back.

100% SATISFACTION GUARANTEE

We offer a one-time, 30-day exchange policy for unused, printed plan packages in the event you aren't satisfied with your first selection.

 
 

Plan 6570  Back to plan page

Loading...