Get discounts,
promos, see our
newest plans
and more!
+ 15% off any plan
See terms opt out anytime


No Thanks

Thanks for
signing up!


Use Code:

SIGNUP15

And save 15% off any plan!

Check your email for details.

CLOSE
Search Plans
Customer Reviews
     
15% off ALL House Plans Sitewide
15% off ALL House Plans Sitewide
15% off ALL House Plans Sitewide

Code: MOM15
Sale ends midnight 5/11/2026 PST

Sq Ft
3,029 FT²

Beds
4

Baths
3.5

Stories
1

Garage
2

Depth
77' 11"

Width
69' 11"
On Sale
$1,695.75
$1,995.00
© copyright by architect
 View All 2 Images | Photographs may reflect modified home
Sq Ft
3,029 FT²
Beds
4
Baths
3.5
Stories
1
Garage
2
Depth
77' 11"
Width
69' 11"
 
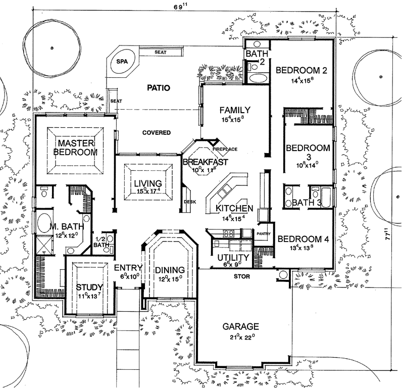
Click to Zoom In on Floor Plan
© copyright by architect
 
 

About This Plan

Distinctive brick detailing and arched windows add quality to this traditional single level family home. The remote master suite has direct access to the covered rear deck/patio and Bath 2 can be entered from the backyard. A study/office is at the main entry and there are separate living and a family rooms. The garage is side entry. 

See All Plan Options
 

FEATURES & DETAILS

Exterior features
Front Porch
Foundation Options
Crawlspace
Slab
Garage Location
Side
Garage Options
Attached
3,029 Ft
2
Total Heated
3,029 Ft
2
1st Floor
3,029 Ft
2
Lower Floor
4
Bedrooms
3.5
Bathrooms
2
Garage
1
Stories
69' 11"
Width
77' 11"
Depth
31' 0"
Height
10' 0"
Main Floor Ceiling
2x4
Framing
Stick
Roof Framing
10/12
Primary Roof Pitch
Single
Dwelling Number
None
Bonus Access

Unheated Living Space
484 Ft
2
Garage
 

Plan Package Options

 Select Plan Package
 Need To Reverse Plan? (Optional)
  Select Foundation Option
  Add-Ons (Optional)
INCLUDED WITH YOUR PURCHASE

Free Ground shipping in the U.S.

FREE

Home Building & Product Ideas Organizer

Sub Total
$0
Free Shipping
IMPORTANT NOTE: Due to state regulations, the CAD version may not be sold to residents of AL, TN, TX, NM and LA. If residing in any of the aforementioned states, the PDF version does not come with a release to make plan modifications. Modifications can be provided by the original architect. Please contact us for more information.
QUESTIONS OR NEED HELP ORDERING? LIVE CHAT OR CALL US AT 866-214-2242
Plan Packages

Each set of construction documents typically includes detailed, dimensioned floor plans, basic electric layouts, cross sections, roof details, cabinet layouts, and elevations, as well as general IRC specifications. Please refer to the ARCHITECT or DESIGNER’S PLAN DETAILS link above the floor plan on any plan page to determine the specific details for each plan. Our house plans contain virtually all of the information required to construct your home. The typical plan set does not include plumbing, HVAC drawings, or engineering stamps due to the wide variety of specific needs, local codes, and climatic conditions. These details and specifications are easily obtained from your builder, contractors, and/or local engineers.

BEST PRICE GUARANTEE

Find the same house plan (modifications included!) and package for less on another site, show us the URL and we'll give you the difference plus an additional 10% back.

100% SATISFACTION GUARANTEE

We offer a one-time, 30-day exchange policy for unused, printed plan packages in the event you aren't satisfied with your first selection.

 
 

Plan 2958  Back to plan page

Loading...