Get discounts,
promos, see our
newest plans
and more!
+ 15% off any plan
See terms opt out anytime


No Thanks

Thanks for
signing up!


Use Code:

SIGNUP15

And save 15% off any plan!

Check your email for details.

CLOSE
Search Plans
Customer Reviews
     
22% Off House Plans Sitewide Ends Sunday
22% Off House Plans Sitewide Ends Sunday
22% Off House Plans Sitewide Ends Sunday

Code: SAVE22
Sale ends midnight 12/7/2025 PST

The Cam Affordable Narrow Lot Farmhouse Style House, Plan 6575

 
 

Sq Ft
1,855 FT²

Beds
4

Baths
3

Stories
2

Garage
1

Depth
54' 6"

Width
29'
On Sale
$1,153.62
$1,479.00
© copyright by designer
 View All 4 Images | Photographs may reflect modified home
Sq Ft
1,855 FT²
Beds
4
Baths
3
Stories
2
Garage
1
Depth
54' 6"
Width
29'
 
Click to Zoom In on Floor Plan
© copyright by designer
 
 

About This Plan

This adorable 2 story classic farm-style home is perfect for builders or families that have a limited width. Coming in at 29’ wide and 54’6” depth, you’re still getting almost 2,000 heated sq.ft., 4 bedrooms and 3 bathrooms!

Entering the board and batten cottage, you’ll immediately have access to the full shower bathroom used by the 4th bedroom / den flex space as well as the coat closet for those chillier visits. There is a storage space underneath the stairwell.

The great room and kitchen / dining is open and takes up the entire back lower level. There’s a corner fireplace setting the ambiance as well as natural light from the back patio doors. There is a good sized built-in island, and the 3 point kitchen brings ease to those weeknight dinners for the family.

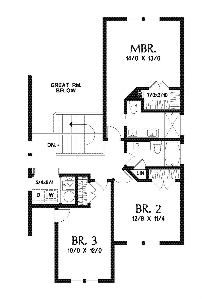
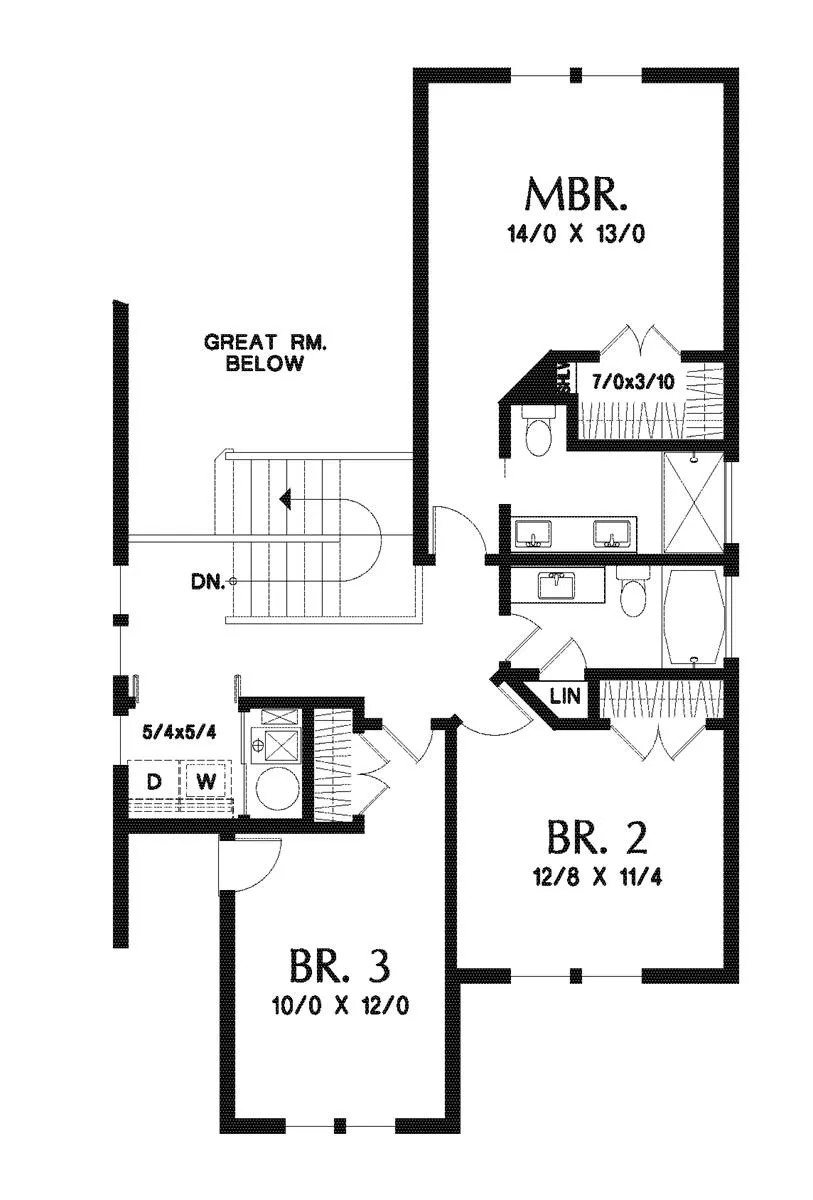
Up the stairs you’ll find the remaining 3 bedrooms as well as the laundry area for the home that has accordion doors. Both secondary bedrooms share the hallways bath while the master of the home has an ensuite bath with dual vanities and a large walk-in shower. 

See All Plan Options
 

FEATURES & DETAILS

Kitchen features
Kitchen Island
L-Shaped
Pantry
Bedroom features
Double Vanity Sink
Primary Bdrm Upstairs
Walk-in Closet
Exterior features
Covered Front Porch
Covered Rear Porch
Lot Options
Suited for narrow lot
Additional features
Dining Room
Fireplace
Great Room
Home Office
Laundry 2nd Fl
Open Floor Plan
Vaulted Great Room/Living
Garage Location
Front
Garage Options
Attached
Front-entry
2,150 Ft
2
Total Structure
1,855 Ft
2
Total Heated
916 Ft
2
1st Floor
939 Ft
2
2nd Floor
4
Bedrooms
3
Bathrooms
1
Garage
2
Stories
29' 0"
Width
54' 6"
Depth
29' 11"
Height
9' 0"
Main Floor Ceiling
9' 0"
Upper Floor Ceiling
Vaulted' 0"
Living/Great Room Ceiling
2x6
Framing
Truss
Roof Framing
10/12
Primary Roof Pitch
Single
Dwelling Number
None
Bonus Access

Unheated Living Space
295 Ft
2
Garage
 

Plan Package Options

 Select Plan Package
Sale: $1,154
PDF Single Build
$1,479

Digital plans emailed to you in PDF format that allows for printing copies and sharing electronically with contractors, subs, decorators, and more. This package includes a license to build the home one time.

Sale: $1,154
Sale: $1,388
5 Printed Sets + PDF
$1,779

Digital plan emailed to you in PDF format that allows for printing copies on a home printer or local print shop and sharing with contractors, subs, decorators, and more. PLUS five printed sets shipped and delivered 3-5 business days.

Sale: $1,388
Sale: $2,307
CAD + PDF Single Build
$2,958

CAD files are a complete set of construction drawings delivered electronically. They can be used for any type of modification—including major design changes and engineering—and include a release granting permission to modify the plan. Most CAD plan orders are emailed the same or next business day.
 
This package also comes with a PDF set of plans and a copyright release for making modifications and printing unlimited copies.
 
CAD files are provided in .dwg format. For details on the specific CAD program used, please refer to the PLAN DETAILS section located above the floor plan on each plan’s page.

Sale: $2,307
 Need To Reverse Plan? (Optional)
$250
Readable Reverse

Reverse house plans with readable text and dimensions 

$250
  Select Foundation Option
  Add-Ons (Optional)
INCLUDED WITH YOUR PURCHASE

Free Ground shipping in the Continental U.S.

FREE

Design consultation with the architect or designer to discuss your plan

Home Building & Product Ideas Organizer

Sub Total
$0
Free Shipping
QUESTIONS OR NEED HELP ORDERING? LIVE CHAT OR CALL US AT 866-214-2242
Plan Packages

Each set of construction documents includes detailed, dimensioned floor plans, basic electric layouts, cross sections, roof details, cabinet layouts and elevations, as well as general IRC specifications. They contain virtually all of the information required to construct your home. The typical plan set does not include any plumbing, HVAC drawings, or engineering stamps due to the wide variety of specific needs, local codes, and climatic conditions. These details and specifications are easily obtained from your builder, contractors, and/or local engineers.

BEST PRICE GUARANTEE

find the same house plan (modifications included!) and package for less on another site, show us the URL and we'll give you the difference plus an additional 5% back.

100% SATISFACTION GUARANTEE

We offer a one-time, 30-day exchange policy for unused, non-electronic plan packages in the event you aren't satisfied with your first selection.

 
 

Plan 6575  Back to plan page

Loading...