Get discounts,
promos, see our
newest plans
and more!
+ 15% off any plan
See terms opt out anytime


No Thanks

Thanks for
signing up!


Use Code:

SIGNUP15

And save 15% off any plan!

Check your email for details.

CLOSE
Search Plans
     
15% Off House Plans Sitewide Ends Sunday
15% Off House Plans Sitewide Ends Sunday
15% Off House Plans Sitewide Ends Sunday

Code: SAVE15
Sale ends midnight 11/16/2025 PST

Sq Ft
2,336 FT²

Beds
4

Baths
2.5

Stories
1.5

Garage
2

Depth
73' 10"

Width
72' 8"
On Sale
$1,190.00
$1,400.00
© copyright by designer
 View All 5 Images | Photographs may reflect modified home | Home Tour
Sq Ft
2,336 FT²
Beds
4
Baths
2.5
Stories
1.5
Garage
2
Depth
73' 10"
Width
72' 8"
 

 
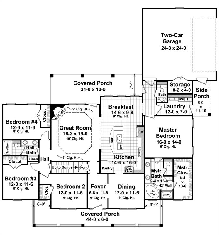
Click to Zoom In on Floor Plan
© copyright by designer
 
 

About This Plan

This charming country home offers much more than just great style. It also features a floorplan designed for the busy lifestyles of families today. The large great room features a gas log fireplace, trayed ceilings, and provides a perfect place to entertain guests. The well-equipped kitchen features a raised bar, large pantry, and easy access to the neighboring dining room. The master suite features a large walk-in closet, dual lavatories, jet tub, separate shower, and enclosed toilet. The other three bedrooms all include large closets. This home also features great porch areas for outdoor entertaining and a large two car garage complete with separate storage space. Make this your family's next home! 

See All Plan Options
 

FEATURES & DETAILS

Kitchen features
Country Kitchen
Kitchen Island
Nook / Breakfast Area
Peninsula / Eating Bar
Walk-in Pantry
Bedroom features
Double Vanity Sink
Primary Bdrm Main Floor
Separate Tub and Shower
Split Bedrooms
Walk-in Closet
Exterior features
Covered Front Porch
Covered Rear Porch
Front Porch
Rear Porch
Foundation Options
Basement
Crawlspace
Slab
Lot Options
Suited for corner lot
Suited for sloping lot
Suited for view lot
Additional features
Dining Room
Exercise Room
Fireplace
Foyer
Great Room
Home Office
Laundry 1st Fl
Mud Room
Open Floor Plan
Unfinished Space
Workshop
Garage Location
Side
Garage Options
Attached
Oversized
2,336 Ft
2
Total Heated
2,336 Ft
2
1st Floor
4
Bedrooms
2.5
Bathrooms
2
Garage
1.5
Stories
72' 8"
Width
73' 10"
Depth
26' 10"
Height
9' 0"
Main Floor Ceiling
8' 0"
Upper Floor Ceiling
2x4
Framing
Stick
Roof Framing
10/12
Primary Roof Pitch
4:12
Secondary Roof Pitch
Single
Dwelling Number
2nd Floor
Bonus Access

Unheated Living Space
656 Ft
2
Garage
673 Ft
2
Porch
576 Ft
2
Bonus Room
 

Plan Package Options

 Select Plan Package
Sale: $1,062
Study Set - Printed
$1,250
One printed set of house plans stamped NOT FOR CONSTRUCTION". This set is intended for review purposes and are mailed to you. To build from the plans, you need to upgrade to a licensed set.
Sale: $1,062
Sale: $1,190
PDF Single Build
$1,400

Digital plans emailed to you in PDF format that allows for printing copies and sharing electronically with contractors, subs, decorators, and more. This package includes a license to build the home one time.

Sale: $1,190
Sale: $1,275
5 Printed Sets
$1,500

Five Printed Sets of Residential Construction Drawings are typically 24” x 36” documents and come with a license to construct a single residence shipped to a physical address. Keep in mind PDF Plan Packages are our most popular choice which allows you to print as many copies as you need and to electronically send files to your builder, subcontractors, etc.

Sale: $1,275
Sale: $1,445
5 Printed Sets + PDF
$1,700

Digital plan emailed to you in PDF format that allows for printing copies on a home printer or local print shop and sharing with contractors, subs, decorators, and more. PLUS five printed sets shipped and delivered 3-5 business days.

Sale: $1,445
Sale: $1,785
CAD + PDF Single Build
$2,100

CAD files are a complete set of construction drawings delivered electronically. They can be used for any type of modification—including major design changes and engineering—and include a release granting permission to modify the plan. Most CAD plan orders are emailed the same or next business day.
 
This package also comes with a PDF set of plans and a copyright release for making modifications and printing unlimited copies.
 
CAD files are provided in .dwg format. For details on the specific CAD program used, please refer to the PLAN DETAILS section located above the floor plan on each plan’s page.

Sale: $1,785
 Need To Reverse Plan? (Optional)
$150
Readable Reverse

Reverse house plans with readable text and dimensions 

$150
  Select Foundation Option
  Add-Ons (Optional)
INCLUDED WITH YOUR PURCHASE

Free Ground shipping in the Continental U.S.

FREE

Design consultation with the architect or designer to discuss your plan

Home Building & Product Ideas Organizer

Sub Total
$0
Free Shipping
QUESTIONS OR NEED HELP ORDERING? LIVE CHAT OR CALL US AT 866-214-2242
Plan Packages

Each set of construction documents includes detailed, dimensioned floor plans, basic electric layouts, cross sections, roof details, cabinet layouts and elevations, as well as general IRC specifications. They contain virtually all of the information required to construct your home. The typical plan set does not include any plumbing, HVAC drawings, or engineering stamps due to the wide variety of specific needs, local codes, and climatic conditions. These details and specifications are easily obtained from your builder, contractors, and/or local engineers.

BEST PRICE GUARANTEE

find the same house plan (modifications included!) and package for less on another site, show us the URL and we'll give you the difference plus an additional 5% back.

100% SATISFACTION GUARANTEE

We offer a one-time, 30-day exchange policy for unused, non-electronic plan packages in the event you aren't satisfied with your first selection.

Customer Reviews of House Plan 1028
10/26/2019
Christopher of Hopkinsville, KY
Customer Review:
Customer relations with everyone we dealt with was great. They discussed every step of the process and has still continued to stay in touch while we are building the house! We made a few adjustments to the plans and they put us in contact with the architect that was able to make that happen as well. All of the contractors seem to really like the detailed plans!! Strongly recommend this company if anyone is wanting to build!!

SEE All Reviews
 
 

Plan 1028  Back to plan page

Loading...