Get discounts,
promos, see our
newest plans
and more!
+ 15% off any plan
See terms opt out anytime


No Thanks

Thanks for
signing up!


Use Code:

SIGNUP15

And save 15% off any plan!

Check your email for details.

CLOSE
Search Plans
Customer Reviews
     
22% Off House Plans Sitewide Ends Sunday
22% Off House Plans Sitewide Ends Sunday
22% Off House Plans Sitewide Ends Sunday

Code: SAVE22
Sale ends midnight 12/7/2025 PST

Sq Ft
1,919 FT²

Beds
3

Baths
2.5

Stories
1

Garage
2

Depth
61' 8"

Width
69'
On Sale
$1,014.00
$1,300.00
© copyright by designer
 View All 6 Images | Photographs may reflect modified home
Sq Ft
1,919 FT²
Beds
3
Baths
2.5
Stories
1
Garage
2
Depth
61' 8"
Width
69'
 
Click to Zoom In on Floor Plan
© copyright by designer
 
 

About This Plan

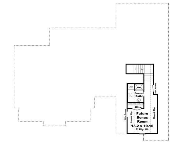
Looking for the plan that has it all? Then look no further. This home is packed with all the features that you've always wanted, all around 1900 s.f. A foyer, formal dining room, and half bath are all extras that you would expect to find in a much larger home. The great room includes vaulted ceilings, built-in cabinets and a gas log fireplace. The kitchen is well-equipped and is located within close proximity to the breakfast area, dining room, and garage entrance. The master suite includes a trayed ceiling, dual lavatories, compartmented toilet, whirlpool tub, separate shower, and his and hers closets. Each of the other bedrooms also feature individual walk-in closets and share a bath with separate tub and toilet room. The front and rear porches provide perfect outdoor living space. The bonus room is also a great place for a playroom / gameroom and even has space for a future bath. The many available features and flexibility of this home make it the perfect choice for you and your family.
 

See All Plan Options
 

FEATURES & DETAILS

Kitchen features
Country Kitchen
Nook / Breakfast Area
Peninsula / Eating Bar
Bedroom features
Double Vanity Sink
His and Hers Primary Closets
Primary Bdrm Main Floor
Separate Tub and Shower
Split Bedrooms
Walk-in Closet
Exterior features
Covered Front Porch
Covered Rear Porch
Front Porch
Rear Porch
Foundation Options
Basement
Crawlspace
Slab
Lot Options
Suited for corner lot
Suited for sloping lot
Suited for view lot
Additional features
Bonus Room
Dining Room
Exercise Room
Fireplace
Foyer
Great Room
Home Office
Laundry 1st Fl
Open Floor Plan
Storage Space
Unfinished Space
Workshop
Garage Location
Side
Garage Options
Attached
Oversized
1,919 Ft
2
Total Heated
3
Bedrooms
2.5
Bathrooms
2
Garage
1
Stories
69' 0"
Width
61' 8"
Depth
21' 8"
Height
9' 0"
Main Floor Ceiling
2x4
Framing
Stick
Roof Framing
8/12
Primary Roof Pitch
12:12
Secondary Roof Pitch
4:12
Teritary Roof Pitch
Single
Dwelling Number
2nd Floor
Bonus Access

Unheated Living Space
723 Ft
2
Garage
447 Ft
2
Porch
327 Ft
2
Bonus Room
 

Plan Package Options

 Select Plan Package
Sale: $897
Study Set - Printed
$1,150
One printed set of house plans stamped NOT FOR CONSTRUCTION". This set is intended for review purposes and are mailed to you. To build from the plans, you need to upgrade to a licensed set.
Sale: $897
Sale: $1,014
PDF Single Build
$1,300

Digital plans emailed to you in PDF format that allows for printing copies and sharing electronically with contractors, subs, decorators, and more. This package includes a license to build the home one time.

Sale: $1,014
Sale: $1,092
5 Printed Sets
$1,400

Five Printed Sets of Residential Construction Drawings are typically 24” x 36” documents and come with a license to construct a single residence shipped to a physical address. Keep in mind PDF Plan Packages are our most popular choice which allows you to print as many copies as you need and to electronically send files to your builder, subcontractors, etc.

Sale: $1,092
Sale: $1,248
5 Printed Sets + PDF
$1,600

Digital plan emailed to you in PDF format that allows for printing copies on a home printer or local print shop and sharing with contractors, subs, decorators, and more. PLUS five printed sets shipped and delivered 3-5 business days.

Sale: $1,248
Sale: $1,521
CAD + PDF Single Build
$1,950

CAD files are a complete set of construction drawings delivered electronically. They can be used for any type of modification—including major design changes and engineering—and include a release granting permission to modify the plan. Most CAD plan orders are emailed the same or next business day.
 
This package also comes with a PDF set of plans and a copyright release for making modifications and printing unlimited copies.
 
CAD files are provided in .dwg format. For details on the specific CAD program used, please refer to the PLAN DETAILS section located above the floor plan on each plan’s page.

Sale: $1,521
 Need To Reverse Plan? (Optional)
$150
Readable Reverse

Reverse house plans with readable text and dimensions 

$150
  Select Foundation Option
  Add-Ons (Optional)
INCLUDED WITH YOUR PURCHASE

Free Ground shipping in the Continental U.S.

FREE

Design consultation with the architect or designer to discuss your plan

Home Building & Product Ideas Organizer

Sub Total
$0
Free Shipping
QUESTIONS OR NEED HELP ORDERING? LIVE CHAT OR CALL US AT 866-214-2242
Plan Packages

Each set of construction documents includes detailed, dimensioned floor plans, basic electric layouts, cross sections, roof details, cabinet layouts and elevations, as well as general IRC specifications. They contain virtually all of the information required to construct your home. The typical plan set does not include any plumbing, HVAC drawings, or engineering stamps due to the wide variety of specific needs, local codes, and climatic conditions. These details and specifications are easily obtained from your builder, contractors, and/or local engineers.

BEST PRICE GUARANTEE

find the same house plan (modifications included!) and package for less on another site, show us the URL and we'll give you the difference plus an additional 5% back.

100% SATISFACTION GUARANTEE

We offer a one-time, 30-day exchange policy for unused, non-electronic plan packages in the event you aren't satisfied with your first selection.

 
 

Plan 5761  Back to plan page

Loading...