Get discounts,
promos, see our
newest plans
and more!
+ 15% off any plan
See terms opt out anytime


No Thanks

Thanks for
signing up!


Use Code:

SIGNUP15

And save 15% off any plan!

Check your email for details.

CLOSE
Search Plans
Customer Reviews
     
America’s Top Home Plans
Trusted House Plans From America's Leading Architects & Designers

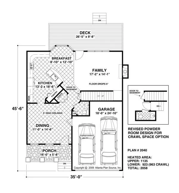
The Andover 3 Bedroom Country Style House, Plan 7527

 
 

Sq Ft
2,058 FT²

Beds
3

Baths
2.5

Stories
2

Garage
2

Depth
45' 6"

Width
35'
From
$1,395.00
© copyright by designer
 View All 5 Images | Photographs may reflect modified home
Sq Ft
2,058 FT²
Beds
3
Baths
2.5
Stories
2
Garage
2
Depth
45' 6"
Width
35'
 
Click to Zoom In on Floor Plan
© copyright by designer
 
 

About This Plan

This 2,058 sq. ft. home offers spacious living in a compact design! Designed for today’s more narrow lots, this plan features three spacious bedrooms secluded on the upper level. A cheery front porch and a window box planter welcome you into this Craftsman gem. Leading the way past a spacious dining room, the tile foyer arrives at a powder room, coat closet, family room and sunny breakfast nook & kitchen. The dramatic and spacious kitchen flows neatly from an angled pantry to the recipe desk and serving bar. Stairs off the family room deliver you to the upper level with an elegant master suite offering an abundance of storage in his-and-hers closets. A quaint sitting area with a window is a delightful surprise! With its corner shower, garden tub and separate toilet compartment, this luxurious bath completes the owner’s retreat. Two generous bedrooms sharing a Jack-and-Jill bath and an oversized laundry complete the accommodations of the upper level.

 

See All Plan Options
 

FEATURES & DETAILS

Kitchen features
Kitchen Island
Nook / Breakfast Area
Bedroom features
Double Vanity Sink
His and Hers Primary Closets
Primary Bdrm Upstairs
Sitting Area
Walk-in Closet
Exterior features
Covered Front Porch
Deck
Rear Porch
Foundation Options
Basement
Crawlspace
Slab
Additional features
Dining Room
Family Room
Laundry 2nd Fl
Open Floor Plan
Storage Space
Garage Location
Front
Garage Options
Attached
Front-entry
2,058 Ft
2
Total Heated
923 Ft
2
1st Floor
1,135 Ft
2
2nd Floor
3
Bedrooms
2.5
Bathrooms
2
Garage
2
Stories
35' 0"
Width
45' 6"
Depth
28' 11"
Height
9' 0"
Main Floor Ceiling
8' 0"
Upper Floor Ceiling
2x4
Framing
Stick
Roof Framing
6/12
Primary Roof Pitch
Single
Dwelling Number
None
Bonus Access

Unheated Living Space
 

Plan Package Options

 Select Plan Package
 Need To Reverse Plan? (Optional)
  Select Foundation Option
  Add-Ons (Optional)
INCLUDED WITH YOUR PURCHASE

Free Ground shipping in the U.S.

FREE

Home Building & Product Ideas Organizer

Sub Total
$0
Free Shipping
QUESTIONS OR NEED HELP ORDERING? LIVE CHAT OR CALL US AT 866-214-2242
Plan Packages

Each set of construction documents typically includes detailed, dimensioned floor plans, basic electric layouts, cross sections, roof details, cabinet layouts, and elevations, as well as general IRC specifications. Please refer to the ARCHITECT or DESIGNER’S PLAN DETAILS link above the floor plan on any plan page to determine the specific details for each plan. Our house plans contain virtually all of the information required to construct your home. The typical plan set does not include plumbing, HVAC drawings, or engineering stamps due to the wide variety of specific needs, local codes, and climatic conditions. These details and specifications are easily obtained from your builder, contractors, and/or local engineers.

BEST PRICE GUARANTEE

Find the same house plan (modifications included!) and package for less on another site, show us the URL and we'll give you the difference plus an additional 10% back.

100% SATISFACTION GUARANTEE

We offer a one-time, 30-day exchange policy for unused, printed plan packages in the event you aren't satisfied with your first selection.

 
 

Plan 7527  Back to plan page

Loading...