Get discounts,
promos, see our
newest plans
and more!
+ 15% off any plan
See terms opt out anytime


No Thanks

Thanks for
signing up!


Use Code:

SIGNUP15

And save 15% off any plan!

Check your email for details.

CLOSE
Search Plans
Customer Reviews
     
20% off ALL House Plans Sitewide
20% off ALL House Plans Sitewide
20% off ALL House Plans Sitewide

Code: SAVE20
Sale ends midnight 3/22/2026 PST

Sq Ft
2,505 FT²

Beds
3

Baths
3

Stories
1.5

Garage
2

Depth
53' 6"

Width
79' 4"
On Sale
$1,240.00
$1,550.00
© copyright by designer
 View All 4 Images | Photographs may reflect modified home
Sq Ft
2,505 FT²
Beds
3
Baths
3
Stories
1.5
Garage
2
Depth
53' 6"
Width
79' 4"
 
Click to Zoom In on Floor Plan
© copyright by designer
 
 

About This Plan

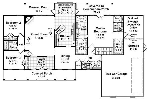
The larger version of the house North Americans really love. It has a his and her bath and gigantic closets for all the "good stuff" we just cannot throw away. Sunroom. Jet tub for her. Walk-in shower for him. Formal dining and breakfast. Wonderful master suite with office/nursery/hobby room/shop/whatever room off the master suite. Raised bar. Beautiful views out the back to keep an eye on the loved ones. Vaulted great room with fireplace and gas logs. A great house to come home to. 

See All Plan Options
 

FEATURES & DETAILS

Kitchen features
Country Kitchen
Nook / Breakfast Area
Peninsula / Eating Bar
Bedroom features
Double Vanity Sink
His and Hers Primary Closets
Primary Bdrm Main Floor
Separate Tub and Shower
Split Bedrooms
Walk-in Closet
Exterior features
Covered Front Porch
Covered Rear Porch
Front Porch
Rear Porch
Screened Porch/Sunroom
Foundation Options
Crawlspace
Slab
Lot Options
Suited for corner lot
Suited for sloping lot
Suited for view lot
Additional features
Bonus Room
Dining Room
Exercise Room
Fireplace
Foyer
Great Room
Home Office
Laundry 1st Fl
Open Floor Plan
Storage Space
Unfinished Space
Workshop
Garage Location
Side
Garage Options
Attached
Oversized
2,505 Ft
2
Total Heated
2,100 Ft
2
1st Floor
405 Ft
2
2nd Floor
3
Bedrooms
3
Bathrooms
2
Garage
1.5
Stories
79' 4"
Width
53' 6"
Depth
26' 4"
Height
9' 0"
Main Floor Ceiling
8' 0"
Upper Floor Ceiling
2x4
Framing
Stick
Roof Framing
10/12
Primary Roof Pitch
12:12
Secondary Roof Pitch
Single
Dwelling Number
None
Bonus Access

Unheated Living Space
569 Ft
2
Garage
99 Ft
2
Storage
512 Ft
2
Porch
 

Plan Package Options

 Select Plan Package
 Need To Reverse Plan? (Optional)
  Select Foundation Option
  Add-Ons (Optional)
INCLUDED WITH YOUR PURCHASE

Free Ground shipping in the U.S.

FREE

Home Building & Product Ideas Organizer

Sub Total
$0
Free Shipping
QUESTIONS OR NEED HELP ORDERING? LIVE CHAT OR CALL US AT 866-214-2242
Plan Packages

Each set of construction documents includes detailed, dimensioned floor plans, basic electric layouts, cross sections, roof details, cabinet layouts and elevations, as well as general IRC specifications. They contain virtually all of the information required to construct your home. The typical plan set does not include any plumbing, HVAC drawings, or engineering stamps due to the wide variety of specific needs, local codes, and climatic conditions. These details and specifications are easily obtained from your builder, contractors, and/or local engineers.

BEST PRICE GUARANTEE

Find the same house plan (modifications included!) and package for less on another site, show us the URL and we'll give you the difference plus an additional 10% back.

100% SATISFACTION GUARANTEE

We offer a one-time, 30-day exchange policy for unused, printed plan packages in the event you aren't satisfied with your first selection.

 
 

Plan 5878  Back to plan page

Loading...