Get discounts,
promos, see our
newest plans
and more!
+ 15% off any plan
See terms opt out anytime


No Thanks

Thanks for
signing up!


Use Code:

SIGNUP15

And save 15% off any plan!

Check your email for details.

CLOSE
Search Plans
Customer Reviews
     
15% off ALL House Plans Sitewide
15% off ALL House Plans Sitewide
15% off ALL House Plans Sitewide

Code: SAVE15
Sale ends midnight 4/19/2026 PST

Terra Cova Beautiful Two-Story Modern Style House, Plan 7781

 
 

Sq Ft
3,001 FT²

Beds
4

Baths
3.5

Stories
2

Garage
4

Depth
43'

Width
56'
On Sale
$1,827.50
$2,150.00
© copyright by designer
 View All 21 Images | Photographs may reflect modified home
Sq Ft
3,001 FT²
Beds
4
Baths
3.5
Stories
2
Garage
4
Depth
43'
Width
56'
 
Click to Zoom In on Floor Plan
© copyright by designer
 
 

About This Plan

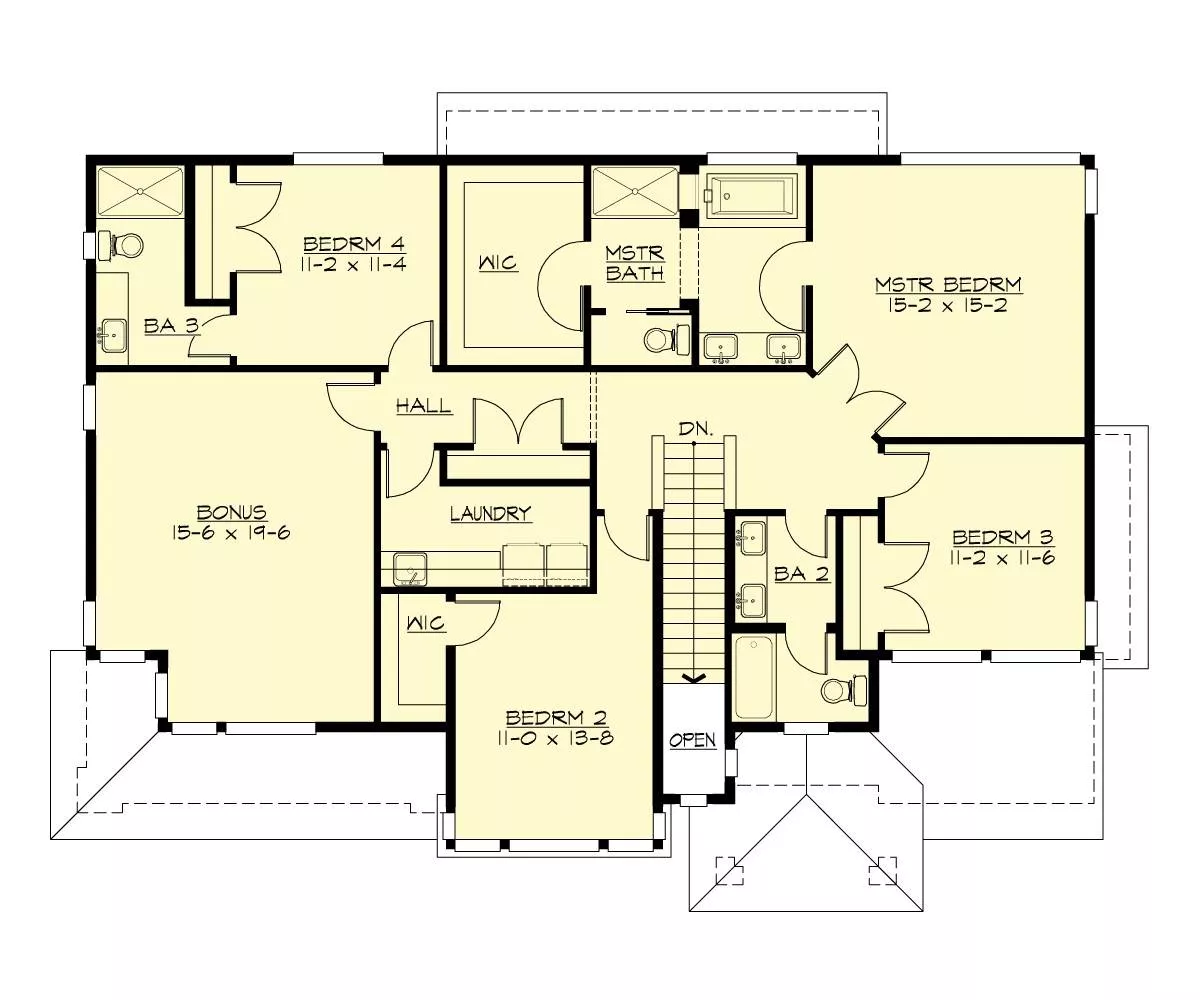
Sleek modern features join with practical designs to create this wonderful contemporary style plan. Thanks to a great attention to detail, this 3,001 square foot home offers 4 bedrooms and 3.5 bathrooms in a 2-story layout that has a vastly reduced footprint. The convenient addition of a 4-car garage is only the beginning of this home. As you step inside, take note of how the entire first level flows together. Past the foyer and den area, the home opens up, finding the island kitchen and family room joined by the dining room, flanked by sliding glass doors which open on to the rear outdoor entertainment area. The second floor provides 3 bedrooms which are great for kids and guests, as well as a bonus room and the master suite. You will certainly love the spacious privacy of the master, including its private bath and large walk-in closet. 

See All Plan Options
 

FEATURES & DETAILS

Kitchen features
Kitchen Island
Walk-in Pantry
Bedroom features
Double Vanity Sink
Primary Bdrm Upstairs
Separate Tub and Shower
Walk-in Closet
Exterior features
Covered Rear Porch
Foundation Options
Crawlspace
Lot Options
Suited for view lot
Additional features
Bonus Room
Dining Room
Foyer
Great Room
Laundry 2nd Fl
Mud Room
Garage Location
Front
Garage Options
Front-entry
Tandem
3,001 Ft
2
Total Heated
1,259 Ft
2
1st Floor
1,742 Ft
2
2nd Floor
4
Bedrooms
3.5
Bathrooms
4
Garage
2
Stories
56' 0"
Width
43' 0"
Depth
24' 0"
Height
9' 0"
Main Floor Ceiling
8' 0"
Upper Floor Ceiling
2x6
Framing
Truss
Roof Framing
4
Primary Roof Pitch
Single
Dwelling Number
2nd Floor
Bonus Access

Unheated Living Space
720 Ft
2
Garage
 

Plan Package Options

 Select Plan Package
 Need To Reverse Plan? (Optional)
  Select Foundation Option
  Add-Ons (Optional)
INCLUDED WITH YOUR PURCHASE

Free Ground shipping in the U.S.

FREE

Home Building & Product Ideas Organizer

Sub Total
$0
Free Shipping
IMPORTANT NOTE: Due to state regulations, this home is not available for purchase in the State of Washington. Contact us for more information.
QUESTIONS OR NEED HELP ORDERING? LIVE CHAT OR CALL US AT 866-214-2242
Plan Packages

Each set of construction documents typically includes detailed, dimensioned floor plans, basic electric layouts, cross sections, roof details, cabinet layouts, and elevations, as well as general IRC specifications. Please refer to the ARCHITECT or DESIGNER’S PLAN DETAILS link above the floor plan on any plan page to determine the specific details for each plan. Our house plans contain virtually all of the information required to construct your home. The typical plan set does not include plumbing, HVAC drawings, or engineering stamps due to the wide variety of specific needs, local codes, and climatic conditions. These details and specifications are easily obtained from your builder, contractors, and/or local engineers.

BEST PRICE GUARANTEE

Find the same house plan (modifications included!) and package for less on another site, show us the URL and we'll give you the difference plus an additional 10% back.

100% SATISFACTION GUARANTEE

We offer a one-time, 30-day exchange policy for unused, printed plan packages in the event you aren't satisfied with your first selection.

 
 

Plan 7781  Back to plan page

Loading...