Get discounts,
promos, see our
newest plans
and more!
+ 15% off any plan
See terms opt out anytime


No Thanks

Thanks for
signing up!


Use Code:

SIGNUP15

And save 15% off any plan!

Check your email for details.

CLOSE
Search Plans
Customer Reviews
     

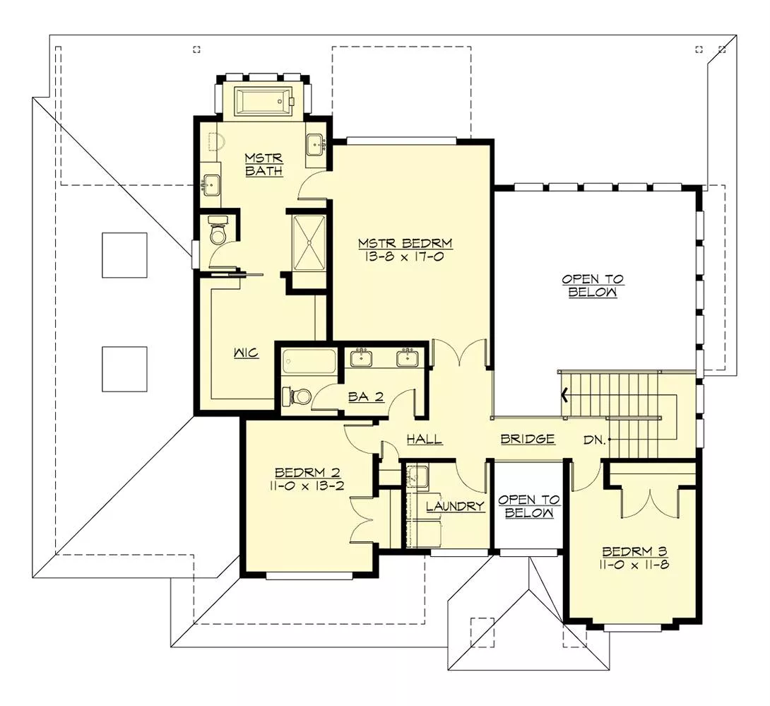
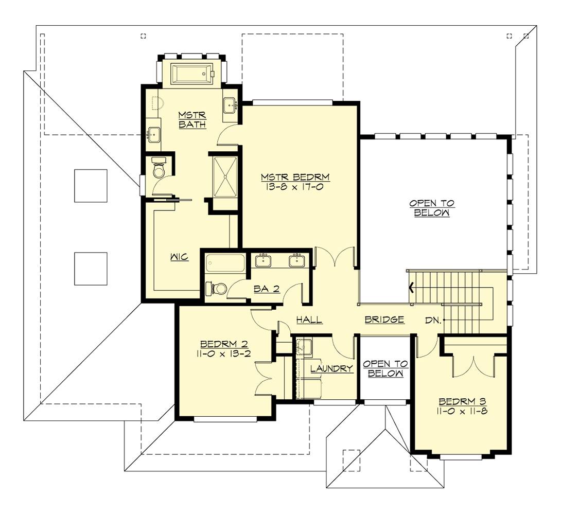
Tegeler Bay Two Story Contemporary Style House, Plan 7718

 
 

Sq Ft
2,555 FT²

Beds
3

Baths
3

Stories
2

Garage
3

Depth
52'

Width
58'
From
$1,950.00
© copyright by designer
 View All 21 Images | Photographs may reflect modified home
Sq Ft
2,555 FT²
Beds
3
Baths
3
Stories
2
Garage
3
Depth
52'
Width
58'
 
Click to Zoom In on Floor Plan
© copyright by designer
 
 

About This Plan

This modern 2-story plan is anything but basic. Prepare to be amazed at the brilliant design concepts that define this sensible 3 bed 3 bath, 2,555 square foot home. Sharp lines and contrasting elements result in an open and airy interior which is open throughout. The interior finds the family room and an impressive island kitchen, as well as a cozy den and 2 covered rear porches! In addition to a 3-car garage, this home even comes with a boat bay, perfect for watercraft, yard equipment, or even additional storage. Upstairs, find the bedrooms, including the master and its spa bath and walk-in closet. 

See All Plan Options
 

FEATURES & DETAILS

Kitchen features
Kitchen Island
Bedroom features
Primary Bdrm Upstairs
Separate Tub and Shower
Walk-in Closet
Exterior features
Covered Rear Porch
Rear Porch
Foundation Options
Crawlspace
Lot Options
Suited for view lot
Additional features
Dining Room
Foyer
Great Room
Home Office
Laundry 2nd Fl
Garage Location
Front
Garage Options
Front-entry
2,555 Ft
2
Total Heated
1,380 Ft
2
1st Floor
1,175 Ft
2
2nd Floor
3
Bedrooms
3
Bathrooms
3
Garage
2
Stories
58' 0"
Width
52' 0"
Depth
25' 6"
Height
9' 0"
Main Floor Ceiling
9' 0"
Upper Floor Ceiling
2x6
Framing
Truss
Roof Framing
4
Primary Roof Pitch
3
Secondary Roof Pitch
Single
Dwelling Number

Unheated Living Space
784 Ft
2
Garage
 

Plan Package Options

 Select Plan Package
$1,950
PDF Single Build

Digital plans emailed to you in PDF format that allows for printing copies and sharing electronically with contractors, subs, decorators, and more. This package includes a license to build the home one time.

$1,950
$3,250
CAD + PDF Unlimited Build

CAD files are a complete set of construction drawings delivered electronically. They can be used for any type of modification—including major design changes and engineering—and include a release granting permission to modify the plan. Most CAD plan orders are emailed the same or next business day.
 
This package also comes with a PDF set of plans and a multi-use building license, granting permission to construct the home an unlimited number of times, along with a copyright release for making modifications and printing unlimited copies.
 
CAD files are provided in .dwg format. For details on the specific CAD program used, please refer to the PLAN DETAILS section located above the floor plan on each plan’s page.

$3,250
 Need To Reverse Plan? (Optional)
$300
Readable Reverse

Reverse house plans with readable text and dimensions 

$300
  Select Foundation Option
  Add-Ons (Optional)
INCLUDED WITH YOUR PURCHASE

Free Ground shipping in the Continental U.S.

FREE

Design consultation with the architect or designer to discuss your plan

Home Building & Product Ideas Organizer

Sub Total
$0
Free Shipping
IMPORTANT NOTE: Due to state regulations, this home is not available for purchase in the State of Washington. Contact us for more information.
QUESTIONS OR NEED HELP ORDERING? LIVE CHAT OR CALL US AT 866-214-2242
Plan Packages

Each set of construction documents includes detailed, dimensioned floor plans, basic electric layouts, cross sections, roof details, cabinet layouts and elevations, as well as general IRC specifications. They contain virtually all of the information required to construct your home. The typical plan set does not include any plumbing, HVAC drawings, or engineering stamps due to the wide variety of specific needs, local codes, and climatic conditions. These details and specifications are easily obtained from your builder, contractors, and/or local engineers.

BEST PRICE GUARANTEE

find the same house plan (modifications included!) and package for less on another site, show us the URL and we'll give you the difference plus an additional 5% back.

100% SATISFACTION GUARANTEE

We offer a one-time, 30-day exchange policy for unused, non-electronic plan packages in the event you aren't satisfied with your first selection.

 
 

Plan 7718  Back to plan page

Loading...