Get discounts,
promos, see our
newest plans
and more!
+ 15% off any plan
See terms opt out anytime


No Thanks

Thanks for
signing up!


Use Code:

SIGNUP15

And save 15% off any plan!

Check your email for details.

CLOSE
Search Plans
Customer Reviews
     

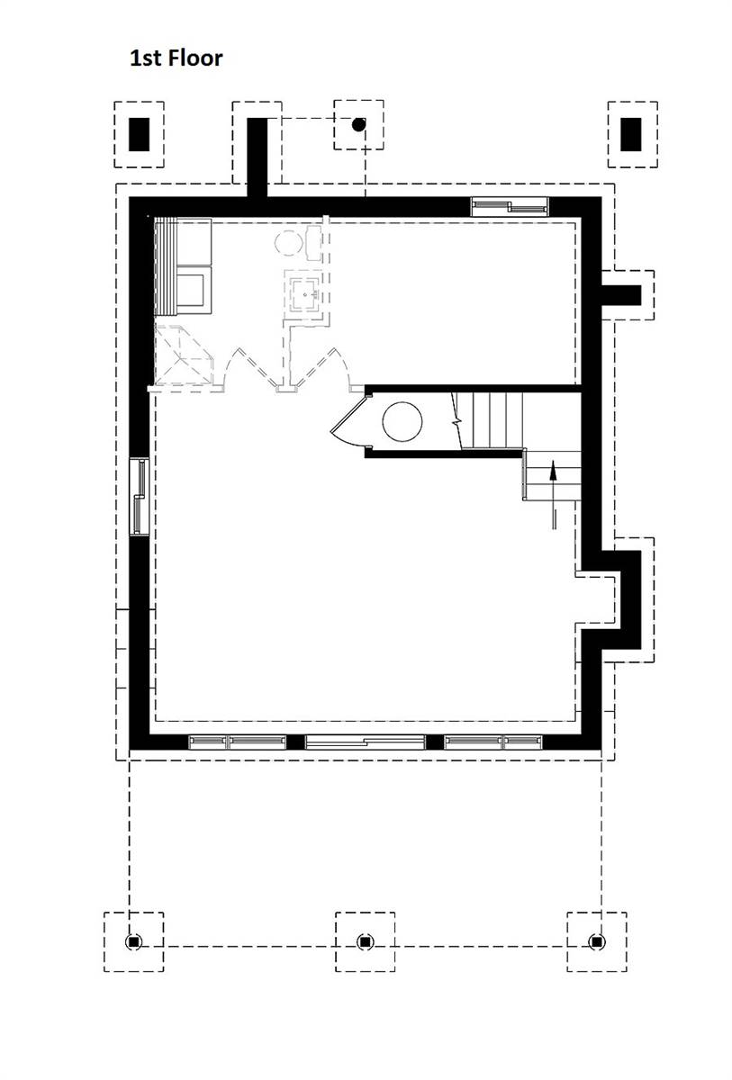
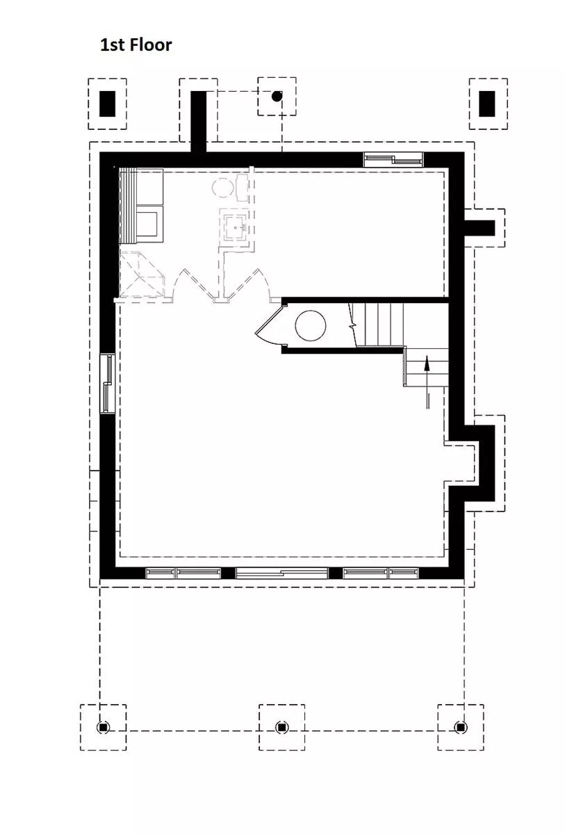
Taylor Modern Cottage Style House, Plan 6371

 
 

Sq Ft
1,344 FT²

Beds
3

Baths
1.5

Stories
3

Garage
0

Depth
28'

Width
26'
From
$1,510.00
© copyright by designer
 View All 6 Images | Photographs may reflect modified home
Sq Ft
1,344 FT²
Beds
3
Baths
1.5
Stories
3
Garage
0
Depth
28'
Width
26'
 
Click to Zoom In on Floor Plan
© copyright by designer
 
 

About This Plan

3-bedroom, 1 bath, 1,344 square foot modern style chalet house plan.  Ideal design for lakefront land or panoramic view.  9' ceiling on main floor.  Home office or guest bedroom on main floor.  Open kitchen living room concept.  Fireplace in living room and also in master suite.  Landry area located in walkout basement.  Master bedroom with fireplace, walk-in closet, access to family bathroom and access to a large private terrace.  Large family bathroom on second floor with separate shower and bath.  Walkout basement. Many foundation options are available.   

See All Plan Options
 

FEATURES & DETAILS

Bedroom features
Primary Bdrm Upstairs
Nursery Room
Split Bedrooms
Walk-in Closet
Exterior features
Covered Front Porch
Covered Rear Porch
Deck
Front Porch
Rear Porch
Foundation Options
Basement
Crawlspace
Slab
Walkout Basement
Additional features
Family Room
Fireplace
Home Office
Open Floor Plan
1,344 Ft
2
Total Heated
672 Ft
2
1st Floor
672 Ft
2
2nd Floor
672 Ft
2
3rd Floor
3
Bedrooms
1.5
Bathrooms
0
Garage
3
Stories
26' 0"
Width
28' 0"
Depth
28' 3"
Height
8' 0"
Main Floor Ceiling
9' 0"
Upper Floor Ceiling
2x6
Framing
Truss
Roof Framing
3/12
Primary Roof Pitch
Single
Dwelling Number

Unheated Living Space
 

Plan Package Options

 Select Plan Package
$1,650
3 Printed Sets + PDF

Includes 3 physical printed blueprints shipped and delivered within 3-5 business days and a copyright release license to construct one home and to make copies. A complimentary PDF plan set is also emailed within 1 business day for easy sharing and local printing. 

$1,650
$1,510
PDF Single Build

Digital plans emailed to you in PDF format that allows for printing copies and sharing electronically with contractors, subs, decorators, and more. This package includes a license to build the home one time.

$1,510
$2,510
CAD + PDF Single Build

This plan package is created in AutoCAD and delivered in .DWG format. CAD files are intended for use by design professionals, structural engineers, and builders to update plans for local building codes or to make revisions based on specific needs, lot requirements, and budget considerations. A complimentary PDF copy is included with this package for reference. CAD packages are delivered within 1 to 2 business days.
 
This package also comes with a copyright release for making revisions and printing unlimited copies.

For details on the specific CAD program used, please refer to the PLAN DETAILS section located above the floor plan on each plan page.

$2,510
 Need To Reverse Plan? (Optional)
$265
Readable Reverse

Reverse house plans with readable text and dimensions 

$265
  Select Foundation Option
  Add-Ons (Optional)
INCLUDED WITH YOUR PURCHASE

Free Ground shipping in the Continental U.S.

FREE

Home Building & Product Ideas Organizer

Sub Total
$0
Free Shipping
Please allow 3-5 business days for delivery of this plan Please check our PDFs NOW collection for plans that can be downloaded and received immediately or live chat us to help you find a similar plan available now.
QUESTIONS OR NEED HELP ORDERING? LIVE CHAT OR CALL US AT 866-214-2242
Plan Packages

Each set of construction documents includes detailed, dimensioned floor plans, basic electric layouts, cross sections, roof details, cabinet layouts and elevations, as well as general IRC specifications. They contain virtually all of the information required to construct your home. The typical plan set does not include any plumbing, HVAC drawings, or engineering stamps due to the wide variety of specific needs, local codes, and climatic conditions. These details and specifications are easily obtained from your builder, contractors, and/or local engineers.

BEST PRICE GUARANTEE

Find the same house plan (modifications included!) and package for less on another site, show us the URL and we'll give you the difference plus an additional 5% back.

100% SATISFACTION GUARANTEE

We offer a one-time, 30-day exchange policy for unused, printed plan packages in the event you aren't satisfied with your first selection. Exchanges are subject to a 20% restocking fee.

 
 

Plan 6371  Back to plan page

Loading...