Get discounts,
promos, see our
newest plans
and more!
+ 15% off any plan
See terms opt out anytime


No Thanks

Thanks for
signing up!


Use Code:

SIGNUP15

And save 15% off any plan!

Check your email for details.

CLOSE
Search Plans
Customer Reviews
     
15% off ALL House Plans Sitewide
15% off ALL House Plans Sitewide
15% off ALL House Plans Sitewide

Code: SAVE15
Sale ends midnight 4/19/2026 PST

Sq Ft
2,144 FT²

Beds
3

Baths
3

Stories
1

Garage
2

Depth
97'

Width
56' 6"
On Sale
$1,194.25
$1,405.00
© copyright by designer
 View All 4 Images | Photographs may reflect modified home
Sq Ft
2,144 FT²
Beds
3
Baths
3
Stories
1
Garage
2
Depth
97'
Width
56' 6"
 
Click to Zoom In on Floor Plan
© copyright by designer
 
 

About This Plan

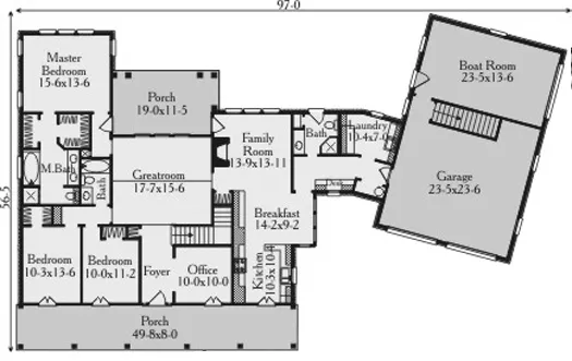
A fabulous front porch with timeless style. The functional floor plan includes an office space and a vaulted great room. The kitchen and breakfast area flow into the nearby gathering room complete with fireplace. A full bath is near the garage and offers outdoor access for convenience. A built in desk is also placed near the garage entrance to serve as a catch all when entering the home. An amazing 1667 square feet is available above the main floor and garage for expansion. 

See All Plan Options
 

FEATURES & DETAILS

Kitchen features
Nook / Breakfast Area
Peninsula / Eating Bar
Bedroom features
Double Vanity Sink
His and Hers Primary Closets
Primary Bdrm Main Floor
Separate Tub and Shower
Split Bedrooms
Walk-in Closet
Exterior features
Covered Front Porch
Covered Rear Porch
Front Porch
Rear Porch
Foundation Options
Basement
Crawlspace
Slab
Lot Options
Suited for view lot
Additional features
Bonus Room
Family Room
Fireplace
Foyer
Great Room
Home Office
Laundry 1st Fl
Loft / Balcony
Mud Room
Open Floor Plan
Unfinished Space
Vaulted Ceilings
Garage Location
Front
Garage Options
Attached
Front-entry
2,144 Ft
2
Total Heated
2,144 Ft
2
1st Floor
3
Bedrooms
3
Bathrooms
2
Garage
1
Stories
56' 6"
Width
97' 0"
Depth
28' 0"
Height
9' 0"
Main Floor Ceiling
2x4
Framing
Stick
Roof Framing
10/12
Primary Roof Pitch
Single
Dwelling Number
2nd Floor
Bonus Access

Unheated Living Space
965 Ft
2
Garage
607 Ft
2
Porch
1,667 Ft
2
Bonus Room
 

Plan Package Options

 Select Plan Package
  Select Foundation Option
  Add-Ons (Optional)
INCLUDED WITH YOUR PURCHASE

Free Ground shipping in the U.S.

FREE

Home Building & Product Ideas Organizer

Sub Total
$0
Free Shipping
QUESTIONS OR NEED HELP ORDERING? LIVE CHAT OR CALL US AT 866-214-2242
Plan Packages

Each set of construction documents typically includes detailed, dimensioned floor plans, basic electric layouts, cross sections, roof details, cabinet layouts, and elevations, as well as general IRC specifications. Please refer to the ARCHITECT or DESIGNER’S PLAN DETAILS link above the floor plan on any plan page to determine the specific details for each plan. Our house plans contain virtually all of the information required to construct your home. The typical plan set does not include plumbing, HVAC drawings, or engineering stamps due to the wide variety of specific needs, local codes, and climatic conditions. These details and specifications are easily obtained from your builder, contractors, and/or local engineers.

BEST PRICE GUARANTEE

Find the same house plan (modifications included!) and package for less on another site, show us the URL and we'll give you the difference plus an additional 10% back.

100% SATISFACTION GUARANTEE

We offer a one-time, 30-day exchange policy for unused, printed plan packages in the event you aren't satisfied with your first selection.

 
 

Plan 3678  Back to plan page

Loading...