Get discounts,
promos, see our
newest plans
and more!
+ 15% off any plan
See terms opt out anytime


No Thanks

Thanks for
signing up!


Use Code:

SIGNUP15

And save 15% off any plan!

Check your email for details.

CLOSE
Search Plans
Customer Reviews
     
15% off ALL House Plans Sitewide
15% off ALL House Plans Sitewide
15% off ALL House Plans Sitewide

Code: HONOR
Sale ends midnight 5/31/2026 PST

Tanglewood Beautiful Farm House Style House, Plan 1977

 
 

Sq Ft
3,095 FT²

Beds
4

Baths
3.5

Stories
1

Garage
3

Depth
75' 2"

Width
111' 5"
On Sale
$1,228.25
$1,445.00
© copyright by designer
 View All 6 Images | Photographs may reflect modified home | New Home Tour
Sq Ft
3,095 FT²
Beds
4
Baths
3.5
Stories
1
Garage
3
Depth
75' 2"
Width
111' 5"
 

 
Click to Zoom In on Floor Plan
© copyright by designer
 
 

About This Plan

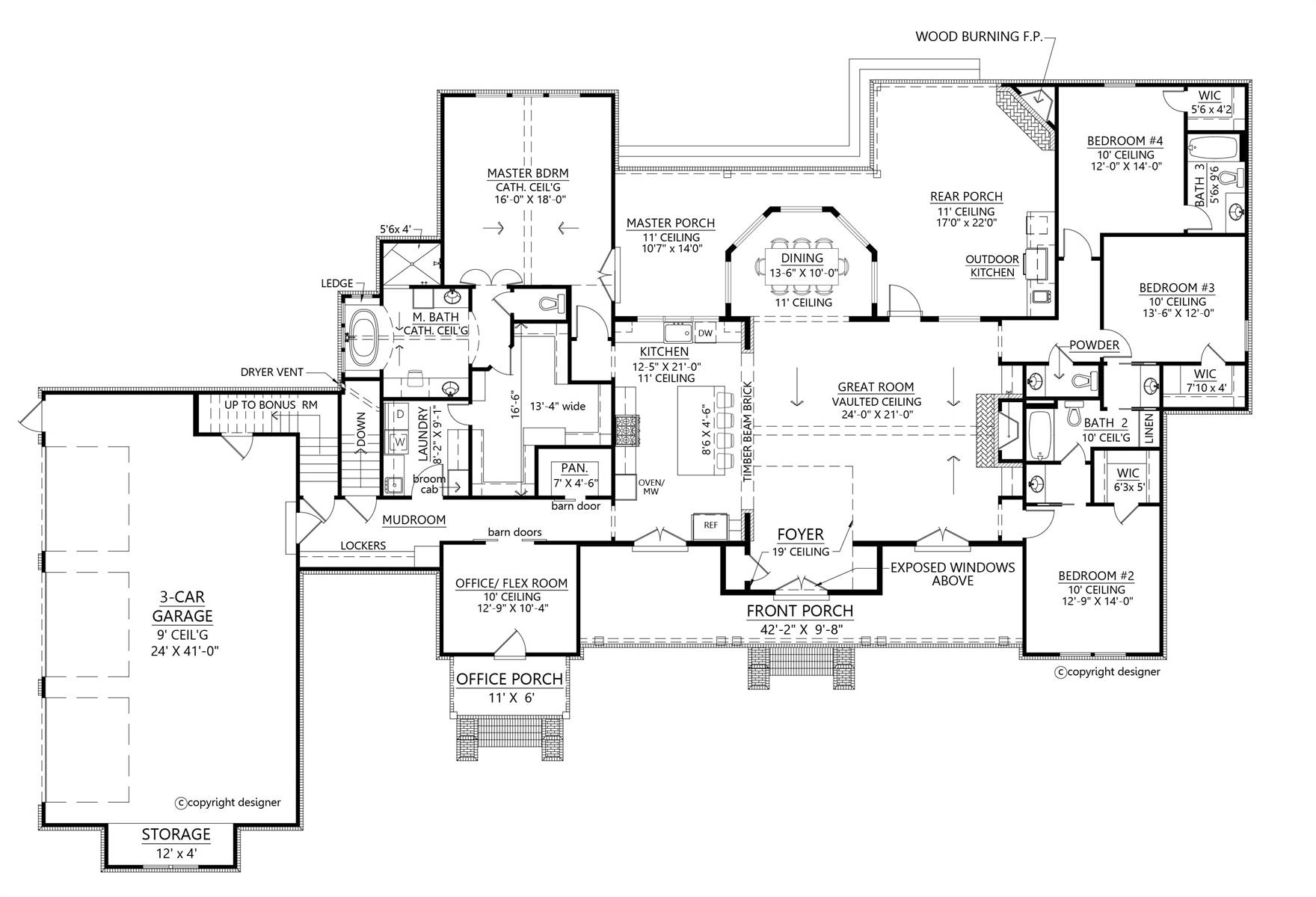
An extreme attention to detail means that every bit of this beautiful farmhouse plan is guaranteed to amaze. A beautifully open 3,095 square foot layout is flooded with natural light, giving it a great flow throughout. You can enter this home either via the mudroom off of the 3-car garage, or up the front steps on onto the covered porch. Either way, once inside you'll notice just how spacious this plan really is, including its 4 bedrooms and 3.2 baths. The vaulted foyer and its 19' cathedral ceiling open onto the equally impressive family room and island kitchen. Also notice the private home office nearby. One of our favorite areas is the amazing dining room, flanked by large windows, natural light pours in off of the astonishing back porch, making this a truly inviting space. The master suite of this home has one of the largest walk-in closets that you've ever seen, perfect for even this biggest shop-a-holic! And for future expansions, this home provides an optional bonus room, complete with an extra bath and great for all sorts of uses.  

See All Plan Options
 

FEATURES & DETAILS

Kitchen features
Kitchen Island
L-Shaped
Walk-in Pantry
Bedroom features
Double Vanity Sink
Guest Suite
Primary Bdrm Main Floor
Separate Tub and Shower
Split Bedrooms
Walk-in Closet
Exterior features
Covered Front Porch
Covered Rear Porch
Outdoor Kitchen
Outdoor Living Space
Foundation Options
Basement
Crawlspace
Slab
Additional features
Bonus Room
Dining Room
Fireplace
Foyer
Great Room
Home Office
Laundry 1st Fl
Library/Media Rm
Mud Room
Open Floor Plan
Storage Space
Unfinished Space
Vaulted Foyer
Vaulted Great Room/Living
Garage Location
Side
Garage Options
Attached
Side-entry
5,709 Ft
2
Total Structure
3,095 Ft
2
Total Heated
3,095 Ft
2
1st Floor
2,953 Ft
2
Lower Floor
4
Bedrooms
3.5
Bathrooms
3
Garage
1
Stories
111' 5"
Width
75' 2"
Depth
28' 10"
Height
10' 0"
Main Floor Ceiling
9' 0"
Upper Floor Ceiling
2x4
Framing
Stick
Roof Framing
10/12
Primary Roof Pitch
Single
Dwelling Number

Unheated Living Space
1,118 Ft
2
Garage
338 Ft
2
Porch
69 Ft
2
Deck
599 Ft
2
Patio
490 Ft
2
Bonus Room
 

Plan Package Options

 Select Plan Package
 Need To Reverse Plan? (Optional)
  Select Foundation Option
  Add-Ons (Optional)
INCLUDED WITH YOUR PURCHASE

Free Ground shipping in the U.S.

FREE

Home Building & Product Ideas Organizer

Sub Total
$0
Free Shipping
QUESTIONS OR NEED HELP ORDERING? LIVE CHAT OR CALL US AT 866-214-2242
Plan Packages

Each set of construction documents typically includes detailed, dimensioned floor plans, basic electric layouts, cross sections, roof details, cabinet layouts, and elevations, as well as general IRC specifications. Please refer to the ARCHITECT or DESIGNER’S PLAN DETAILS link above the floor plan on any plan page to determine the specific details for each plan. Our house plans contain virtually all of the information required to construct your home. The typical plan set does not include plumbing, HVAC drawings, or engineering stamps due to the wide variety of specific needs, local codes, and climatic conditions. These details and specifications are easily obtained from your builder, contractors, and/or local engineers.

BEST PRICE GUARANTEE

Find the same house plan (modifications included!) and package for less on another site, show us the URL and we'll give you the difference plus an additional 10% back.

100% SATISFACTION GUARANTEE

We offer a one-time, 30-day exchange policy for unused, printed plan packages in the event you aren't satisfied with your first selection.

Customer Reviews of House Plan 1977
4/27/2024
Kathleen of Portsmouth, NH
Customer Review:
We are half-way with our home build and so far the plans have worked out great! We live in the Northeast and the plans were for a house built in the South so some changes had to be made by our architect regarding snow-load, etc.. but it was not a big deal and all is going according to plan. I would definitely recommend The House Designers-great customer service as well!

SEE All Reviews
 
 

Plan 1977  Back to plan page

Loading...