Get discounts,
promos, see our
newest plans
and more!
+ 15% off any plan
See terms opt out anytime


No Thanks

Thanks for
signing up!


Use Code:

SIGNUP15

And save 15% off any plan!

Check your email for details.

CLOSE
Search Plans
Customer Reviews
     
15% Off House Plans Sitewide Ends Sunday

Code: SAVE15
Sale ends midnight 1/11/2026 PST

Sq Ft
2,019 FT²

Beds
4

Baths
3

Stories
1.5

Garage
2

Depth
31' 10"

Width
68' 8"
From
$1,040.00
EXCLUSIVE PLAN
© copyright by architect
 View All 6 Images | Photographs may reflect modified home
Sq Ft
2,019 FT²
Beds
4
Baths
3
Stories
1.5
Garage
2
Depth
31' 10"
Width
68' 8"
 
Click to Zoom In on Floor Plan
© copyright by architect
 
 

About This Plan

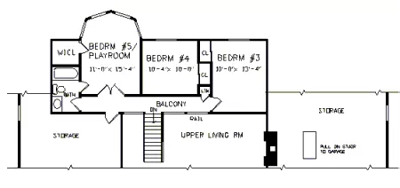
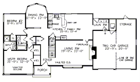
A covered porch opens into a vaulted foyer; adjacent is a vaulted living room with a fireplace. I created an unusual barn-shaped dining room filled with windows at the end of the foyer. The country kitchen/family room has sliding glass doors leading to a rear patio and is served by a large snack bar from the kitchen work area. The main-floor master suite boasts a vaulted ceiling, dual walk-in closets and a private bath. The upper floor includes three bedrooms- or two bedrooms and a playroom- plus a full bath. 

See All Plan Options
 

FEATURES & DETAILS

Bedroom features
His and Hers Primary Closets
Primary Bdrm Main Floor
Exterior features
Front Porch
Foundation Options
Basement
Crawlspace
Slab
Additional features
Dining Room
Fireplace
Storage Space
Garage Location
Front
Garage Options
Attached
Front-entry
2,019 Ft
2
Total Heated
1,407 Ft
2
1st Floor
612 Ft
2
2nd Floor
4
Bedrooms
3
Bathrooms
2
Garage
1.5
Stories
68' 8"
Width
31' 10"
Depth
24' 4"
Height
8'-1"' 0"
Main Floor Ceiling
8'-1"' 0"
Upper Floor Ceiling
2x4
Framing
Stick
Roof Framing
8/12
Primary Roof Pitch
7/ 12
Secondary Roof Pitch
Single
Dwelling Number

Unheated Living Space
267 Ft
2
Garage
 

Plan Package Options

 Select Plan Package
$1,150
5 Printed Sets

Five Printed Sets of Residential Construction Drawings are typically 24” x 36” documents and come with a license to construct a single residence shipped to a physical address. Keep in mind PDF Plan Packages are our most popular choice which allows you to print as many copies as you need and to electronically send files to your builder, subcontractors, etc.

$1,150
$1,225
8 Printed Sets

Eight Printed Sets of Construction Drawings, typically 24” x 36” documents, with a license to construct a single residence shipped to your physical address. PDF Plan Packages are our most popular choice which allows you to print as many copies as you need and to electronically send files to your builder, subcontractors, bank/mortgage reps, material stores, decorators and more.

$1,225
$805
PDF Bid Set
PDFs NOW!™

Home plans stamped "NOT FOR CONSTRUCTION" for cost estimating and bidding purposes only; a minimum 5 set plan package must be purchased within 90 days for a license to build plan set; a credit will be applied towards your house plan upgrade

$805
$1,040
PDF Single Build
PDFs NOW!™

Digital plans emailed to you in PDF format that allows for printing copies and sharing electronically with contractors, subs, decorators, and more. This package includes a license to build the home one time.

$1,040
  Select Foundation Option
  Add-Ons (Optional)
INCLUDED WITH YOUR PURCHASE

Free Ground shipping in the Continental U.S.

FREE

Home Building & Product Ideas Organizer

Sub Total
$0
Free Shipping
QUESTIONS OR NEED HELP ORDERING? LIVE CHAT OR CALL US AT 866-214-2242
Plan Packages

Each set of construction documents includes detailed, dimensioned floor plans, basic electric layouts, cross sections, roof details, cabinet layouts and elevations, as well as general IRC specifications. They contain virtually all of the information required to construct your home. The typical plan set does not include any plumbing, HVAC drawings, or engineering stamps due to the wide variety of specific needs, local codes, and climatic conditions. These details and specifications are easily obtained from your builder, contractors, and/or local engineers.

BEST PRICE GUARANTEE

Find the same house plan (modifications included!) and package for less on another site, show us the URL and we'll give you the difference plus an additional 5% back.

100% SATISFACTION GUARANTEE

We offer a one-time, 30-day exchange policy for unused, printed plan packages in the event you aren't satisfied with your first selection. Exchanges are subject to a 20% restocking fee.

 
 

Plan 3723  Back to plan page

Loading...