Get discounts,
promos, see our
newest plans
and more!
+ 15% off any plan
See terms opt out anytime


No Thanks

Thanks for
signing up!


Use Code:

SIGNUP15

And save 15% off any plan!

Check your email for details.

CLOSE
Search Plans
     

Shawnigan Charming Cottage Style House, Plan 3265

 
 

Sq Ft
1,297 FT²

Beds
2

Baths
1.5

Stories
2

Garage
0

Depth
24'

Width
31' 8"
From
$1,440.00
© copyright by designer
 View All 5 Images | Photographs may reflect modified home
Sq Ft
1,297 FT²
Beds
2
Baths
1.5
Stories
2
Garage
0
Depth
24'
Width
31' 8"
 
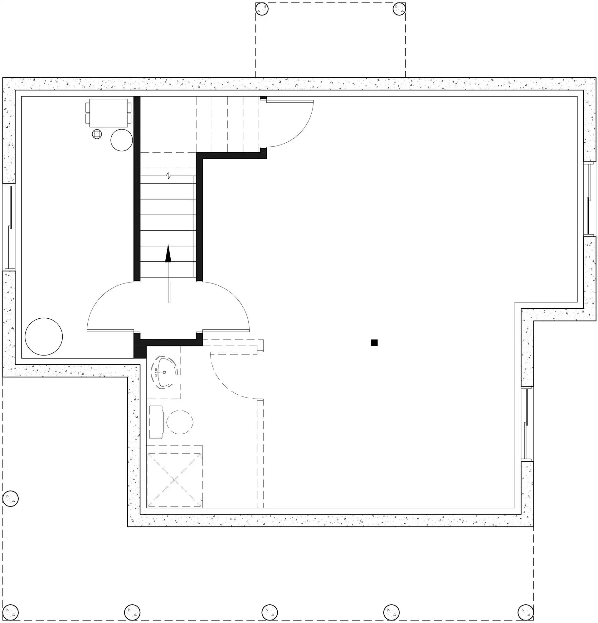
Click to Zoom In on Floor Plan
© copyright by designer
 
 

About This Plan

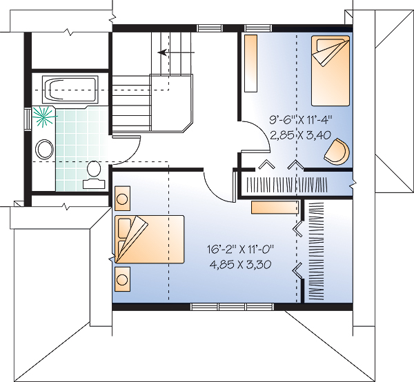
French doors leading onto a covered porch captivate the eye on this charming cottage. Ideal as a getaway or great for all four seasons, this one pleases. The living area is divided by a peninsula eating bar to define the kitchen area. An adjoining dining area can be expanded for large gatherings or minimized as the need arises. A wide-open living area benefits from the porch access allowing for indoor/outdoor living. The enclosed foyer allows for discreet access to the powder room with laundry. Upstairs, sloped ceilings add interest to every room. A full bath serves the two bedrooms. 

See All Plan Options
 

FEATURES & DETAILS

Kitchen features
Country Kitchen
Peninsula / Eating Bar
Bedroom features
Primary Bdrm Upstairs
Exterior features
Covered Front Porch
Front Porch
Wraparound Porch
Foundation Options
Basement
Crawlspace
Slab
Lot Options
Suited for narrow lot
Suited for view lot
Additional features
Family Room
Foyer
Laundry 1st Fl
Open Floor Plan
Garage Location
None
Garage Options
None
1,297 Ft
2
Total Heated
670 Ft
2
1st Floor
627 Ft
2
2nd Floor
2
Bedrooms
1.5
Bathrooms
0
Garage
2
Stories
31' 8"
Width
24' 0"
Depth
27' 2"
Height
8' 0"
Main Floor Ceiling
8' 0"
Upper Floor Ceiling
2x6
Framing
Truss
Roof Framing
14/12
Primary Roof Pitch
4/12
Porch Roof Pitch
Single
Dwelling Number
None
Bonus Access

Unheated Living Space
 

Plan Package Options

 Select Plan Package
$1,440
PDF Single Build

Digital plans emailed to you in PDF format that allows for printing copies and sharing electronically with contractors, subs, decorators, and more. This package includes a license to build the home one time.

$1,440
$1,580
3 sets + PDF
Please allow 3-5 days for delivery
$1,580
$2,440
CAD + PDF Single Build

CAD files are a complete set of construction drawings delivered electronically. They can be used for any type of modification—including major design changes and engineering—and include a release granting permission to modify the plan. Most CAD plan orders are emailed the same or next business day.
 
This package also comes with a PDF set of plans and a copyright release for making modifications and printing unlimited copies.
 
CAD files are provided in .dwg format. For details on the specific CAD program used, please refer to the PLAN DETAILS section located above the floor plan on each plan’s page.

$2,440
 Need To Reverse Plan? (Optional)
$250
Readable Reverse

Reverse house plans with readable text and dimensions 

$250
  Select Foundation Option
  Add-Ons (Optional)
INCLUDED WITH YOUR PURCHASE

Free Ground shipping in the Continental U.S.

FREE

Design consultation with the architect or designer to discuss your plan

Home Building & Product Ideas Organizer

Sub Total
$0
Free Shipping
Please allow 3-5 business days for delivery of this plan Please check our PDFs NOW collection for plans that can be downloaded and received immediately or live chat us to help you find a similar plan available now.
QUESTIONS OR NEED HELP ORDERING? LIVE CHAT OR CALL US AT 866-214-2242
Plan Packages

Each set of construction documents includes detailed, dimensioned floor plans, basic electric layouts, cross sections, roof details, cabinet layouts and elevations, as well as general IRC specifications. They contain virtually all of the information required to construct your home. The typical plan set does not include any plumbing, HVAC drawings, or engineering stamps due to the wide variety of specific needs, local codes, and climatic conditions. These details and specifications are easily obtained from your builder, contractors, and/or local engineers.

BEST PRICE GUARANTEE

find the same house plan (modifications included!) and package for less on another site, show us the URL and we'll give you the difference plus an additional 5% back.

100% SATISFACTION GUARANTEE

We offer a one-time, 30-day exchange policy for unused, non-electronic plan packages in the event you aren't satisfied with your first selection.

 
 

Plan 3265  Back to plan page

Loading...