Get discounts,
promos, see our
newest plans
and more!
+ 15% off any plan
See terms opt out anytime


No Thanks

Thanks for
signing up!


Use Code:

SIGNUP15

And save 15% off any plan!

Check your email for details.

CLOSE
Search Plans
Customer Reviews
     
15% off ALL House Plans Sitewide
15% off ALL House Plans Sitewide
15% off ALL House Plans Sitewide

Code: HONOR
Sale ends midnight 5/31/2026 PST

Sq Ft
1,650 FT²

Beds
3

Baths
2.5

Stories
2

Garage
2

Depth
46'

Width
42'
On Sale
$1,100.75
$1,295.00
© copyright by designer
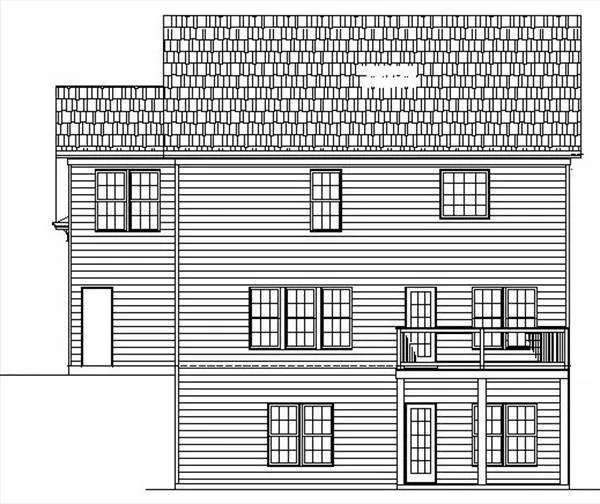
 View All 4 Images | Photographs may reflect modified home
Sq Ft
1,650 FT²
Beds
3
Baths
2.5
Stories
2
Garage
2
Depth
46'
Width
42'
 
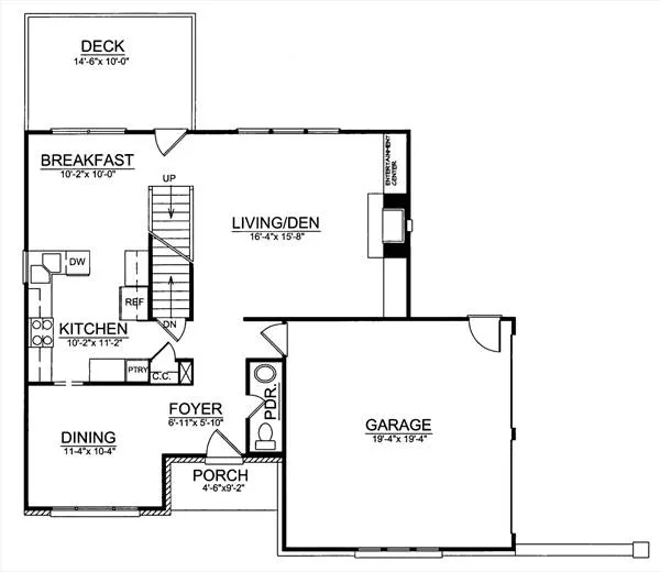
Click to Zoom In on Floor Plan
© copyright by designer
 
 

About This Plan

A covered entry offers appeal, and its interior boasts elegance and convenience due to the formal and private dining room. The rear of this home offers easy family living with a functional staircase and warming fireplace.
 

See All Plan Options
 

FEATURES & DETAILS

Exterior features
Deck
Front Porch
Foundation Options
Basement
Daylight Basement
Lot Options
Suited for narrow lot
Additional features
Bonus Room
Garage Location
Side
Garage Options
Attached
1,650 Ft
2
Total Heated
795 Ft
2
1st Floor
855 Ft
2
2nd Floor
3
Bedrooms
2.5
Bathrooms
2
Garage
2
Stories
42' 0"
Width
46' 0"
Depth
29' 6"
Height
9' 0"
Main Floor Ceiling
8' 0"
Upper Floor Ceiling
2x4
Framing
Stick
Roof Framing
12/9
Primary Roof Pitch
Single
Dwelling Number

Unheated Living Space
374 Ft
2
Garage
374 Ft
2
Bonus Room
 

Plan Package Options

 Select Plan Package
 Need To Reverse Plan? (Optional)
  Select Foundation Option
  Add-Ons (Optional)
INCLUDED WITH YOUR PURCHASE

Free Ground shipping in the U.S.

FREE

Home Building & Product Ideas Organizer

Sub Total
$0
Free Shipping
QUESTIONS OR NEED HELP ORDERING? LIVE CHAT OR CALL US AT 866-214-2242
Plan Packages

Each set of construction documents typically includes detailed, dimensioned floor plans, basic electric layouts, cross sections, roof details, cabinet layouts, and elevations, as well as general IRC specifications. Please refer to the ARCHITECT or DESIGNER’S PLAN DETAILS link above the floor plan on any plan page to determine the specific details for each plan. Our house plans contain virtually all of the information required to construct your home. The typical plan set does not include plumbing, HVAC drawings, or engineering stamps due to the wide variety of specific needs, local codes, and climatic conditions. These details and specifications are easily obtained from your builder, contractors, and/or local engineers.

BEST PRICE GUARANTEE

Find the same house plan (modifications included!) and package for less on another site, show us the URL and we'll give you the difference plus an additional 10% back.

100% SATISFACTION GUARANTEE

We offer a one-time, 30-day exchange policy for unused, printed plan packages in the event you aren't satisfied with your first selection.

 
 

Plan 8027  Back to plan page

Loading...