Get discounts,
promos, see our
newest plans
and more!
+ 15% off any plan
See terms opt out anytime


No Thanks

Thanks for
signing up!


Use Code:

SIGNUP15

And save 15% off any plan!

Check your email for details.

CLOSE
Search Plans
Customer Reviews
     
15% Off House Plans Sitewide Ends Sunday

Code: SAVE15
Sale ends midnight 1/11/2026 PST

Sq Ft
3,022 FT²

Beds
4

Baths
3.5

Stories
2

Garage
2

Depth
37'

Width
65'
From
$1,205.00
EXCLUSIVE PLAN
© copyright by designer
 View All 5 Images | Photographs may reflect modified home
Sq Ft
3,022 FT²
Beds
4
Baths
3.5
Stories
2
Garage
2
Depth
37'
Width
65'
 
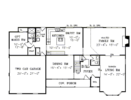
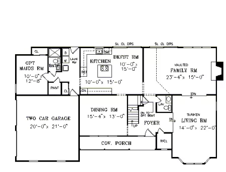
Click to Zoom In on Floor Plan
© copyright by designer
 
 

About This Plan

Spacious, open and bright rooms that let the outdoors in give this two-story plenty of appeal.
A serene front porch welcomes guests inside to a stunning, two-story foyer with a balcony bridge above and a view into the vaulted family room straight ahead. To the right of the foyer is a sunken living room with a bay window
and a view to the family room, which features a fireplace and a cathedral ceiling. Upstairs there are four bedrooms, including a lavish master suite with a cathedral ceiling, a huge walk-in closet and a private bath with corner spa tub. 

See All Plan Options
 

FEATURES & DETAILS

Exterior features
Front Porch
Foundation Options
Basement
Garage Location
Side
Garage Options
Attached
3,022 Ft
2
Total Heated
1,720 Ft
2
1st Floor
1,302 Ft
2
2nd Floor
4
Bedrooms
3.5
Bathrooms
2
Garage
2
Stories
65' 0"
Width
37' 0"
Depth
29' 4"
Height
8'-1"' 0"
Main Floor Ceiling
8'-1"' 0"
Upper Floor Ceiling
2x4
Framing
Stick
Roof Framing
Single
Dwelling Number

Unheated Living Space
 

Plan Package Options

 Select Plan Package
$1,315
5 Printed Sets

Five Printed Sets of Residential Construction Drawings are typically 24” x 36” documents and come with a license to construct a single residence shipped to a physical address. Keep in mind PDF Plan Packages are our most popular choice which allows you to print as many copies as you need and to electronically send files to your builder, subcontractors, etc.

$1,315
$1,390
8 Printed Sets

Eight Printed Sets of Construction Drawings, typically 24” x 36” documents, with a license to construct a single residence shipped to your physical address. PDF Plan Packages are our most popular choice which allows you to print as many copies as you need and to electronically send files to your builder, subcontractors, bank/mortgage reps, material stores, decorators and more.

$1,390
$955
PDF Bid Set
PDFs NOW!™

Home plans stamped "NOT FOR CONSTRUCTION" for cost estimating and bidding purposes only; a minimum 5 set plan package must be purchased within 90 days for a license to build plan set; a credit will be applied towards your house plan upgrade

$955
$1,205
PDF Single Build
PDFs NOW!™

Digital plans emailed to you in PDF format that allows for printing copies and sharing electronically with contractors, subs, decorators, and more. This package includes a license to build the home one time.

$1,205
  Select Foundation Option
  Add-Ons (Optional)
INCLUDED WITH YOUR PURCHASE

Free Ground shipping in the Continental U.S.

FREE

Home Building & Product Ideas Organizer

Sub Total
$0
Free Shipping
QUESTIONS OR NEED HELP ORDERING? LIVE CHAT OR CALL US AT 866-214-2242
Plan Packages

Each set of construction documents includes detailed, dimensioned floor plans, basic electric layouts, cross sections, roof details, cabinet layouts and elevations, as well as general IRC specifications. They contain virtually all of the information required to construct your home. The typical plan set does not include any plumbing, HVAC drawings, or engineering stamps due to the wide variety of specific needs, local codes, and climatic conditions. These details and specifications are easily obtained from your builder, contractors, and/or local engineers.

BEST PRICE GUARANTEE

Find the same house plan (modifications included!) and package for less on another site, show us the URL and we'll give you the difference plus an additional 5% back.

100% SATISFACTION GUARANTEE

We offer a one-time, 30-day exchange policy for unused, printed plan packages in the event you aren't satisfied with your first selection. Exchanges are subject to a 20% restocking fee.

 
 

Plan 3789  Back to plan page

Loading...