Get discounts,
promos, see our
newest plans
and more!
+ 15% off any plan
See terms opt out anytime


No Thanks

Thanks for
signing up!


Use Code:

SIGNUP15

And save 15% off any plan!

Check your email for details.

CLOSE
Search Plans
Customer Reviews
     
15% off ALL House Plans Sitewide
15% off ALL House Plans Sitewide
15% off ALL House Plans Sitewide

Code: HONOR
Sale ends midnight 5/31/2026 PST

Riverland Affordable Transitional Style House, Plan 6522

 
 

Sq Ft
2,400 FT²

Beds
3

Baths
2

Stories
1

Garage
0

Depth
44'

Width
42'
On Sale
$1,576.75
$1,855.00
© copyright by designer
 View All 14 Images | Photographs may reflect modified home
Sq Ft
2,400 FT²
Beds
3
Baths
2
Stories
1
Garage
0
Depth
44'
Width
42'
 
Click to Zoom In on Floor Plan
© copyright by designer
 
 

About This Plan

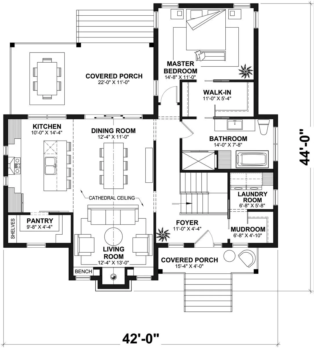
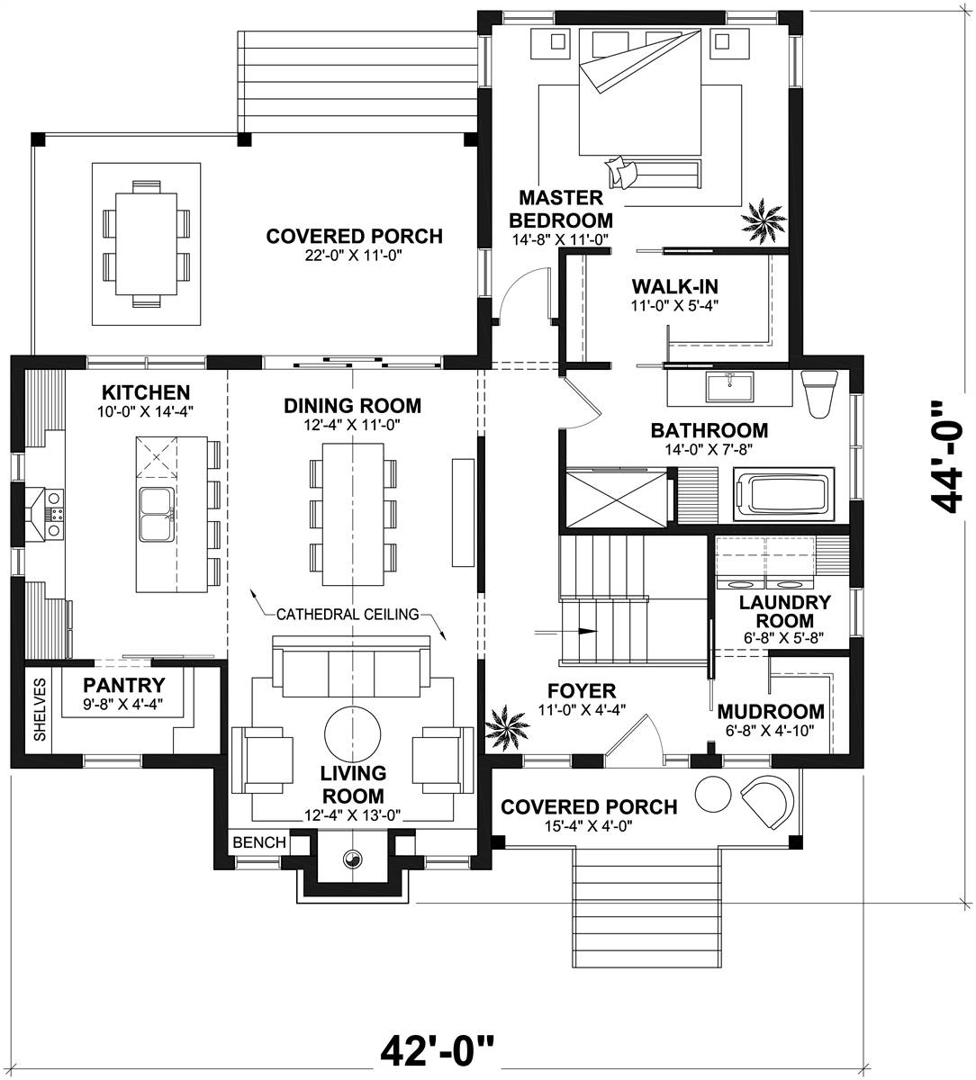
If you have been looking for a home that has a fully designed lower level and a master on the main, this might be the plan you’ve been looking for!

This sleek 1 story plan (with additional lower level of 1,200 sq.ft) packs a bunch with its modest 2,400 sq.ft. Entering the charmer you’ll immediately have access to the mudroom for coats and boots with the laundry room conveniently adjacent with a pocket door. If you continue through the gallery hallway, you’ll find the Master suite claims the back right of the main level with its bathroom being accessible from the hallway as well as the master walk-in closet (via a pocket door).

The open concept plan has a cathedral ceiling with exposed open gables enunciating the “farm” in the house. The living room is anchored by a fireplace and the cook of the home will love the large pantry accessed by a sliding barn door. The covered porch has sliding glass doors and brings additional social spaces in mild weather months.

On the lower basement level, you’ll find two more bedrooms that share the full hallway bathroom, and there is a large space for family movie nights, gaming, pool table competitions and there is additional storage in a large closet with built-ins. 

See All Plan Options
 

FEATURES & DETAILS

Kitchen features
Kitchen Island
Walk-in Pantry
Bedroom features
Primary Bdrm Main Floor
Separate Tub and Shower
Walk-in Closet
Exterior features
Covered Front Porch
Covered Rear Porch
Outdoor Living Space
Additional features
Dining Room
Fireplace
Foyer
Great Room
Laundry 1st Fl
Mud Room
Open Floor Plan
Vaulted Ceilings
Vaulted Great Room/Living
Garage Location
None
Garage Options
None
2,400 Ft
2
Total Heated
1,200 Ft
2
1st Floor
1,200 Ft
2
Lower Floor
3
Bedrooms
2
Bathrooms
0
Garage
1
Stories
42' 0"
Width
44' 0"
Depth
23' 9"
Height
8' 0"
Main Floor Ceiling
9' 0"
Lower Floor Ceiling
2x6
Framing
Truss
Roof Framing
10/12
Primary Roof Pitch
Single
Dwelling Number
None
Bonus Access

Unheated Living Space
 

Plan Package Options

 Select Plan Package
 Need To Reverse Plan? (Optional)
  Select Foundation Option
  Add-Ons (Optional)
INCLUDED WITH YOUR PURCHASE

Free Ground shipping in the U.S.

FREE

Home Building & Product Ideas Organizer

Sub Total
$0
Free Shipping
Please allow 3-5 business days for delivery of this plan Please check our PDFs NOW collection for plans that can be downloaded and received immediately or live chat us to help you find a similar plan available now.
QUESTIONS OR NEED HELP ORDERING? LIVE CHAT OR CALL US AT 866-214-2242
Plan Packages

Each set of construction documents typically includes detailed, dimensioned floor plans, basic electric layouts, cross sections, roof details, cabinet layouts, and elevations, as well as general IRC specifications. Please refer to the ARCHITECT or DESIGNER’S PLAN DETAILS link above the floor plan on any plan page to determine the specific details for each plan. Our house plans contain virtually all of the information required to construct your home. The typical plan set does not include plumbing, HVAC drawings, or engineering stamps due to the wide variety of specific needs, local codes, and climatic conditions. These details and specifications are easily obtained from your builder, contractors, and/or local engineers.

BEST PRICE GUARANTEE

Find the same house plan (modifications included!) and package for less on another site, show us the URL and we'll give you the difference plus an additional 10% back.

100% SATISFACTION GUARANTEE

We offer a one-time, 30-day exchange policy for unused, printed plan packages in the event you aren't satisfied with your first selection.

 
 

Plan 6522  Back to plan page

Loading...