Get discounts,
promos, see our
newest plans
and more!
+ 15% off any plan
See terms opt out anytime


No Thanks

Thanks for
signing up!


Use Code:

SIGNUP15

And save 15% off any plan!

Check your email for details.

CLOSE
Search Plans
Customer Reviews
     
15% off ALL House Plans Sitewide
15% off ALL House Plans Sitewide
15% off ALL House Plans Sitewide

Code: HONOR
Sale ends midnight 5/31/2026 PST

River Oaks Affordable Cottage Style House, Plan 1384

 
 

Sq Ft
960 FT²

Beds
1

Baths
1.5

Stories
1

Garage
0

Depth
45'

Width
36'
On Sale
$654.50
$770.00
© copyright by designer
 View All 11 Images | Photographs may reflect modified home
Sq Ft
960 FT²
Beds
1
Baths
1.5
Stories
1
Garage
0
Depth
45'
Width
36'
 
Click to Zoom In on Floor Plan
© copyright by designer
 
 

About This Plan

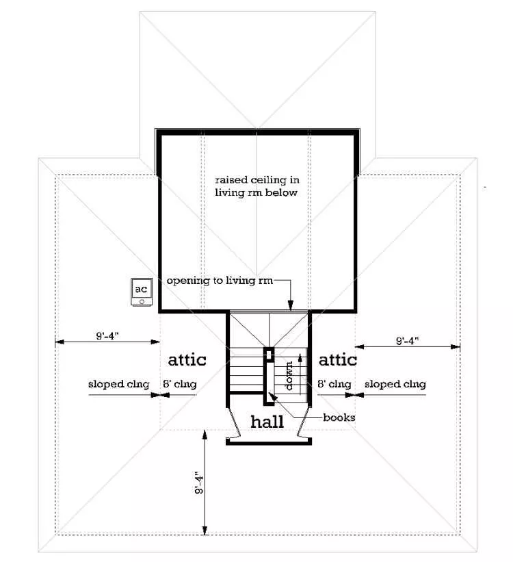
Straightforward designs matched with simply beautiful features create this perfect home. Great as a starter plan or even as a guest house added to your lot, the 960 square foot layout has all the necessities. With 1 bed and 1.5 bathrooms, this could even be a private rental unit to help earn some extra income. Whatever you need it for, you'll certainly love the inclusivity that is found throughout. From the welcoming covered front and back porches to the totally open living room, dining room and island kitchen areas, there is so much to do and enjoy. There is even a second level with a walk-up attic for easy and accessible storage options! 

See All Plan Options
 

FEATURES & DETAILS

Kitchen features
Country Kitchen
Kitchen Island
Nook / Breakfast Area
Bedroom features
Primary Bdrm Main Floor
Walk-in Closet
Exterior features
Covered Front Porch
Covered Rear Porch
Lot Options
Suited for corner lot
Suited for narrow lot
Suited for view lot
Additional features
Dining Room
Foyer
Laundry 1st Fl
Open Floor Plan
Vaulted Ceilings
Vaulted Great Room/Living
Garage Location
None
Garage Options
None
960 Ft
2
Total Heated
936 Ft
2
1st Floor
24 Ft
2
2nd Floor
1
Bedrooms
1.5
Bathrooms
0
Garage
1
Stories
36'
Width
45'
Depth
24'
Height
9' 0"
Main Floor Ceiling
8' 0"
Upper Floor Ceiling
9' 0"
Foyer Ceiling
9' 0"
Primary Ceiling
2x4
Framing
Stick
Roof Framing
10:12
Primary Roof Pitch
Single
Dwelling Number

Unheated Living Space
450 Ft
2
Porch
 

Plan Package Options

 Select Plan Package
 Need To Reverse Plan? (Optional)
  Select Foundation Option
  Add-Ons (Optional)
INCLUDED WITH YOUR PURCHASE

Free Ground shipping in the U.S.

FREE

Home Building & Product Ideas Organizer

Sub Total
$0
Free Shipping
QUESTIONS OR NEED HELP ORDERING? LIVE CHAT OR CALL US AT 866-214-2242
Plan Packages

Each set of construction documents typically includes detailed, dimensioned floor plans, basic electric layouts, cross sections, roof details, cabinet layouts, and elevations, as well as general IRC specifications. Please refer to the ARCHITECT or DESIGNER’S PLAN DETAILS link above the floor plan on any plan page to determine the specific details for each plan. Our house plans contain virtually all of the information required to construct your home. The typical plan set does not include plumbing, HVAC drawings, or engineering stamps due to the wide variety of specific needs, local codes, and climatic conditions. These details and specifications are easily obtained from your builder, contractors, and/or local engineers.

BEST PRICE GUARANTEE

Find the same house plan (modifications included!) and package for less on another site, show us the URL and we'll give you the difference plus an additional 10% back.

100% SATISFACTION GUARANTEE

We offer a one-time, 30-day exchange policy for unused, printed plan packages in the event you aren't satisfied with your first selection.

 
 

Plan 1384  Back to plan page

Loading...