Get discounts,
promos, see our
newest plans
and more!
+ 15% off any plan
See terms opt out anytime


No Thanks

Thanks for
signing up!


Use Code:

SIGNUP15

And save 15% off any plan!

Check your email for details.

CLOSE
Search Plans
Customer Reviews
     
22% Off House Plans Sitewide Ends Sunday

Code: SAVE22
Sale ends midnight 12/7/2025 PST

Sq Ft
3,096 FT²

Beds
4

Baths
4.5

Stories
2

Garage
3

Depth
78'

Width
70'
From
$1,250.00
© copyright by designer
 View All 5 Images | Photographs may reflect modified home
Sq Ft
3,096 FT²
Beds
4
Baths
4.5
Stories
2
Garage
3
Depth
78'
Width
70'
 
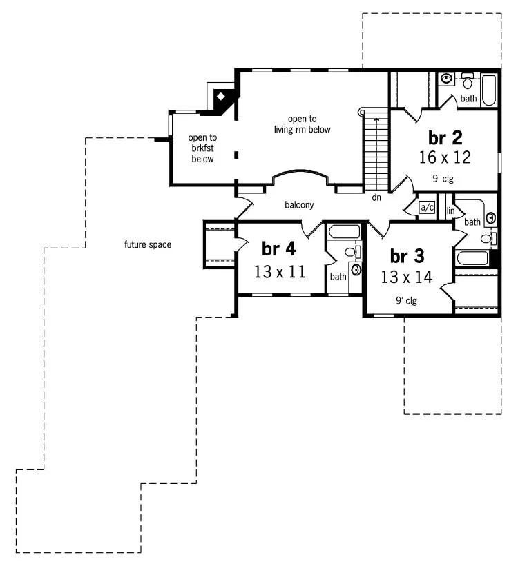
Click to Zoom In on Floor Plan
© copyright by designer
 
 

About This Plan

Regardless if you are watching a late night movie alone or the big game with a crowd, this home features the ultimate in media rooms. Receding walls direct your view to the screen and bounce the sound to the viewer. An adjoining wet bar and bath serves the media room, living area or the rear covered porch. The 2-story Living room with massive corner fireplace and open stairwell makes a great entertaining space once the big game is over. A built in kitchen desk and huge walk-in pantry are sure to please the lady of the house. The master suite is grand and opulent with an equally impressive adjoining bath. The kitchen is open and light with bountiful storage and a great view into the living area. A large butlers pantry is positioned to serve the dining and kitchen and it is also convenient for off loading from the garage. A third bay in the garage can be used for a smaller car, golf cart or workshop. 

See All Plan Options
 

FEATURES & DETAILS

Kitchen features
Kitchen Island
Peninsula / Eating Bar
Walk-in Pantry
Bedroom features
Double Vanity Sink
Primary Bdrm Main Floor
Separate Tub and Shower
Walk-in Closet
Exterior features
Covered Front Porch
Covered Rear Porch
Front Porch
Rear Porch
Foundation Options
Basement
Crawlspace
Slab
Lot Options
Suited for corner lot
Suited for view lot
Additional features
2 Story Volume
Dining Room
Fireplace
Great Room
Laundry 1st Fl
Library/Media Rm
Open Floor Plan
Storage Space
Vaulted Ceilings
Workshop
Garage Location
Front
Garage Options
Attached
Front-entry
Oversized
Side-entry
4,062 Ft
2
Total Structure
3,096 Ft
2
Total Heated
2,111 Ft
2
1st Floor
985 Ft
2
2nd Floor
4
Bedrooms
4.5
Bathrooms
3
Garage
2
Stories
70' 0"
Width
78' 0"
Depth
38' 0"
Height
9' 0"
Main Floor Ceiling
9' 0"
Upper Floor Ceiling
2x6
Framing
Stick
Roof Framing
15:12
Primary Roof Pitch
15:12
Dormer Roof Pitch
Single
Dwelling Number

Unheated Living Space
716 Ft
2
Garage
250 Ft
2
Porch
 

Plan Package Options

 Select Plan Package
$1,025
PDF Bid Set
PDFs NOW!™

Home plans stamped "NOT FOR CONSTRUCTION" for cost estimating and bidding purposes only; a minimum 5 set plan package must be purchased within 90 days for a license to build plan set; a credit will be applied towards your house plan upgrade

$1,025
$1,250
PDF Single Build
PDFs NOW!™

Digital plans emailed to you in PDF format that allows for printing copies and sharing electronically with contractors, subs, decorators, and more. This package includes a license to build the home one time.

$1,250
$1,305
4 Printed Sets

Four printed sets of construction drawings shipped and received in 3-5 business days

$1,305
$1,350
5 Printed Sets

Five Printed Sets of Residential Construction Drawings are typically 24” x 36” documents and come with a license to construct a single residence shipped to a physical address. Keep in mind PDF Plan Packages are our most popular choice which allows you to print as many copies as you need and to electronically send files to your builder, subcontractors, etc.

$1,350
$1,460
8 Printed Sets

Eight Printed Sets of Construction Drawings, typically 24” x 36” documents, with a license to construct a single residence shipped to your physical address. PDF Plan Packages are our most popular choice which allows you to print as many copies as you need and to electronically send files to your builder, subcontractors, bank/mortgage reps, material stores, decorators and more.

$1,460
$2,300
CAD + PDF Single Build

CAD files are a complete set of construction drawings delivered electronically. They can be used for any type of modification—including major design changes and engineering—and include a release granting permission to modify the plan. Most CAD plan orders are emailed the same or next business day.
 
This package also comes with a PDF set of plans and a copyright release for making modifications and printing unlimited copies.
 
CAD files are provided in .dwg format. For details on the specific CAD program used, please refer to the PLAN DETAILS section located above the floor plan on each plan’s page.

$2,300
  Select Foundation Option
  Add-Ons (Optional)
INCLUDED WITH YOUR PURCHASE

Free Ground shipping in the Continental U.S.

FREE

Design consultation with the architect or designer to discuss your plan

Home Building & Product Ideas Organizer

Sub Total
$0
Free Shipping
QUESTIONS OR NEED HELP ORDERING? LIVE CHAT OR CALL US AT 866-214-2242
Plan Packages

Each set of construction documents includes detailed, dimensioned floor plans, basic electric layouts, cross sections, roof details, cabinet layouts and elevations, as well as general IRC specifications. They contain virtually all of the information required to construct your home. The typical plan set does not include any plumbing, HVAC drawings, or engineering stamps due to the wide variety of specific needs, local codes, and climatic conditions. These details and specifications are easily obtained from your builder, contractors, and/or local engineers.

BEST PRICE GUARANTEE

find the same house plan (modifications included!) and package for less on another site, show us the URL and we'll give you the difference plus an additional 5% back.

100% SATISFACTION GUARANTEE

We offer a one-time, 30-day exchange policy for unused, non-electronic plan packages in the event you aren't satisfied with your first selection.

 
 

Plan 9231  Back to plan page

Loading...