Get discounts,
promos, see our
newest plans
and more!
+ 15% off any plan
See terms opt out anytime


No Thanks

Thanks for
signing up!


Use Code:

SIGNUP15

And save 15% off any plan!

Check your email for details.

CLOSE
Search Plans
     
20% Off House Plans Sitewide Ends Tuesday
20% Off House Plans Sitewide Ends Tuesday
20% Off House Plans Sitewide Ends Tuesday

Code: VET20
Sale ends midnight 11/11/2025 PST

Sq Ft
2,819 FT²

Beds
3

Baths
2.5

Stories
1

Garage
3

Depth
65'

Width
65'
On Sale
$680.80
$851.00
© copyright by designer
 View All 3 Images | Photographs may reflect modified home
Sq Ft
2,819 FT²
Beds
3
Baths
2.5
Stories
1
Garage
3
Depth
65'
Width
65'
 
Click to Zoom In on Floor Plan
© copyright by designer
 
 

About This Plan

 

See All Plan Options
 

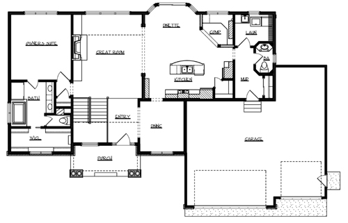
FEATURES & DETAILS

Exterior features
Front Porch
Foundation Options
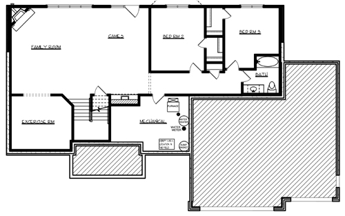
Basement
Daylight Basement
Lot Options
Suited for sloping lot
Suited for view lot
Garage Location
Front
Garage Options
Attached
Front-entry
2,819 Ft
2
Total Heated
1,670 Ft
2
1st Floor
1,149 Ft
2
Lower Floor
3
Bedrooms
2.5
Bathrooms
3
Garage
1
Stories
65' 0"
Width
65' 0"
Depth
28' 0"
Height
2x6
Framing
Truss
Roof Framing
Single
Dwelling Number

Unheated Living Space
750 Ft
2
Garage
 

Plan Package Options

 Select Plan Package
Sale: $435
PDF Bid Set
$544

PDFs NOW!™

Home plans stamped "NOT FOR CONSTRUCTION" for cost estimating and bidding purposes only; a minimum 5 set plan package must be purchased within 90 days for a license to build plan set; a credit will be applied towards your house plan upgrade

Sale: $435
Sale: $681
PDF Single Build
$851

PDFs NOW!™

Digital plans emailed to you in PDF format that allows for printing copies and sharing electronically with contractors, subs, decorators, and more. This package includes a license to build the home one time.

Sale: $681
  Select Foundation Option
  Add-Ons (Optional)
INCLUDED WITH YOUR PURCHASE

Free Ground shipping in the Continental U.S.

FREE

Design consultation with the architect or designer to discuss your plan

Home Building & Product Ideas Organizer

Sub Total
$0
Free Shipping
QUESTIONS OR NEED HELP ORDERING? LIVE CHAT OR CALL US AT 866-214-2242
Plan Packages

Each set of construction documents includes detailed, dimensioned floor plans, basic electric layouts, cross sections, roof details, cabinet layouts and elevations, as well as general IRC specifications. They contain virtually all of the information required to construct your home. The typical plan set does not include any plumbing, HVAC drawings, or engineering stamps due to the wide variety of specific needs, local codes, and climatic conditions. These details and specifications are easily obtained from your builder, contractors, and/or local engineers.

BEST PRICE GUARANTEE

find the same house plan (modifications included!) and package for less on another site, show us the URL and we'll give you the difference plus an additional 5% back.

100% SATISFACTION GUARANTEE

We offer a one-time, 30-day exchange policy for unused, non-electronic plan packages in the event you aren't satisfied with your first selection.

Customer Reviews of House Plan 1035
9/20/2013
Stahle of California
Customer Review:
The plans were perfect with more drawings than I expected! The plans were very well designed and the architect did a wonderful job with space utilization and features. We added a few minor changes but nothing to the footprint. Customer service when above and beyond helping us out. If you need to buy plans this is the place. If you want an empty nester house plan - this is the one.

SEE All Reviews
 
 

Plan 1035  Back to plan page

Loading...