Get discounts,
promos, see our
newest plans
and more!
+ 15% off any plan
See terms opt out anytime


No Thanks

Thanks for
signing up!


Use Code:

SIGNUP15

And save 15% off any plan!

Check your email for details.

CLOSE
Search Plans
Customer Reviews
     
15% off ALL House Plans Sitewide
15% off ALL House Plans Sitewide
15% off ALL House Plans Sitewide

Code: SAVE15
Sale ends midnight 4/22/2026 PST

Sq Ft
2,759 FT²

Beds
4

Baths
2.5

Stories
1.5

Garage
2

Depth
38'

Width
76'
On Sale
$1,020.00
$1,200.00
© copyright by designer
 View All 7 Images | Photographs may reflect modified home
Sq Ft
2,759 FT²
Beds
4
Baths
2.5
Stories
1.5
Garage
2
Depth
38'
Width
76'
 
Click to Zoom In on Floor Plan
© copyright by designer
 
 

About This Plan

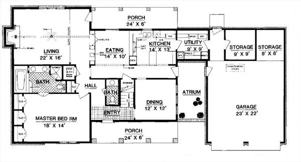
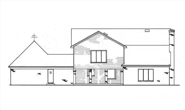
This majestic beauty has everything the growing family could desire. The upper level is designed just for kids and it has a game room sure to please the grown up kids too. A multitude of hall and bed room closets provide ample space for storing all of their gear. The master suite is grand and private with an adjoining plush bath. The living room has sloped ceilings, entry to the rear porch and a wood burning fireplace. A wet bar cabinet separates the eating area from the living room. The formal dining room has a spectacular view of an enclosed atrium garden. This is a super energy saving green design featuring 2x6 exterior walls.
 

See All Plan Options
 

FEATURES & DETAILS

Foundation Options
Basement
Crawlspace
Slab
Garage Location
Side
Garage Options
Attached
Front-entry
3,742 Ft
2
Total Structure
2,759 Ft
2
Total Heated
1,553 Ft
2
1st Floor
1,206 Ft
2
2nd Floor
4
Bedrooms
2.5
Bathrooms
2
Garage
1.5
Stories
76' 0"
Width
38' 0"
Depth
31' 0"
Height
8' 0"
Main Floor Ceiling
8' 0"
Upper Floor Ceiling
2x6
Framing
Stick
Roof Framing
12/12
Primary Roof Pitch
Single
Dwelling Number

Unheated Living Space
542 Ft
2
Garage
153 Ft
2
Storage
288 Ft
2
Porch
 

Plan Package Options

 Select Plan Package
  Select Foundation Option
  Add-Ons (Optional)
INCLUDED WITH YOUR PURCHASE

Free Ground shipping in the U.S.

FREE

Home Building & Product Ideas Organizer

Sub Total
$0
Free Shipping
QUESTIONS OR NEED HELP ORDERING? LIVE CHAT OR CALL US AT 866-214-2242
Plan Packages

Each set of construction documents typically includes detailed, dimensioned floor plans, basic electric layouts, cross sections, roof details, cabinet layouts, and elevations, as well as general IRC specifications. Please refer to the ARCHITECT or DESIGNER’S PLAN DETAILS link above the floor plan on any plan page to determine the specific details for each plan. Our house plans contain virtually all of the information required to construct your home. The typical plan set does not include plumbing, HVAC drawings, or engineering stamps due to the wide variety of specific needs, local codes, and climatic conditions. These details and specifications are easily obtained from your builder, contractors, and/or local engineers.

BEST PRICE GUARANTEE

Find the same house plan (modifications included!) and package for less on another site, show us the URL and we'll give you the difference plus an additional 10% back.

100% SATISFACTION GUARANTEE

We offer a one-time, 30-day exchange policy for unused, printed plan packages in the event you aren't satisfied with your first selection.

 
 

Plan 3001  Back to plan page

Loading...