Get discounts,
promos, see our
newest plans
and more!
+ 15% off any plan
See terms opt out anytime


No Thanks

Thanks for
signing up!


Use Code:

SIGNUP15

And save 15% off any plan!

Check your email for details.

CLOSE
Search Plans
Customer Reviews
     
America’s Top Home Plans
Trusted House Plans From America's Leading Architects & Designers

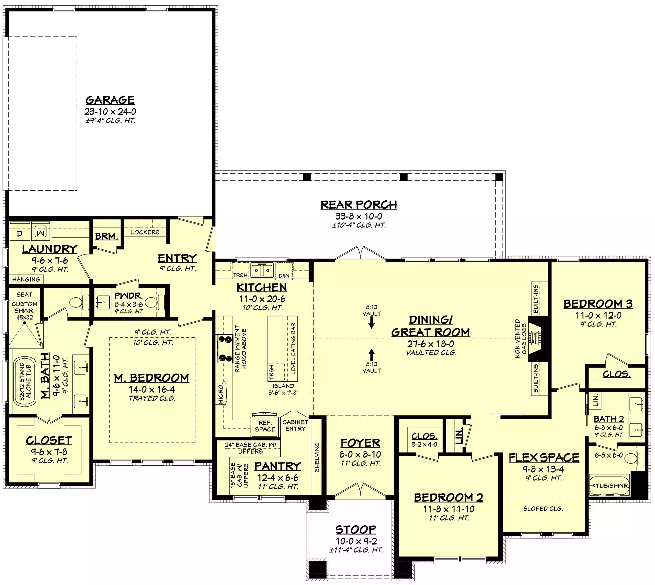
Everville 1 Story Transitional Style House, Plan 10249

 
 

Sq Ft
2,295 FT²

Beds
3

Baths
2.5

Stories
1

Garage
2

Depth
66' 8"

Width
75' 2"
From
$1,445.00
© copyright by designer
 View All 8 Images | Photographs may reflect modified home
Sq Ft
2,295 FT²
Beds
3
Baths
2.5
Stories
1
Garage
2
Depth
66' 8"
Width
75' 2"
 
Click to Zoom In on Floor Plan
© copyright by designer
 
 

About This Plan

Everville is a stunning transitional-style home that seamlessly blends elegance and functionality, offering 3 bedrooms, 2.5 baths, and a versatile den conveniently located near the guest suites. Its open-concept design enhances connectivity, with the great room and dining area highlighted by vaulted ceilings that create an airy, spacious feel. The chef-inspired kitchen features an eat-at bar and an oversized walk-in pantry, making meal prep and entertaining effortless. The primary suite is a private retreat, thoughtfully designed with abundant natural light to create a warm and inviting atmosphere. Perfect for modern living, Everville offers a harmonious blend of comfort and style.
 

See All Plan Options
 

FEATURES & DETAILS

Kitchen features
Country Kitchen
Kitchen Island
Peninsula / Eating Bar
U-Shaped
Walk-in Pantry
Bedroom features
Double Vanity Sink
Primary Bdrm Main Floor
Separate Tub and Shower
Split Bedrooms
Walk-in Closet
Exterior features
Covered Front Porch
Covered Rear Porch
Outdoor Living Space
Lot Options
Suited for view lot
Additional features
Foyer
Great Room
Home Office
Laundry 1st Fl
Mud Room
Open Floor Plan
Vaulted Ceilings
Vaulted Foyer
Vaulted Great Room/Living
Vaulted Kitchen
Vaulted Primary
Garage Location
Rear
Garage Options
Attached
Side-entry
3,324 Ft
2
Total Structure
2,295 Ft
2
Total Heated
2,295 Ft
2
1st Floor
3
Bedrooms
2.5
Bathrooms
2
Garage
1
Stories
75' 2"
Width
66' 8"
Depth
24' 0"
Height
9' 0"
Main Floor Ceiling
11' 0"
Foyer Ceiling
10' 0"
Primary Ceiling
2x4
Framing
Stick
Roof Framing
8/12
Primary Roof Pitch
12/12
Secondary Roof Pitch
Single
Dwelling Number

Unheated Living Space
596 Ft
2
Garage
433 Ft
2
Porch
89 Ft
2
Front Porch
337 Ft
2
Rear Porch
 

Plan Package Options

 Select Plan Package
 Need To Reverse Plan? (Optional)
  Select Foundation Option
  Add-Ons (Optional)
INCLUDED WITH YOUR PURCHASE

Free Ground shipping in the U.S.

FREE

Home Building & Product Ideas Organizer

Sub Total
$0
Free Shipping
QUESTIONS OR NEED HELP ORDERING? LIVE CHAT OR CALL US AT 866-214-2242
Plan Packages

Each set of construction documents typically includes detailed, dimensioned floor plans, basic electric layouts, cross sections, roof details, cabinet layouts, and elevations, as well as general IRC specifications. Please refer to the ARCHITECT or DESIGNER’S PLAN DETAILS link above the floor plan on any plan page to determine the specific details for each plan. Our house plans contain virtually all of the information required to construct your home. The typical plan set does not include plumbing, HVAC drawings, or engineering stamps due to the wide variety of specific needs, local codes, and climatic conditions. These details and specifications are easily obtained from your builder, contractors, and/or local engineers.

BEST PRICE GUARANTEE

Find the same house plan (modifications included!) and package for less on another site, show us the URL and we'll give you the difference plus an additional 10% back.

100% SATISFACTION GUARANTEE

We offer a one-time, 30-day exchange policy for unused, printed plan packages in the event you aren't satisfied with your first selection.

 
 

Plan 10249  Back to plan page

Loading...