Get discounts,
promos, see our
newest plans
and more!
+ 15% off any plan
See terms opt out anytime


No Thanks

Thanks for
signing up!


Use Code:

SIGNUP15

And save 15% off any plan!

Check your email for details.

CLOSE
Search Plans
Customer Reviews
     
15% off ALL House Plans Sitewide

Code: SAVE15
Sale ends midnight 4/22/2026 PST

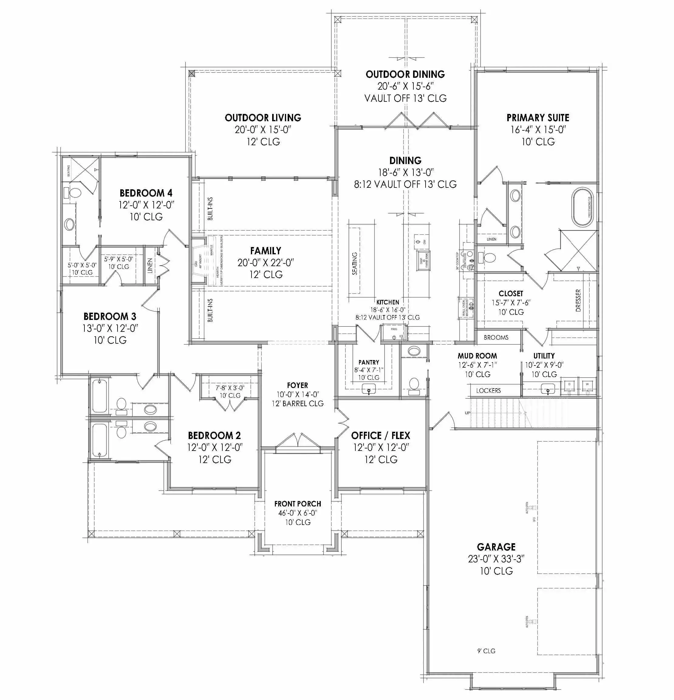
Rosewind | 4 Bedroom Modern Farmhouse Style House, Plan 12013

 
 

Sq Ft
3,255 FT²

Beds
4

Baths
4.5

Stories
1

Garage
3

Depth
92' 8"

Width
74' 9"
On Sale
$1,615.00
$1,900.00
© copyright by designer
 View All 12 Images | Photographs may reflect modified home
Sq Ft
3,255 FT²
Beds
4
Baths
4.5
Stories
1
Garage
3
Depth
92' 8"
Width
74' 9"
 
Click to Zoom In on Floor Plan
© copyright by designer
 
 

About This Plan

Rosewind is a spacious luxury modern farmhouse offering 3,255 square feet of thoughtfully designed living with four bedrooms and a front two-car garage. The large covered front porch opens into an inviting foyer with a private office or flex space just off the entry. At the heart of the home, the open family room features soaring twelve foot ceilings and a fireplace, flowing seamlessly into the massive L-shaped kitchen with double islands, abundant cabinetry, and a huge walk-in pantry with direct access to the mudroom for effortless grocery drop-off. The dining area opens to an expansive outdoor living space, perfect for entertaining and everyday relaxation. Three secondary bedrooms with full bathrooms are tucked along the left side of the home, while the right side is dedicated to the luxurious primary suite with a spa-like ensuite and an enormous walk-in closet with direct access to the utility room for ultimate convenience. 

See All Plan Options
 

FEATURES & DETAILS

Kitchen features
Kitchen Island
U-Shaped
Walk-in Pantry
Bedroom features
Double Vanity Sink
Primary Bdrm Main Floor
Separate Tub and Shower
Split Bedrooms
Walk-in Closet
Exterior features
Covered Front Porch
Covered Rear Porch
Outdoor Living Space
Lot Options
Suited for sloping lot
Suited for view lot
Additional features
Arches
Bonus Room
Dining Room
Family Room
Fireplace
Foyer
Home Office
Laundry 1st Fl
Mud Room
Open Floor Plan
Unfinished Space
Vaulted Ceilings
Vaulted Kitchen
Garage Location
Side
Garage Options
Attached
5,754 Ft
2
Total Structure
3,255 Ft
2
Total Heated
3,255 Ft
2
1st Floor
4
Bedrooms
4.5
Bathrooms
3
Garage
1
Stories
74' 9"
Width
92' 8"
Depth
29' 8"
Height
10' 0"
Main Floor Ceiling
9
Primary Roof Pitch
3
Secondary Roof Pitch
Single
Dwelling Number
1st Floor
Bonus Access

Unheated Living Space
825 Ft
2
Garage
1,005 Ft
2
Porch
400 Ft
2
Front Porch
605 Ft
2
Rear Porch
565 Ft
2
Bonus Room
 

Plan Package Options

 Select Plan Package
 Need To Reverse Plan? (Optional)
  Select Foundation Option
  Add-Ons (Optional)
INCLUDED WITH YOUR PURCHASE

Free Ground shipping in the U.S.

FREE

Home Building & Product Ideas Organizer

Sub Total
$0
Free Shipping
QUESTIONS OR NEED HELP ORDERING? LIVE CHAT OR CALL US AT 866-214-2242
Plan Packages

Each set of construction documents typically includes detailed, dimensioned floor plans, basic electric layouts, cross sections, roof details, cabinet layouts, and elevations, as well as general IRC specifications. Please refer to the ARCHITECT or DESIGNER’S PLAN DETAILS link above the floor plan on any plan page to determine the specific details for each plan. Our house plans contain virtually all of the information required to construct your home. The typical plan set does not include plumbing, HVAC drawings, or engineering stamps due to the wide variety of specific needs, local codes, and climatic conditions. These details and specifications are easily obtained from your builder, contractors, and/or local engineers.

BEST PRICE GUARANTEE

Find the same house plan (modifications included!) and package for less on another site, show us the URL and we'll give you the difference plus an additional 10% back.

100% SATISFACTION GUARANTEE

We offer a one-time, 30-day exchange policy for unused, printed plan packages in the event you aren't satisfied with your first selection.

 
 

Plan 12013  Back to plan page

Loading...