Get discounts,
promos, see our
newest plans
and more!
+ 15% off any plan
See terms opt out anytime


No Thanks

Thanks for
signing up!


Use Code:

SIGNUP15

And save 15% off any plan!

Check your email for details.

CLOSE
Search Plans
Customer Reviews
     
15% off ALL House Plans Sitewide
15% off ALL House Plans Sitewide
15% off ALL House Plans Sitewide

Code: SAVE15
Sale ends midnight 4/22/2026 PST

Middleton Harbor | 3 Bedroom Traditional Style House, Plan 11461

 
 

Sq Ft
1,940 FT²

Beds
3

Baths
2.5

Stories
1.5

Garage
2

Depth
59'

Width
68'
On Sale
$1,105.00
$1,300.00
© copyright by designer
 View All 4 Images | Photographs may reflect modified home | HPG-1940N
Sq Ft
1,940 FT²
Beds
3
Baths
2.5
Stories
1.5
Garage
2
Depth
59'
Width
68'
 

 
Click to Zoom In on Floor Plan
© copyright by designer
 
 

About This Plan

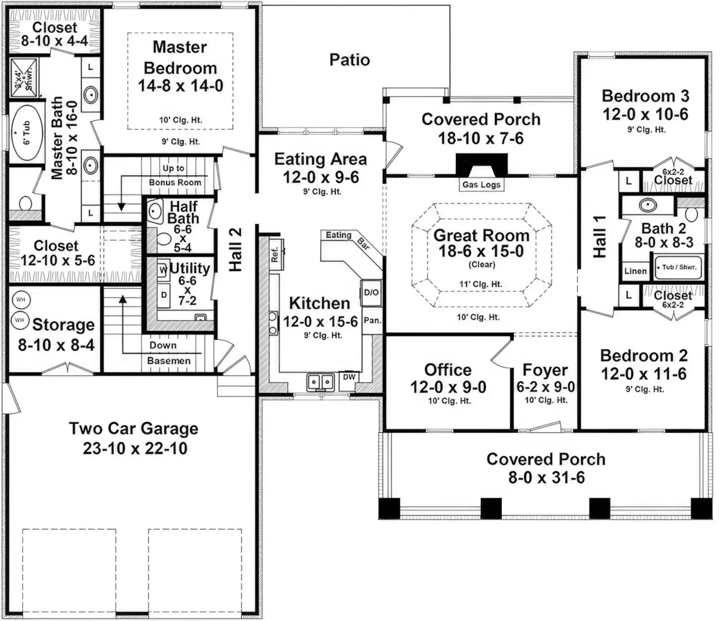
Middleton Harbor is a charming farmhouse-style home that combines timeless curb appeal with a spacious and functional layout ideal for modern families. The inviting covered front porch opens into a bright foyer and office, setting a warm and welcoming tone. At the heart of the home, the great room features 11-foot ceilings, a cozy gas-log fireplace, and an open flow to the dining area and gourmet kitchen, complete with a center island and walk-in pantry. Large windows and access to the rear covered porch and patio make indoor-outdoor living effortless. The private master suite offers a luxurious retreat with dual vanities, a soaking tub, separate shower, and oversized walk-in closets, while two additional bedrooms share a full bath. A convenient half bath, utility room, and storage areas add everyday practicality, and the upstairs bonus room provides flexible space for a playroom, gym, or guest suite. Blending farmhouse warmth with modern design, Middleton Harbor delivers comfort, charm, and versatility in every detail. 

See All Plan Options
 

FEATURES & DETAILS

Kitchen features
Pantry
Peninsula / Eating Bar
U-Shaped
Bedroom features
Double Vanity Sink
His and Hers Primary Closets
Primary Bdrm Main Floor
Nursery Room
Separate Tub and Shower
Split Bedrooms
Walk-in Closet
Exterior features
Covered Front Porch
Covered Rear Porch
Outdoor Living Space
Lot Options
Suited for corner lot
Additional features
Bonus Room
Dining Room
Exercise Room
Fireplace
Formal LR
Foyer
Great Room
Home Office
Laundry 1st Fl
Library/Media Rm
Storage Space
Unfinished Space
Vaulted Ceilings
Garage Location
Front
Garage Options
Attached
Oversized
3,480 Ft
2
Total Structure
1,940 Ft
2
Total Heated
3,080 Ft
2
1st Floor
3
Bedrooms
2.5
Bathrooms
2
Garage
1.5
Stories
68' 0"
Width
59' 0"
Depth
23' 9"
Height
9' 0"
Main Floor Ceiling
2x4
Framing
Stick
Roof Framing
9 in 12
Primary Roof Pitch
13 in 12 & 10 in 12
Secondary Roof Pitch
Single
Dwelling Number
1st Floor
Bonus Access

Unheated Living Space
567 Ft
2
Garage
82 Ft
2
Storage
252 Ft
2
Front Porch
130 Ft
2
Rear Porch
400 Ft
2
Bonus Room
 

Plan Package Options

 Select Plan Package
 Need To Reverse Plan? (Optional)
  Select Foundation Option
  Add-Ons (Optional)
INCLUDED WITH YOUR PURCHASE

Free Ground shipping in the U.S.

FREE

Home Building & Product Ideas Organizer

Sub Total
$0
Free Shipping
QUESTIONS OR NEED HELP ORDERING? LIVE CHAT OR CALL US AT 866-214-2242
Plan Packages

Each set of construction documents typically includes detailed, dimensioned floor plans, basic electric layouts, cross sections, roof details, cabinet layouts, and elevations, as well as general IRC specifications. Please refer to the ARCHITECT or DESIGNER’S PLAN DETAILS link above the floor plan on any plan page to determine the specific details for each plan. Our house plans contain virtually all of the information required to construct your home. The typical plan set does not include plumbing, HVAC drawings, or engineering stamps due to the wide variety of specific needs, local codes, and climatic conditions. These details and specifications are easily obtained from your builder, contractors, and/or local engineers.

BEST PRICE GUARANTEE

Find the same house plan (modifications included!) and package for less on another site, show us the URL and we'll give you the difference plus an additional 10% back.

100% SATISFACTION GUARANTEE

We offer a one-time, 30-day exchange policy for unused, printed plan packages in the event you aren't satisfied with your first selection.

 
 

Plan 11461  Back to plan page

Loading...