Get discounts,
promos, see our
newest plans
and more!
+ 15% off any plan
See terms opt out anytime


No Thanks

Thanks for
signing up!


Use Code:

SIGNUP15

And save 15% off any plan!

Check your email for details.

CLOSE
Search Plans
Customer Reviews
     

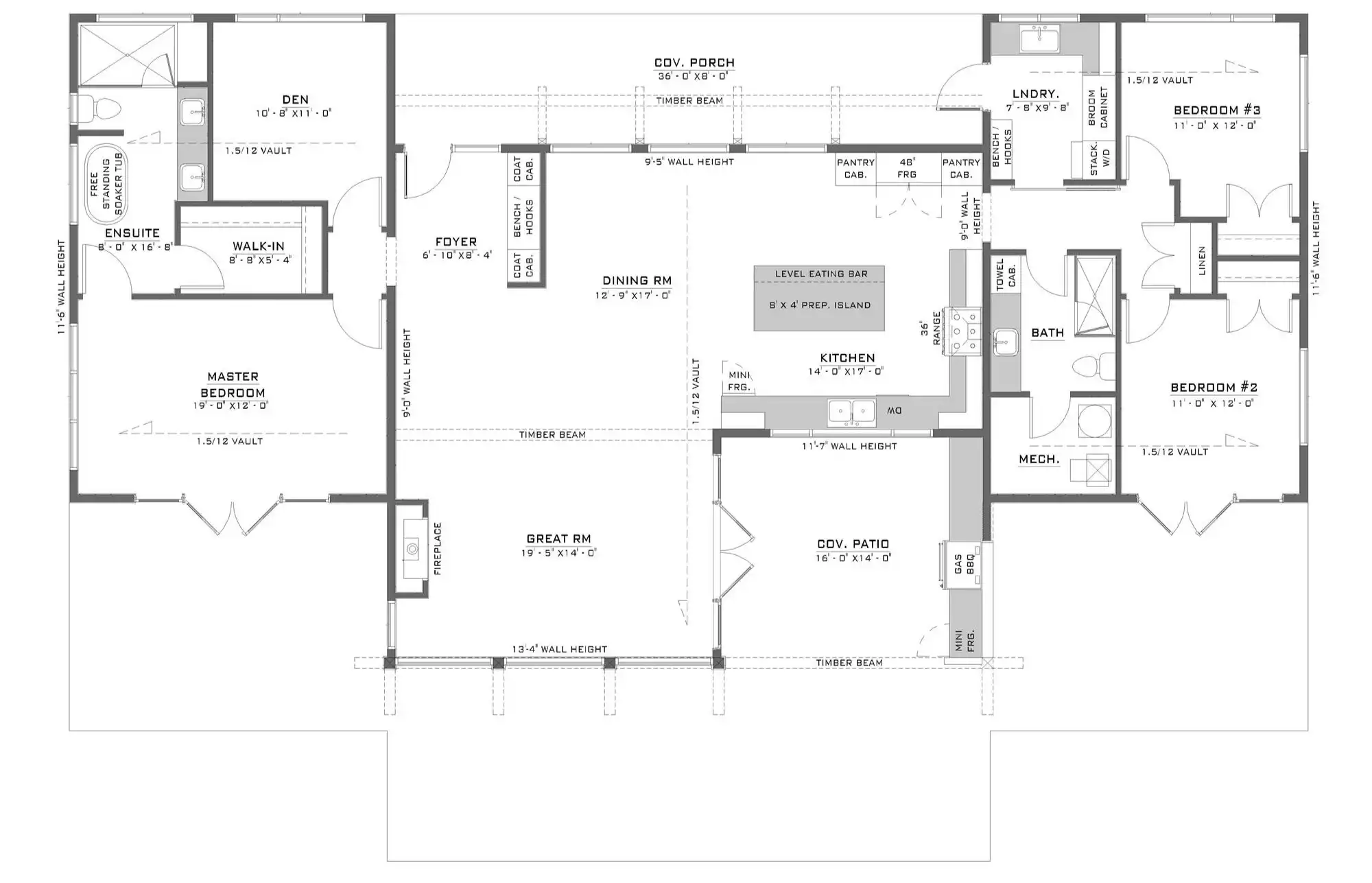
Cupertino Single Story Modern Style House, Plan 8019

 
 

Sq Ft
2,133 FT²

Beds
3

Baths
2

Stories
1

Garage
0

Depth
40' 2"

Width
76'
From
$1,395.00
© copyright by designer
 View All 8 Images | Photographs may reflect modified home
Sq Ft
2,133 FT²
Beds
3
Baths
2
Stories
1
Garage
0
Depth
40' 2"
Width
76'
 
Click to Zoom In on Floor Plan
© copyright by designer
 
 

About This Plan

Step inside Cupertino, a 2,133 square foot mid-century modern marvel that blends functionality with style, offering three bedrooms and two bathrooms. The interior boasts a vaulted open concept design, enhancing the spacious feel, a mix of wood and stone, and expansive windows ensuring outstanding curb appeal. The kitchen is designed for efficiency and aesthetic appeal, featuring a double sink positioned under a window for backyard views, and a prep island with casual seating options. The master suite is a retreat of its own with a vaulted ceiling and french doors that open to the backyard, providing a private escape. An additional bedroom offers outdoor access, enhancing the home’s connection with nature. For convenience, the laundry area is strategically placed across the hall from the bathroom, simplifying daily routines. Cupertino will be sure to capture you with its aesthetic appeal, and win you over with its functionality.  

See All Plan Options
 

FEATURES & DETAILS

Kitchen features
Kitchen Island
Pantry
Peninsula / Eating Bar
U-Shaped
Bedroom features
Double Vanity Sink
Primary Bdrm Main Floor
Separate Tub and Shower
Split Bedrooms
Walk-in Closet
Exterior features
Covered Front Porch
Covered Rear Porch
Outdoor Living Space
Additional features
Dining Room
Fireplace
Foyer
Great Room
Home Office
Laundry 1st Fl
Mud Room
Vaulted Primary
2,133 Ft
2
Total Heated
2,133 Ft
2
1st Floor
3
Bedrooms
2
Bathrooms
0
Garage
1
Stories
76' 0"
Width
40' 2"
Depth
15' 11"
Height
9' 0"
Main Floor Ceiling
2x6
Framing
Stick
Roof Framing
1.5/12
Primary Roof Pitch
1.5/12
Secondary Roof Pitch
Single
Dwelling Number

Unheated Living Space
108 Ft
2
Front Porch
233 Ft
2
Rear Porch
 

Plan Package Options

 Select Plan Package
  Select Foundation Option
  Add-Ons (Optional)
INCLUDED WITH YOUR PURCHASE

Free Ground shipping in the U.S.

FREE

Home Building & Product Ideas Organizer

Sub Total
$0
Free Shipping
QUESTIONS OR NEED HELP ORDERING? LIVE CHAT OR CALL US AT 866-214-2242
Plan Packages

Each set of construction documents includes detailed, dimensioned floor plans, basic electric layouts, cross sections, roof details, cabinet layouts and elevations, as well as general IRC specifications. They contain virtually all of the information required to construct your home. The typical plan set does not include any plumbing, HVAC drawings, or engineering stamps due to the wide variety of specific needs, local codes, and climatic conditions. These details and specifications are easily obtained from your builder, contractors, and/or local engineers.

BEST PRICE GUARANTEE

Find the same house plan (modifications included!) and package for less on another site, show us the URL and we'll give you the difference plus an additional 10% back.

100% SATISFACTION GUARANTEE

We offer a one-time, 30-day exchange policy for unused, printed plan packages in the event you aren't satisfied with your first selection.

 
 

Plan 8019  Back to plan page

Loading...