Get discounts,
promos, see our
newest plans
and more!
+ 15% off any plan
See terms opt out anytime


No Thanks

Thanks for
signing up!


Use Code:

SIGNUP15

And save 15% off any plan!

Check your email for details.

CLOSE
Search Plans
Customer Reviews
     
15% off ALL House Plans Sitewide
15% off ALL House Plans Sitewide
15% off ALL House Plans Sitewide

Code: SAVE15
Sale ends midnight 4/19/2026 PST

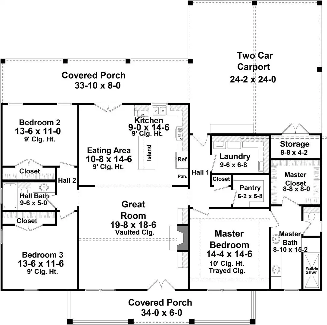
Solace Hill 3 Bedroom Ranch Style House, Plan 10420

 
 

Sq Ft
1,800 FT²

Beds
3

Baths
2

Stories
1

Garage
2

Depth
58' 6"

Width
58'
On Sale
$1,105.00
$1,300.00
© copyright by designer
 View All 3 Images | Photographs may reflect modified home
Sq Ft
1,800 FT²
Beds
3
Baths
2
Stories
1
Garage
2
Depth
58' 6"
Width
58'
 
Click to Zoom In on Floor Plan
© copyright by designer
 
 

About This Plan

Solace Hill is a charming 1,800 square foot farmhouse that combines classic appeal with modern functionality. Featuring a one-story, split-bedroom layout, this home offers three bedrooms, two bathrooms, and a two-car garage, along with a rear two-car carport for added convenience. Its timeless board and batten exterior and large covered front porch create a warm and welcoming entry. Inside, the vaulted great room enhances the sense of space, seamlessly connecting to the L-shaped kitchen, which includes a central island and a cozy eating area with access to the rear covered porch—perfect for indoor-outdoor living. The primary suite is a private retreat, boasting a spacious ensuite with dual vanities, a walk-in shower, and a generous walk-in closet. Thoughtfully designed for comfort and practicality, Solace Hill is the perfect blend of farmhouse charm and modern living.
 

See All Plan Options
 

FEATURES & DETAILS

Kitchen features
Country Kitchen
Kitchen Island
L-Shaped
Nook / Breakfast Area
Pantry
Peninsula / Eating Bar
Walk-in Pantry
Bedroom features
Double Vanity Sink
Primary Bdrm Main Floor
Split Bedrooms
Walk-in Closet
Exterior features
Covered Front Porch
Covered Rear Porch
Lot Options
Suited for view lot
Additional features
Great Room
Open Floor Plan
Vaulted Great Room/Living
Garage Location
Side
Garage Options
Carport
3,027 Ft
2
Total Structure
1,800 Ft
2
Total Heated
3,027 Ft
2
1st Floor
3
Bedrooms
2
Bathrooms
2
Garage
1
Stories
58' 0"
Width
58' 6"
Depth
23' 9"
Height
9' 0"
Main Floor Ceiling
2x4
Framing
Stick
Roof Framing
8 in 12
Primary Roof Pitch
10 in 12
Secondary Roof Pitch
Single
Dwelling Number

Unheated Living Space
616 Ft
2
Garage
477 Ft
2
Porch
 

Plan Package Options

 Select Plan Package
 Need To Reverse Plan? (Optional)
  Select Foundation Option
  Add-Ons (Optional)
INCLUDED WITH YOUR PURCHASE

Free Ground shipping in the U.S.

FREE

Home Building & Product Ideas Organizer

Sub Total
$0
Free Shipping
QUESTIONS OR NEED HELP ORDERING? LIVE CHAT OR CALL US AT 866-214-2242
Plan Packages

Each set of construction documents includes detailed, dimensioned floor plans, basic electric layouts, cross sections, roof details, cabinet layouts and elevations, as well as general IRC specifications. They contain virtually all of the information required to construct your home. The typical plan set does not include any plumbing, HVAC drawings, or engineering stamps due to the wide variety of specific needs, local codes, and climatic conditions. These details and specifications are easily obtained from your builder, contractors, and/or local engineers.

BEST PRICE GUARANTEE

Find the same house plan (modifications included!) and package for less on another site, show us the URL and we'll give you the difference plus an additional 10% back.

100% SATISFACTION GUARANTEE

We offer a one-time, 30-day exchange policy for unused, printed plan packages in the event you aren't satisfied with your first selection.

 
 

Plan 10420  Back to plan page

Loading...