Get discounts,
promos, see our
newest plans
and more!
+ 15% off any plan
See terms opt out anytime


No Thanks

Thanks for
signing up!


Use Code:

SIGNUP15

And save 15% off any plan!

Check your email for details.

CLOSE
Search Plans
Customer Reviews
     
15% off ALL House Plans Sitewide
15% off ALL House Plans Sitewide
15% off ALL House Plans Sitewide

Code: SAVE15
Sale ends midnight 4/22/2026 PST

Ravenwood | 3 Bedroom Craftsman Style House, Plan 11390

 
 

Sq Ft
1,924 FT²

Beds
3

Baths
2

Stories
1

Garage
2

Depth
59' 10"

Width
68'
On Sale
$1,105.00
$1,300.00
© copyright by designer
 View All 3 Images | Photographs may reflect modified home | HPG-1924N
Sq Ft
1,924 FT²
Beds
3
Baths
2
Stories
1
Garage
2
Depth
59' 10"
Width
68'
 

 
Click to Zoom In on Floor Plan
© copyright by designer
 
 

About This Plan

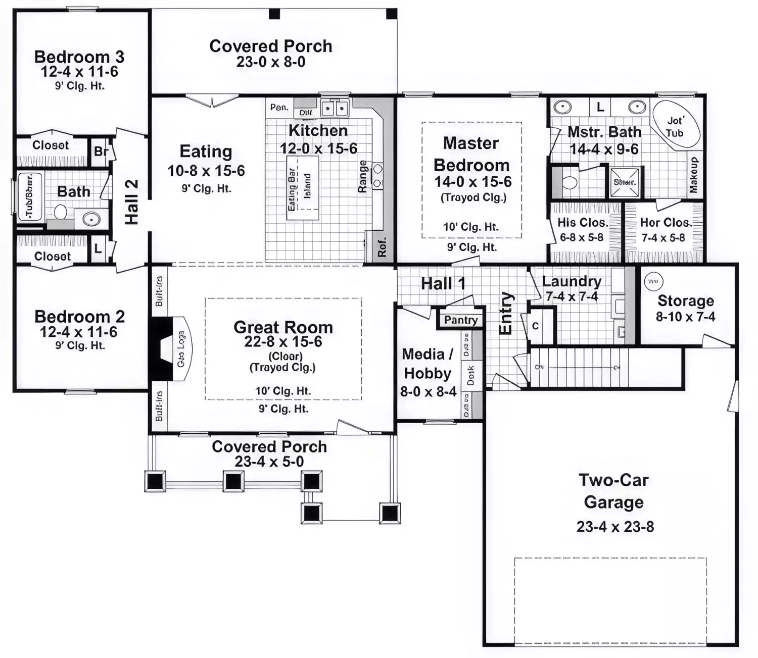
Ravenwood is a stunning 3-bedroom, 2-bathroom home that blends style, comfort, and practicality in a beautifully efficient layout. The open-concept design creates a natural flow between the spacious great room, kitchen, and eating area, making it perfect for family gatherings or entertaining guests. The great room features a trayed ceiling that adds volume and charm, while the kitchen includes a large island, generous counter space, and a walk-in pantry for everyday convenience. The master suite serves as a peaceful retreat with its own trayed ceiling, spa-like bath with a jet tub and walk-in shower, and dual closets for effortless organization. Two secondary bedrooms are thoughtfully positioned for privacy and share a full bath. A flexible media or hobby room offers endless possibilities, from movie nights to creative projects. With two covered porches for outdoor relaxation, a spacious two-car garage, and plenty of storage, Ravenwood delivers timeless comfort and functionality for modern living. 

See All Plan Options
 

FEATURES & DETAILS

Kitchen features
Country Kitchen
Kitchen Island
L-Shaped
Nook / Breakfast Area
Pantry
Bedroom features
Double Vanity Sink
His and Hers Primary Closets
Primary Bdrm Main Floor
Nursery Room
Separate Tub and Shower
Split Bedrooms
Walk-in Closet
Exterior features
Covered Front Porch
Covered Rear Porch
Lot Options
Suited for corner lot
Additional features
Exercise Room
Fireplace
Great Room
Home Office
Laundry 1st Fl
Library/Media Rm
Open Floor Plan
Rec Room
Storage Space
Unfinished Space
Vaulted Ceilings
Garage Location
Front
Garage Options
Attached
Oversized
2,976 Ft
2
Total Structure
1,924 Ft
2
Total Heated
1,924 Ft
2
1st Floor
3
Bedrooms
2
Bathrooms
2
Garage
1
Stories
68' 0"
Width
59' 10"
Depth
24' 11"
Height
9' 0"
Main Floor Ceiling
Stick
Roof Framing
8 in 12
Primary Roof Pitch
None
Secondary Roof Pitch
Single
Dwelling Number

Unheated Living Space
725 Ft
2
Garage
143 Ft
2
Front Porch
184 Ft
2
Rear Porch
 

Plan Package Options

 Select Plan Package
 Need To Reverse Plan? (Optional)
  Select Foundation Option
  Add-Ons (Optional)
INCLUDED WITH YOUR PURCHASE

Free Ground shipping in the U.S.

FREE

Home Building & Product Ideas Organizer

Sub Total
$0
Free Shipping
QUESTIONS OR NEED HELP ORDERING? LIVE CHAT OR CALL US AT 866-214-2242
Plan Packages

Each set of construction documents typically includes detailed, dimensioned floor plans, basic electric layouts, cross sections, roof details, cabinet layouts, and elevations, as well as general IRC specifications. Please refer to the ARCHITECT or DESIGNER’S PLAN DETAILS link above the floor plan on any plan page to determine the specific details for each plan. Our house plans contain virtually all of the information required to construct your home. The typical plan set does not include plumbing, HVAC drawings, or engineering stamps due to the wide variety of specific needs, local codes, and climatic conditions. These details and specifications are easily obtained from your builder, contractors, and/or local engineers.

BEST PRICE GUARANTEE

Find the same house plan (modifications included!) and package for less on another site, show us the URL and we'll give you the difference plus an additional 10% back.

100% SATISFACTION GUARANTEE

We offer a one-time, 30-day exchange policy for unused, printed plan packages in the event you aren't satisfied with your first selection.

 
 

Plan 11390  Back to plan page

Loading...