Get discounts,
promos, see our
newest plans
and more!
+ 15% off any plan
See terms opt out anytime


No Thanks

Thanks for
signing up!


Use Code:

SIGNUP15

And save 15% off any plan!

Check your email for details.

CLOSE
Search Plans
Customer Reviews
     
15% off ALL House Plans Sitewide
15% off ALL House Plans Sitewide
15% off ALL House Plans Sitewide

Code: SAVE15
Sale ends midnight 4/22/2026 PST

Jade Ave | 3 Bedroom Southern Style House, Plan 11181

 
 

Sq Ft
1,710 FT²

Beds
3

Baths
2.5

Stories
1

Garage
2

Depth
72'

Width
56'
On Sale
$850.00
$1,000.00
© copyright by designer
 View All 8 Images | Photographs may reflect modified home
Sq Ft
1,710 FT²
Beds
3
Baths
2.5
Stories
1
Garage
2
Depth
72'
Width
56'
 
Click to Zoom In on Floor Plan
© copyright by designer
 
 

About This Plan

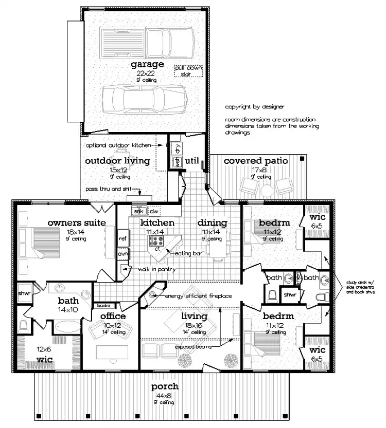
Jade Ave is a beautifully designed one-story home with 1,710 square feet, three bedrooms, and two-and-a-half baths, offering both charm and functionality. A welcoming front porch opens to a bright living room with fireplace, flowing effortlessly into the L-shaped kitchen with island seating and a dining area that leads to the rear covered patio and outdoor living space. Two bedrooms share a Jack-and-Jill bathroom on one side of the home, while the private owner’s suite features a spacious ensuite and walk-in closet. A dedicated office makes working from home convenient, and the rear-entry two-car garage provides ample storage and easy access. 

See All Plan Options
 

FEATURES & DETAILS

Kitchen features
Country Kitchen
Kitchen Island
L-Shaped
Pantry
Bedroom features
Double Vanity Sink
Primary Bdrm Main Floor
Nursery Room
Separate Tub and Shower
Split Bedrooms
Walk-in Closet
Exterior features
Covered Front Porch
Covered Rear Porch
Outdoor Kitchen
Outdoor Living Space
Lot Options
Suited for corner lot
Suited for narrow lot
Additional features
Dining Room
Fireplace
Great Room
Home Office
Laundry 1st Fl
Open Floor Plan
Vaulted Ceilings
Garage Location
Rear
Garage Options
Attached
Oversized
Side-entry
2,916 Ft
2
Total Structure
1,710 Ft
2
Total Heated
1,710 Ft
2
1st Floor
3
Bedrooms
2.5
Bathrooms
2
Garage
1
Stories
56' 0"
Width
72' 0"
Depth
26' 0"
Height
9' 0"
Main Floor Ceiling
14' 0"
Living/Great Room Ceiling
9' 0"
Primary Ceiling
2x6
Framing
Stick
Roof Framing
10:12
Primary Roof Pitch
4:12
Porch Roof Pitch
Single
Dwelling Number

Unheated Living Space
530 Ft
2
Garage
352 Ft
2
Front Porch
191 Ft
2
Rear Porch
133 Ft
2
Deck
 

Plan Package Options

 Select Plan Package
 Need To Reverse Plan? (Optional)
  Select Foundation Option
  Add-Ons (Optional)
INCLUDED WITH YOUR PURCHASE

Free Ground shipping in the U.S.

FREE

Home Building & Product Ideas Organizer

Sub Total
$0
Free Shipping

Note: D
QUESTIONS OR NEED HELP ORDERING? LIVE CHAT OR CALL US AT 866-214-2242
Plan Packages

Each set of construction documents typically includes detailed, dimensioned floor plans, basic electric layouts, cross sections, roof details, cabinet layouts, and elevations, as well as general IRC specifications. Please refer to the ARCHITECT or DESIGNER’S PLAN DETAILS link above the floor plan on any plan page to determine the specific details for each plan. Our house plans contain virtually all of the information required to construct your home. The typical plan set does not include plumbing, HVAC drawings, or engineering stamps due to the wide variety of specific needs, local codes, and climatic conditions. These details and specifications are easily obtained from your builder, contractors, and/or local engineers.

BEST PRICE GUARANTEE

Find the same house plan (modifications included!) and package for less on another site, show us the URL and we'll give you the difference plus an additional 10% back.

100% SATISFACTION GUARANTEE

We offer a one-time, 30-day exchange policy for unused, printed plan packages in the event you aren't satisfied with your first selection.

 
 

Plan 11181  Back to plan page

Loading...