Get discounts,
promos, see our
newest plans
and more!
+ 15% off any plan
See terms opt out anytime


No Thanks

Thanks for
signing up!


Use Code:

SIGNUP15

And save 15% off any plan!

Check your email for details.

CLOSE
Search Plans
Customer Reviews
     
15% off ALL House Plans Sitewide
15% off ALL House Plans Sitewide
15% off ALL House Plans Sitewide

Code: SAVE15
Sale ends midnight 4/22/2026 PST

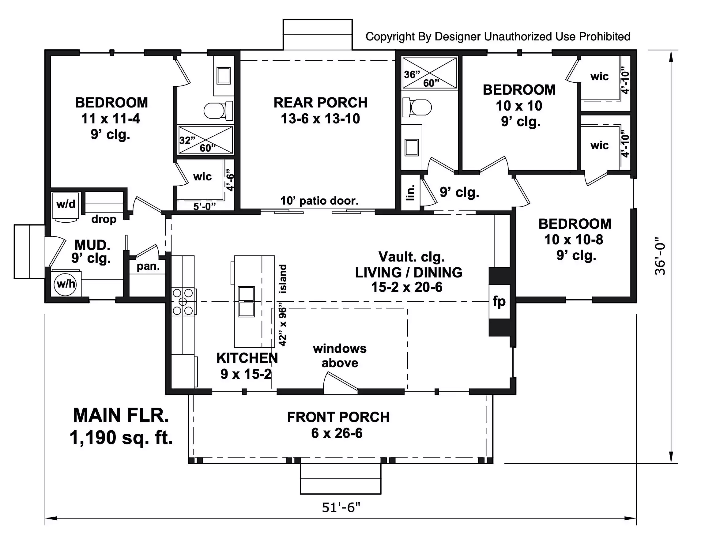
Ashtonville | 3 Bedroom Country Style House, Plan 11363

 
 

Sq Ft
1,190 FT²

Beds
3

Baths
2

Stories
1

Garage
0

Depth
36'

Width
51' 6"
On Sale
$1,466.25
$1,725.00
© copyright by designer
 View All 6 Images | Photographs may reflect modified home
Sq Ft
1,190 FT²
Beds
3
Baths
2
Stories
1
Garage
0
Depth
36'
Width
51' 6"
 
Click to Zoom In on Floor Plan
© copyright by designer
 
 

About This Plan

Ashtonville blends farmhouse warmth with cottage charm in a thoughtful layout that prioritizes openness, comfort, and organization. At its heart, the vaulted living and dining area feels bright and welcoming, framed by large windows and centered around a cozy fireplace, while the kitchen connects seamlessly with a spacious island for cooking, casual meals, and conversation. A nearby pantry offers practical storage, and the open plan encourages natural light and easy flow throughout. Three well-placed bedrooms provide comfort and flexibility—the primary suite features a walk-in closet and private bath access, while two additional bedrooms, each with their own walk-in closets, share a second full bath. At the rear of the home, sliding doors open to a covered porch that extends the living space outdoors, and a smartly designed mudroom near the kitchen includes laundry, storage cubbies, and the home’s water heater neatly tucked away. Ashtonville’s clean layout, stylish functionality, and timeless farmhouse character make it perfect for modern family living. 

See All Plan Options
 

FEATURES & DETAILS

Kitchen features
Kitchen Island
Peninsula / Eating Bar
Walk-in Pantry
Bedroom features
Primary Bdrm Main Floor
Split Bedrooms
Walk-in Closet
Exterior features
Covered Front Porch
Covered Rear Porch
Lot Options
Suited for corner lot
Additional features
Fireplace
Great Room
Laundry 1st Fl
Mud Room
Open Floor Plan
Vaulted Great Room/Living
1,190 Ft
2
Total Heated
1,190 Ft
2
1st Floor
3
Bedrooms
2
Bathrooms
0
Garage
1
Stories
51' 6"
Width
36' 0"
Depth
24' 0"
Height
9' 0"
Main Floor Ceiling
2x6
Framing
Truss
Roof Framing
9/12
Primary Roof Pitch
Single
Dwelling Number
None
Bonus Access

Unheated Living Space
 

Plan Package Options

 Select Plan Package
 Need To Reverse Plan? (Optional)
  Select Foundation Option
  Add-Ons (Optional)
INCLUDED WITH YOUR PURCHASE

Free Ground shipping in the U.S.

FREE

Home Building & Product Ideas Organizer

Sub Total
$0
Free Shipping
QUESTIONS OR NEED HELP ORDERING? LIVE CHAT OR CALL US AT 866-214-2242
Plan Packages

Each set of construction documents typically includes detailed, dimensioned floor plans, basic electric layouts, cross sections, roof details, cabinet layouts, and elevations, as well as general IRC specifications. Please refer to the ARCHITECT or DESIGNER’S PLAN DETAILS link above the floor plan on any plan page to determine the specific details for each plan. Our house plans contain virtually all of the information required to construct your home. The typical plan set does not include plumbing, HVAC drawings, or engineering stamps due to the wide variety of specific needs, local codes, and climatic conditions. These details and specifications are easily obtained from your builder, contractors, and/or local engineers.

BEST PRICE GUARANTEE

Find the same house plan (modifications included!) and package for less on another site, show us the URL and we'll give you the difference plus an additional 10% back.

100% SATISFACTION GUARANTEE

We offer a one-time, 30-day exchange policy for unused, printed plan packages in the event you aren't satisfied with your first selection.

 
 

Plan 11363  Back to plan page

Loading...