Get discounts,
promos, see our
newest plans
and more!
+ 15% off any plan
See terms opt out anytime


No Thanks

Thanks for
signing up!


Use Code:

SIGNUP15

And save 15% off any plan!

Check your email for details.

CLOSE
Search Plans
Customer Reviews
     
22% Off House Plans Sitewide Ends Friday
22% Off House Plans Sitewide Ends Friday
22% Off House Plans Sitewide Ends Friday

Code: SAVE22
Sale ends midnight 12/5/2025 PST

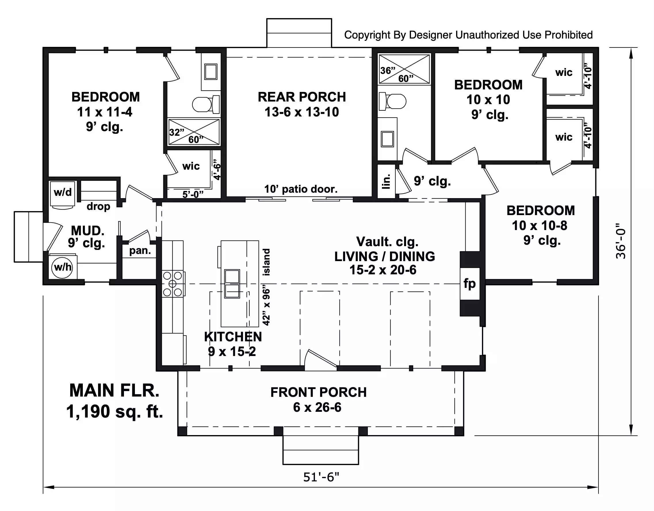
Sherbrooke Court | 3 Bedroom Farmhouse Style House, Plan 11364

 
 

Sq Ft
1,190 FT²

Beds
3

Baths
2

Stories
1

Garage
0

Depth
36'

Width
51' 6"
On Sale
$1,345.50
$1,725.00
© copyright by designer
 View All 5 Images | Photographs may reflect modified home
Sq Ft
1,190 FT²
Beds
3
Baths
2
Stories
1
Garage
0
Depth
36'
Width
51' 6"
 
Click to Zoom In on Floor Plan
© copyright by designer
 
 

About This Plan

Sherbrooke Court blends farmhouse charm with cottage-style comfort in a thoughtfully designed layout. At the center of the home, the vaulted living and dining area welcomes natural light through large windows and features a cozy fireplace, creating a warm and inviting gathering space. The kitchen flows seamlessly into this open layout and is highlighted by a spacious island, perfect for cooking, casual dining, and conversation. A walk-in pantry adds convenience, while sliding doors extend the living space to a rear covered porch ideal for outdoor relaxation. The primary bedroom offers a walk-in closet and private access to a full bathroom, while two additional bedrooms, each with their own walk-in closets, share a second full bath. A nearby mudroom with laundry, storage cubbies, and utility space keeps everything organized, ensuring the home’s practical design supports modern family living with farmhouse appeal. 

See All Plan Options
 

FEATURES & DETAILS

Kitchen features
Kitchen Island
Peninsula / Eating Bar
Walk-in Pantry
Bedroom features
Primary Bdrm Main Floor
Split Bedrooms
Walk-in Closet
Exterior features
Covered Front Porch
Covered Rear Porch
Lot Options
Suited for corner lot
Additional features
Fireplace
Great Room
Laundry 1st Fl
Mud Room
Open Floor Plan
Vaulted Great Room/Living
1,190 Ft
2
Total Heated
3
Bedrooms
2
Bathrooms
0
Garage
1
Stories
51' 6"
Width
36' 0"
Depth
24' 0"
Height
2x6
Framing
Truss
Roof Framing
9/12
Primary Roof Pitch
Single
Dwelling Number
None
Bonus Access

Unheated Living Space
 

Plan Package Options

 Select Plan Package
Sale: $1,346
PDF Single Build
$1,725

Digital plans emailed to you in PDF format that allows for printing copies and sharing electronically with contractors, subs, decorators, and more. This package includes a license to build the home one time.

Sale: $1,346
Sale: $1,502
5 Printed Sets
$1,925

Five Printed Sets of Residential Construction Drawings are typically 24” x 36” documents and come with a license to construct a single residence shipped to a physical address. Keep in mind PDF Plan Packages are our most popular choice which allows you to print as many copies as you need and to electronically send files to your builder, subcontractors, etc.

Sale: $1,502
Sale: $1,580
8 Printed Sets
$2,025

Eight Printed Sets of Construction Drawings, typically 24” x 36” documents, with a license to construct a single residence shipped to your physical address. PDF Plan Packages are our most popular choice which allows you to print as many copies as you need and to electronically send files to your builder, subcontractors, bank/mortgage reps, material stores, decorators and more.

Sale: $1,580
Sale: $1,580
5 Printed Sets + PDF
$2,025

Digital plan emailed to you in PDF format that allows for printing copies on a home printer or local print shop and sharing with contractors, subs, decorators, and more. PLUS five printed sets shipped and delivered 3-5 business days.

Sale: $1,580
Sale: $1,911
CAD + PDF Single Build
$2,450

CAD files are a complete set of construction drawings delivered electronically. They can be used for any type of modification—including major design changes and engineering—and include a release granting permission to modify the plan. Most CAD plan orders are emailed the same or next business day.
 
This package also comes with a PDF set of plans and a copyright release for making modifications and printing unlimited copies.
 
CAD files are provided in .dwg format. For details on the specific CAD program used, please refer to the PLAN DETAILS section located above the floor plan on each plan’s page.

Sale: $1,911
 Need To Reverse Plan? (Optional)
$250
Readable Reverse

Reverse house plans with readable text and dimensions 

$250
  Select Foundation Option
  Add-Ons (Optional)
INCLUDED WITH YOUR PURCHASE

Free Ground shipping in the Continental U.S.

FREE

Design consultation with the architect or designer to discuss your plan

Home Building & Product Ideas Organizer

Sub Total
$0
Free Shipping
QUESTIONS OR NEED HELP ORDERING? LIVE CHAT OR CALL US AT 866-214-2242
Plan Packages

Each set of construction documents includes detailed, dimensioned floor plans, basic electric layouts, cross sections, roof details, cabinet layouts and elevations, as well as general IRC specifications. They contain virtually all of the information required to construct your home. The typical plan set does not include any plumbing, HVAC drawings, or engineering stamps due to the wide variety of specific needs, local codes, and climatic conditions. These details and specifications are easily obtained from your builder, contractors, and/or local engineers.

BEST PRICE GUARANTEE

find the same house plan (modifications included!) and package for less on another site, show us the URL and we'll give you the difference plus an additional 5% back.

100% SATISFACTION GUARANTEE

We offer a one-time, 30-day exchange policy for unused, non-electronic plan packages in the event you aren't satisfied with your first selection.

 
 

Plan 11364  Back to plan page

Loading...