Get discounts,
promos, see our
newest plans
and more!
+ 15% off any plan
See terms opt out anytime


No Thanks

Thanks for
signing up!


Use Code:

SIGNUP15

And save 15% off any plan!

Check your email for details.

CLOSE
Search Plans
Customer Reviews
     
15% off ALL House Plans Sitewide
15% off ALL House Plans Sitewide
15% off ALL House Plans Sitewide

Code: SAVE15
Sale ends midnight 4/22/2026 PST

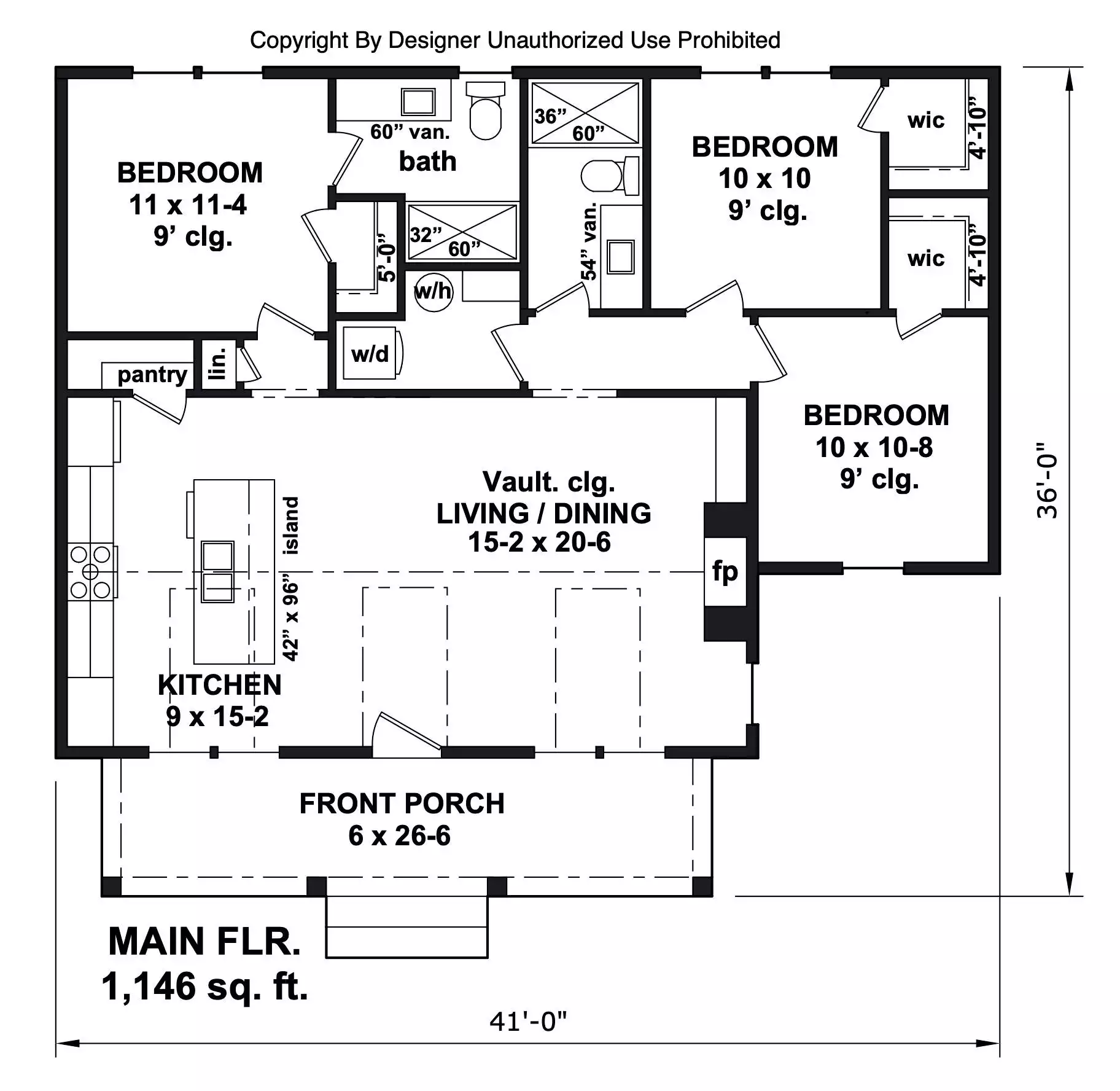
Harley Acres | 3 Bedroom Country Style House, Plan 11354

 
 

Sq Ft
1,146 FT²

Beds
3

Baths
2

Stories
1

Garage
0

Depth
36'

Width
41'
On Sale
$1,466.25
$1,725.00
© copyright by designer
 View All 6 Images | Photographs may reflect modified home
Sq Ft
1,146 FT²
Beds
3
Baths
2
Stories
1
Garage
0
Depth
36'
Width
41'
 
Click to Zoom In on Floor Plan
© copyright by designer
 
 

About This Plan

Harley Aces is a beautifully crafted Craftsman home that balances simplicity, livability, and timeless style. At the heart of the design, the vaulted living and dining area feels bright and open, filled with natural light and anchored by a functional layout that encourages connection. The kitchen includes a central island for meal prep, casual dining, and conversation, with a nearby pantry for extra storage. Three bedrooms provide flexibility for families, guests, or a home office. The private primary suite offers direct access to a full bathroom, while two secondary bedrooms with walk-in closets are positioned near a second full bath for convenience. A central laundry area with room for a stackable washer and dryer, shelving, and utility storage keeps routines efficient and organized. With its thoughtful layout and classic Craftsman details, Harley Aces is designed to support everyday comfort with lasting charm. 

See All Plan Options
 

FEATURES & DETAILS

Kitchen features
Kitchen Island
Pantry
Peninsula / Eating Bar
Bedroom features
Family Style
Primary Bdrm Main Floor
Walk-in Closet
Exterior features
Covered Front Porch
Lot Options
Suited for corner lot
Additional features
Fireplace
Great Room
Laundry 1st Fl
Open Floor Plan
Vaulted Great Room/Living
1,146 Ft
2
Total Heated
1,146 Ft
2
1st Floor
3
Bedrooms
2
Bathrooms
0
Garage
1
Stories
41' 0"
Width
36' 0"
Depth
24' 0"
Height
2x6
Framing
Truss
Roof Framing
9/12
Primary Roof Pitch
Single
Dwelling Number
None
Bonus Access

Unheated Living Space
 

Plan Package Options

 Select Plan Package
 Need To Reverse Plan? (Optional)
  Select Foundation Option
  Add-Ons (Optional)
INCLUDED WITH YOUR PURCHASE

Free Ground shipping in the U.S.

FREE

Home Building & Product Ideas Organizer

Sub Total
$0
Free Shipping
QUESTIONS OR NEED HELP ORDERING? LIVE CHAT OR CALL US AT 866-214-2242
Plan Packages

Each set of construction documents typically includes detailed, dimensioned floor plans, basic electric layouts, cross sections, roof details, cabinet layouts, and elevations, as well as general IRC specifications. Please refer to the ARCHITECT or DESIGNER’S PLAN DETAILS link above the floor plan on any plan page to determine the specific details for each plan. Our house plans contain virtually all of the information required to construct your home. The typical plan set does not include plumbing, HVAC drawings, or engineering stamps due to the wide variety of specific needs, local codes, and climatic conditions. These details and specifications are easily obtained from your builder, contractors, and/or local engineers.

BEST PRICE GUARANTEE

Find the same house plan (modifications included!) and package for less on another site, show us the URL and we'll give you the difference plus an additional 10% back.

100% SATISFACTION GUARANTEE

We offer a one-time, 30-day exchange policy for unused, printed plan packages in the event you aren't satisfied with your first selection.

 
 

Plan 11354  Back to plan page

Loading...