Get discounts,
promos, see our
newest plans
and more!
+ 15% off any plan
See terms opt out anytime


No Thanks

Thanks for
signing up!


Use Code:

SIGNUP15

And save 15% off any plan!

Check your email for details.

CLOSE
Search Plans
Customer Reviews
     

Laurelwood One Story Lake Style House, Plan 10081

 
 

Sq Ft
2,932 FT²

Beds
4

Baths
4

Stories
1

Garage
2

Depth
82' 6"

Width
43' 11"
From
$1,998.00
© copyright by designer
 View All 23 Images | Photographs may reflect modified home | Video Tour
Sq Ft
2,932 FT²
Beds
4
Baths
4
Stories
1
Garage
2
Depth
82' 6"
Width
43' 11"
 

 
Click to Zoom In on Floor Plan
© copyright by designer
 
 

About This Plan

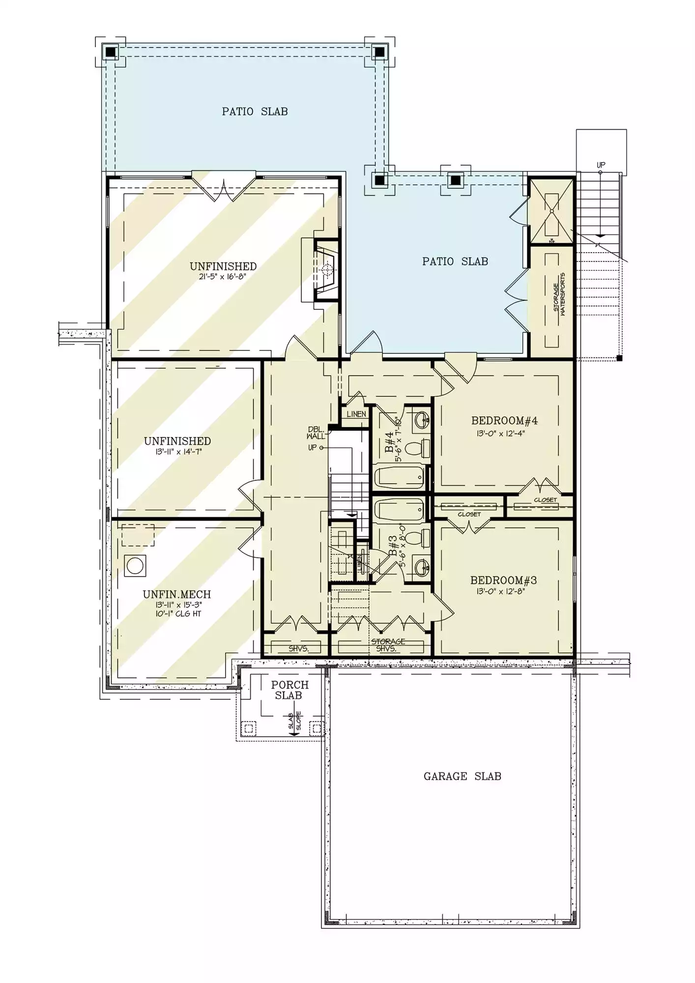
The Laurelwood house plan is a stunning 2,932-square-foot lake house designed for comfortable living and scenic views. This home features a spacious open floor plan that invites natural light through large floor-to-ceiling windows on the upper level, creating a seamless connection with the outdoors. The large kitchen boasts a central island perfect for gatherings and a walk-in pantry for ample storage. Enjoy outdoor living with a screened-in rear porch and an expansive rear deck overlooking the lake. The primary suite on the main floor offers a luxurious retreat with a double vanity and a generous walk-in closet. An office on this level can easily serve as a fourth bedroom, adding versatility to the layout. The walkout basement level includes two additional bedrooms, providing a private space for family or guests. 

See All Plan Options
 

FEATURES & DETAILS

Kitchen features
Kitchen Island
L-Shaped
Peninsula / Eating Bar
Walk-in Pantry
Bedroom features
Double Vanity Sink
Primary Bdrm Main Floor
Split Bedrooms
Walk-in Closet
Exterior features
Covered Front Porch
Covered Rear Porch
Deck
Screened Porch/Sunroom
Lot Options
Suited for corner lot
Suited for view lot
Additional features
Fireplace
Foyer
Home Office
Laundry 1st Fl
Open Floor Plan
Unfinished Space
Vaulted Kitchen
Vaulted Primary
Garage Location
Front
Garage Options
Attached
Front-entry
2,832 Ft
2
Total Structure
2,932 Ft
2
Total Heated
1,674 Ft
2
1st Floor
1,158 Ft
2
Lower Floor
415 Ft
2
Unfinished Basement
4
Bedrooms
4
Bathrooms
2
Garage
1
Stories
43' 11"
Width
82' 6"
Depth
23' 7"
Height
10' 1"
Main Floor Ceiling
10' 1"
Lower Floor Ceiling
2x4
Framing
Stick
Roof Framing
9/12
Primary Roof Pitch
Single
Dwelling Number
None
Bonus Access

Unheated Living Space
564 Ft
2
Garage
376 Ft
2
Rear Porch
318 Ft
2
Deck
 

Plan Package Options

 Select Plan Package
 Need To Reverse Plan? (Optional)
  Select Foundation Option
  Add-Ons (Optional)
INCLUDED WITH YOUR PURCHASE

Free Ground shipping in the U.S.

FREE

Home Building & Product Ideas Organizer

Sub Total
$0
Free Shipping
QUESTIONS OR NEED HELP ORDERING? LIVE CHAT OR CALL US AT 866-214-2242
Plan Packages

Each set of construction documents includes detailed, dimensioned floor plans, basic electric layouts, cross sections, roof details, cabinet layouts and elevations, as well as general IRC specifications. They contain virtually all of the information required to construct your home. The typical plan set does not include any plumbing, HVAC drawings, or engineering stamps due to the wide variety of specific needs, local codes, and climatic conditions. These details and specifications are easily obtained from your builder, contractors, and/or local engineers.

BEST PRICE GUARANTEE

Find the same house plan (modifications included!) and package for less on another site, show us the URL and we'll give you the difference plus an additional 10% back.

100% SATISFACTION GUARANTEE

We offer a one-time, 30-day exchange policy for unused, printed plan packages in the event you aren't satisfied with your first selection.

 
 

Plan 10081  Back to plan page

Loading...