Get discounts,
promos, see our
newest plans
and more!
+ 15% off any plan
See terms opt out anytime


No Thanks

Thanks for
signing up!


Use Code:

SIGNUP15

And save 15% off any plan!

Check your email for details.

CLOSE
Search Plans
Customer Reviews
     
20% off ALL House Plans Sitewide
20% off ALL House Plans Sitewide
20% off ALL House Plans Sitewide

Code: LOVE20
Sale ends midnight 2/15/2026 PST

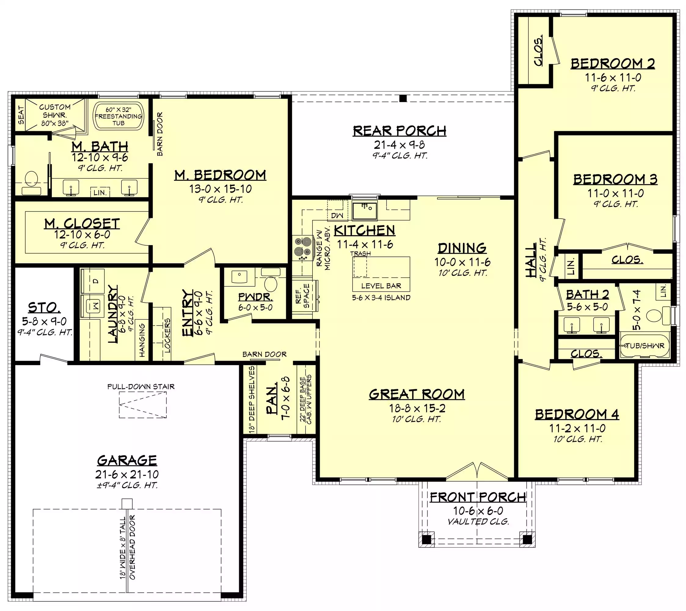
Marigold 4 Bedroom Cottage Style House, Plan 2861

 
 

Sq Ft
1,899 FT²

Beds
4

Baths
2.5

Stories
1

Garage
2

Depth
56'

Width
63' 8"
On Sale
$1,116.00
$1,395.00
© copyright by designer
 View All 10 Images | Photographs may reflect modified home
Sq Ft
1,899 FT²
Beds
4
Baths
2.5
Stories
1
Garage
2
Depth
56'
Width
63' 8"
 
Click to Zoom In on Floor Plan
© copyright by designer
 
 

About This Plan

The Marigold is a charming modern farmhouse that maximizes its space, offering 4 bedrooms and 2.5 baths within a compact footprint of 1899 square feet. A welcoming vaulted entry porch invites you into an open-concept living area that seamlessly blends the great room, kitchen, and dining spaces, perfect for both everyday living and entertaining. The split floor plan ensures privacy for the main suite, which features a luxurious bathroom with a separate tub and shower, as well as an oversized walk-in closet. Ideal for those seeking a balance between cozy living and modern design. 

See All Plan Options
 

FEATURES & DETAILS

Kitchen features
Kitchen Island
L-Shaped
Peninsula / Eating Bar
Walk-in Pantry
Bedroom features
Double Vanity Sink
Primary Bdrm Main Floor
Separate Tub and Shower
Split Bedrooms
Walk-in Closet
Exterior features
Covered Front Porch
Covered Rear Porch
Outdoor Living Space
Lot Options
Suited for corner lot
Suited for view lot
Additional features
Dining Room
Great Room
Laundry 1st Fl
Mud Room
Open Floor Plan
Vaulted Primary
Garage Location
Front
Garage Options
Attached
Front-entry
2,717 Ft
2
Total Structure
1,899 Ft
2
Total Heated
4
Bedrooms
2.5
Bathrooms
2
Garage
1
Stories
63' 8"
Width
56' 0"
Depth
23' 0"
Height
9' 0"
Main Floor Ceiling
10' 0"
Living/Great Room Ceiling
2x4
Framing
Stick
Roof Framing
8/12
Primary Roof Pitch
3/12
Secondary Roof Pitch
Single
Dwelling Number
None
Bonus Access

Unheated Living Space
493 Ft
2
Garage
56 Ft
2
Storage
63 Ft
2
Front Porch
206 Ft
2
Rear Porch
 

Plan Package Options

 Select Plan Package
 Need To Reverse Plan? (Optional)
  Select Foundation Option
  Add-Ons (Optional)
INCLUDED WITH YOUR PURCHASE

Free Ground shipping in the U.S.

FREE

Home Building & Product Ideas Organizer

Sub Total
$0
Free Shipping
QUESTIONS OR NEED HELP ORDERING? LIVE CHAT OR CALL US AT 866-214-2242
Plan Packages

Each set of construction documents includes detailed, dimensioned floor plans, basic electric layouts, cross sections, roof details, cabinet layouts and elevations, as well as general IRC specifications. They contain virtually all of the information required to construct your home. The typical plan set does not include any plumbing, HVAC drawings, or engineering stamps due to the wide variety of specific needs, local codes, and climatic conditions. These details and specifications are easily obtained from your builder, contractors, and/or local engineers.

BEST PRICE GUARANTEE

Find the same house plan (modifications included!) and package for less on another site, show us the URL and we'll give you the difference plus an additional 10% back.

100% SATISFACTION GUARANTEE

We offer a one-time, 30-day exchange policy for unused, printed plan packages in the event you aren't satisfied with your first selection.

 
 

Plan 2861  Back to plan page

Loading...