Get discounts,
promos, see our
newest plans
and more!
+ 15% off any plan
See terms opt out anytime


No Thanks

Thanks for
signing up!


Use Code:

SIGNUP15

And save 15% off any plan!

Check your email for details.

CLOSE
Search Plans
     
20% Off House Plans Sitewide Ends Tuesday
20% Off House Plans Sitewide Ends Tuesday
20% Off House Plans Sitewide Ends Tuesday

Code: VET20
Sale ends midnight 11/11/2025 PST

Sq Ft
2,396 FT²

Beds
4

Baths
2

Stories
1

Garage
2

Depth
60'

Width
72'
On Sale
$880.00
$1,100.00
© copyright by designer
 View All 8 Images | Photographs may reflect modified home
Sq Ft
2,396 FT²
Beds
4
Baths
2
Stories
1
Garage
2
Depth
60'
Width
72'
 
Click to Zoom In on Floor Plan
© copyright by designer
 
 

About This Plan

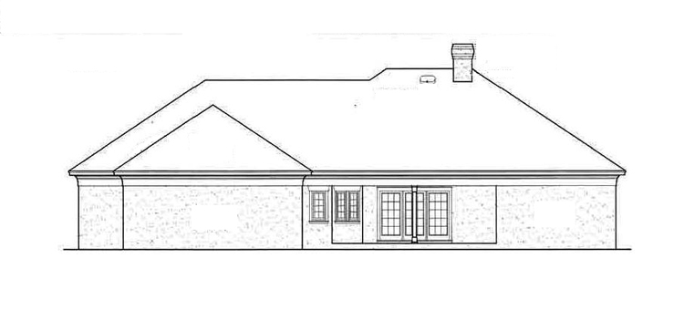
This plan is a super energy saver featuring 2 x 6 exterior walls. Beautiful arched windows lend a luxurious feeling to the exterior of this one-story home. Soaring 12-ft. ceilings add volume to both the entry area and the living room, which boasts a fireplace and access to a covered porch. Highlights of the kitchen include a pantry and an angled eating bar. 

See All Plan Options
 

FEATURES & DETAILS

Exterior features
Front Porch
Foundation Options
Basement
Crawlspace
Slab
Lot Options
Suited for view lot
Garage Location
Front
Garage Options
Attached
Front-entry
2,396 Ft
2
Total Heated
4
Bedrooms
2
Bathrooms
2
Garage
1
Stories
72' 0"
Width
60' 0"
Depth
26' 0"
Height
9' 0"
Main Floor Ceiling
2x6
Framing
8/12
Primary Roof Pitch
Single
Dwelling Number
None
Bonus Access

Unheated Living Space
806 Ft
2
Garage
 

Plan Package Options

 Select Plan Package
Sale: $720
PDF Bid Set
$900

PDFs NOW!™

Home plans stamped "NOT FOR CONSTRUCTION" for cost estimating and bidding purposes only; a minimum 5 set plan package must be purchased within 90 days for a license to build plan set; a credit will be applied towards your house plan upgrade

Sale: $720
Sale: $880
PDF Single Build
$1,100

PDFs NOW!™

Digital plans emailed to you in PDF format that allows for printing copies and sharing electronically with contractors, subs, decorators, and more. This package includes a license to build the home one time.

Sale: $880
Sale: $948
4 Printed Sets
$1,185

Four printed sets of construction drawings shipped and received in 3-5 business days

Sale: $948
Sale: $984
5 Printed Sets
$1,230

Five Printed Sets of Residential Construction Drawings are typically 24” x 36” documents and come with a license to construct a single residence shipped to a physical address. Keep in mind PDF Plan Packages are our most popular choice which allows you to print as many copies as you need and to electronically send files to your builder, subcontractors, etc.

Sale: $984
Sale: $1,072
8 Printed Sets
$1,340

Eight Printed Sets of Construction Drawings, typically 24” x 36” documents, with a license to construct a single residence shipped to your physical address. PDF Plan Packages are our most popular choice which allows you to print as many copies as you need and to electronically send files to your builder, subcontractors, bank/mortgage reps, material stores, decorators and more.

Sale: $1,072
Sale: $1,680
CAD + PDF Single Build
$2,100

CAD files are a complete set of construction drawings delivered electronically. They can be used for any type of modification—including major design changes and engineering—and include a release granting permission to modify the plan. Most CAD plan orders are emailed the same or next business day.
 
This package also comes with a PDF set of plans and a copyright release for making modifications and printing unlimited copies.
 
CAD files are provided in .dwg format. For details on the specific CAD program used, please refer to the PLAN DETAILS section located above the floor plan on each plan’s page.

Sale: $1,680
  Select Foundation Option
  Add-Ons (Optional)
INCLUDED WITH YOUR PURCHASE

Free Ground shipping in the Continental U.S.

FREE

Design consultation with the architect or designer to discuss your plan

Home Building & Product Ideas Organizer

Sub Total
$0
Free Shipping
QUESTIONS OR NEED HELP ORDERING? LIVE CHAT OR CALL US AT 866-214-2242
Plan Packages

Each set of construction documents includes detailed, dimensioned floor plans, basic electric layouts, cross sections, roof details, cabinet layouts and elevations, as well as general IRC specifications. They contain virtually all of the information required to construct your home. The typical plan set does not include any plumbing, HVAC drawings, or engineering stamps due to the wide variety of specific needs, local codes, and climatic conditions. These details and specifications are easily obtained from your builder, contractors, and/or local engineers.

BEST PRICE GUARANTEE

find the same house plan (modifications included!) and package for less on another site, show us the URL and we'll give you the difference plus an additional 5% back.

100% SATISFACTION GUARANTEE

We offer a one-time, 30-day exchange policy for unused, non-electronic plan packages in the event you aren't satisfied with your first selection.

 
 

Plan 3588  Back to plan page

Loading...