Get discounts,
promos, see our
newest plans
and more!
+ 15% off any plan
See terms opt out anytime


No Thanks

Thanks for
signing up!


Use Code:

SIGNUP15

And save 15% off any plan!

Check your email for details.

CLOSE
Search Plans
     

Nordika 3 Bedroom Ranch Style House, Plan 7309

 
 

Sq Ft
1,920 FT²

Beds
3

Baths
2

Stories
1

Garage
0

Depth
30'

Width
32'
From
$1,665.00
© copyright by designer
 View All 33 Images | Photographs may reflect modified home
Sq Ft
1,920 FT²
Beds
3
Baths
2
Stories
1
Garage
0
Depth
30'
Width
32'
 
Click to Zoom In on Floor Plan
© copyright by designer
 
 

About This Plan

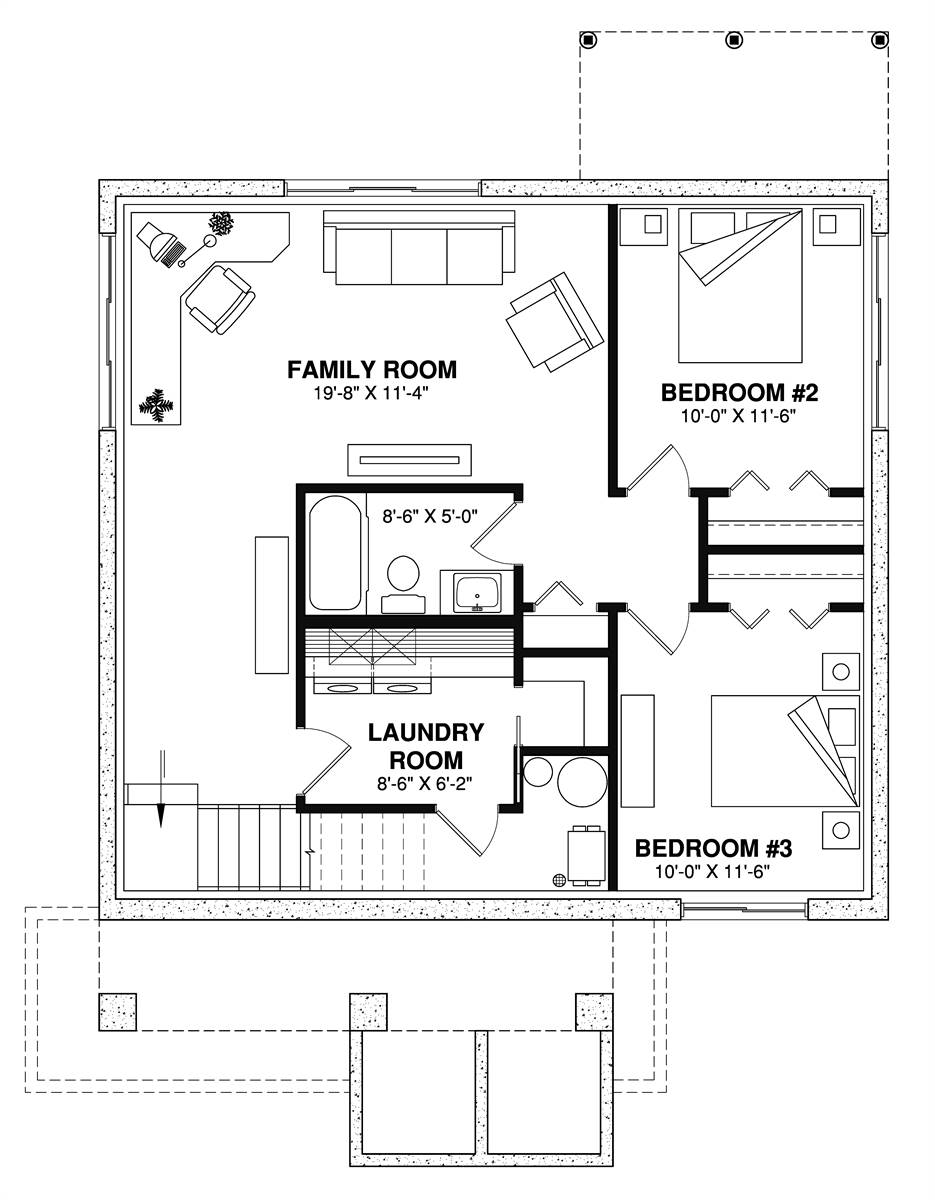
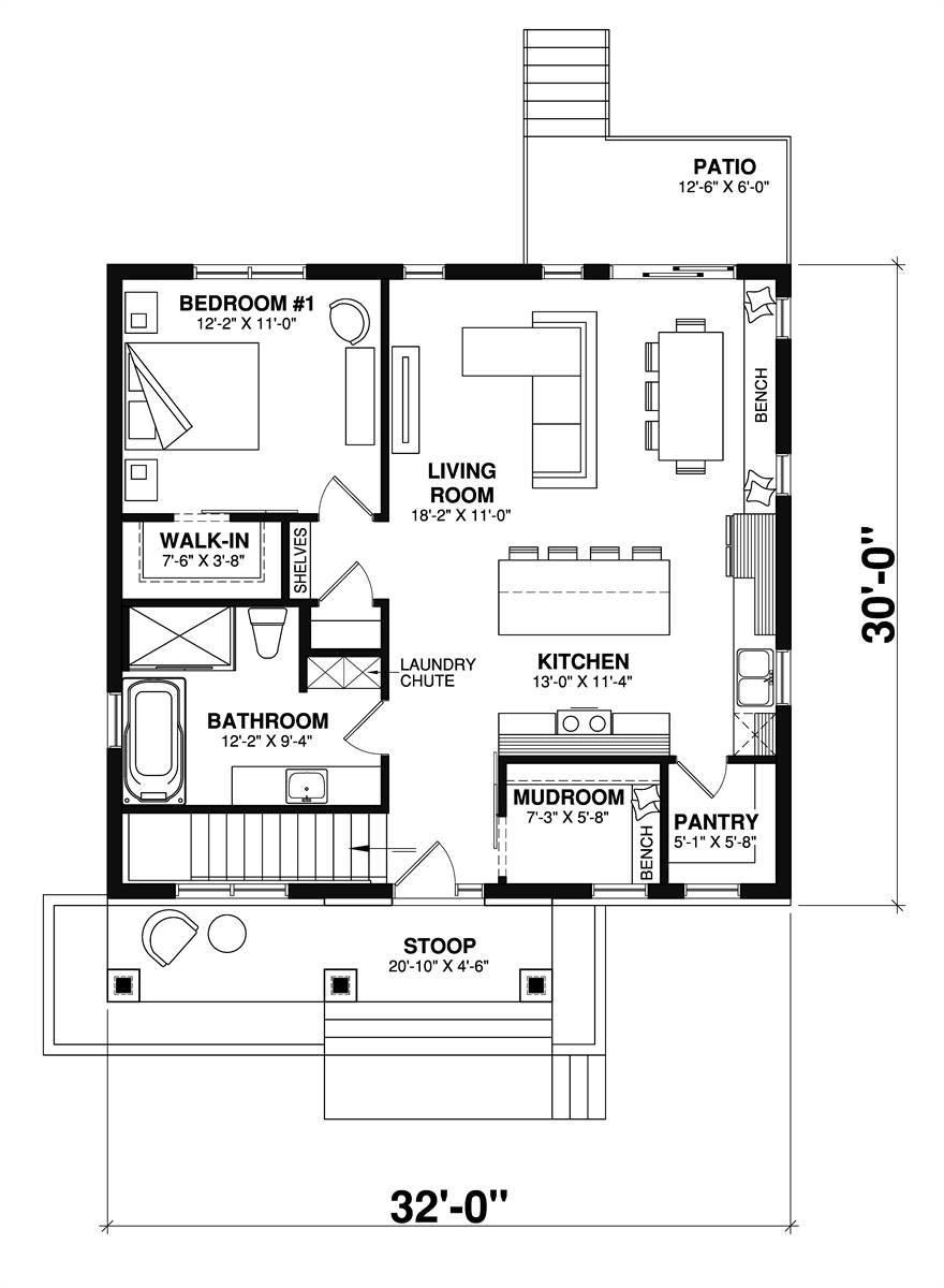
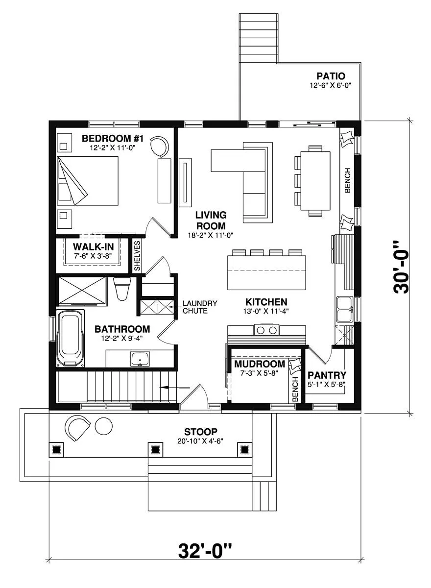
This small 1,920 square foot affordable bungalow house plan with 3-bedrooms, 2 bathrooms and large kitchen. If you are looking for a small affordable modern bungalow, rustic in style with a breathtaking exterior, you have found it! This beautiful home offers a majestic entrance overlooking the main activity area and you will be delighted with the more discreet corner style vestibule. The kitchen includes a large island, lots of storage space and a large and practical pantry. The living room and the dining room are open to enlarge the space.  On the main floor there is the master bedroom that has a large walk-in closet and a spacious bathroom including two separate laundry shoots to better sort laundry.  When we go down to the basement, we find the laundry room with a large walk-in closet for storage and the mechanical room under the stairs. The large family room joins the hallway that leads to the bathroom and the other two bedrooms. 

See All Plan Options
 

FEATURES & DETAILS

Kitchen features
Country Kitchen
Kitchen Island
Walk-in Pantry
Bedroom features
Double Vanity Sink
His and Hers Primary Closets
Primary Bdrm Main Floor
Separate Tub and Shower
Split Bedrooms
Walk-in Closet
Exterior features
Covered Front Porch
Deck
Front Porch
Foundation Options
Basement
Crawlspace
Daylight Basement
Slab
Walkout Basement
Additional features
Family Room
Foyer
Home Office
Inverted Living
Mud Room
Open Floor Plan
Garage Options
None
1,920 Ft
2
Total Heated
960 Ft
2
1st Floor
960 Ft
2
Lower Floor
3
Bedrooms
2
Bathrooms
0
Garage
1
Stories
32' 0"
Width
30' 0"
Depth
25' 5"
Height
9' 0"
Main Floor Ceiling
2x6
Framing
Truss
Roof Framing
8/12
Primary Roof Pitch
11/12
Porch Roof Pitch
Single
Dwelling Number

Unheated Living Space
 

Plan Package Options

 Select Plan Package
$1,665
PDF Single Build
PDFs NOW!™

Digital plans emailed to you in PDF format that allows for printing copies and sharing electronically with contractors, subs, decorators, and more. This package includes a license to build the home one time.

$1,665
$1,795
3 sets + PDF
Please allow 3-5 days for delivery
$1,795
$2,655
CAD + PDF Single Build

CAD files are a complete set of construction drawings delivered electronically. They can be used for any type of modification—including major design changes and engineering—and include a release granting permission to modify the plan. Most CAD plan orders are emailed the same or next business day.
 
This package also comes with a PDF set of plans and a copyright release for making modifications and printing unlimited copies.
 
CAD files are provided in .dwg format. For details on the specific CAD program used, please refer to the PLAN DETAILS section located above the floor plan on each plan’s page.

$2,655
 Need To Reverse Plan? (Optional)
$250
Readable Reverse
PDFs NOW!™

Reverse house plans with readable text and dimensions 

$250
  Select Foundation Option
  Add-Ons (Optional)
INCLUDED WITH YOUR PURCHASE

Free Ground shipping in the Continental U.S.

FREE

Design consultation with the architect or designer to discuss your plan

Home Building & Product Ideas Organizer

Sub Total
$0
Free Shipping
Please allow 3-5 business days for delivery of this plan Please check our PDFs NOW collection for plans that can be downloaded and received immediately or live chat us to help you find a similar plan available now.
QUESTIONS OR NEED HELP ORDERING? LIVE CHAT OR CALL US AT 866-214-2242
Plan Packages

Each set of construction documents includes detailed, dimensioned floor plans, basic electric layouts, cross sections, roof details, cabinet layouts and elevations, as well as general IRC specifications. They contain virtually all of the information required to construct your home. The typical plan set does not include any plumbing, HVAC drawings, or engineering stamps due to the wide variety of specific needs, local codes, and climatic conditions. These details and specifications are easily obtained from your builder, contractors, and/or local engineers.

BEST PRICE GUARANTEE

find the same house plan (modifications included!) and package for less on another site, show us the URL and we'll give you the difference plus an additional 5% back.

100% SATISFACTION GUARANTEE

We offer a one-time, 30-day exchange policy for unused, non-electronic plan packages in the event you aren't satisfied with your first selection.

 
 

Plan 7309  Back to plan page

Loading...